アスール北上野 物件詳細情報
| 沿線・駅 所在地 |
賃料 共益費(管理費) |
敷金 礼金 |
間取り 専有面積 |
種別 建築年月日 |
|
|---|---|---|---|---|---|
|
東京メトロ日比谷線 入谷駅(徒歩5分)
東京都台東区北上野2丁目 |
129,000円 10,000円 |
- 129,000円 |
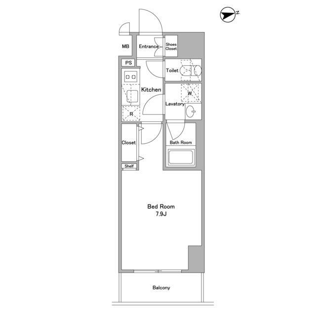
1K 25.80m2 |
マンション 2018年7月 |
|
ミニミニの仲介手数料は家賃の55%(税込)です。※直営店は全店対象。但し、駐車場・店舗・事務所・業者仲介及び紹介契約は対象外。※FC店舗は対象外ですので、各店にお問い合わせください。
この物件のお問い合わせ番号 0001-1310898152-0009

- 東上野六郵便局
設備
| 部屋設備 | ガス給湯 / 浴室給湯あり / キッチン給湯あり / 洗面所給湯あり / TV付モニターホン / 下駄箱 / エアコン / フローリング / 照明器具 / バルコニー / 洋式トイレ / シャワー / 浴室乾燥機 / 洗髪洗面化粧台 / 洗面化粧台 / 室内洗濯機置場 / バストイレ別 / シャワー付トイレ / クロゼット / 洗面所独立 / オンライン内見 / オンライン接客 / IT重説 |
|---|---|
| 建物設備 | エレベータ / オートロック / エントランス / 駐輪場 / 宅配ボックス / BSアンテナ / CSアンテナ / バイク置き場 / ネット利用料無料 / 敷地内ゴミ置き場 / 防犯カメラ |
物件詳細
| 交通機関 | ・東京メトロ日比谷線 入谷駅(徒歩5分) ・東京メトロ銀座線 稲荷町駅(徒歩10分) ・山手線 上野駅(徒歩10分) | ||||
|---|---|---|---|---|---|
| 構造 | RC造 | 方位 | 東 | 階数/総階数 | 9階/13階建て |
| 総戸数 | 49戸 | 駐車場 | - | 入居日 | 2026年5月下旬 |
| 環境 | 台東区立上野小学校 (448m) / 台東区立駒形中学校 (118m) / 北上野クローバー保育園 (165m) / 上野保育園 (308m) / 私立上野学園高校 (413m) / 台東区役所 (753m) / 東上野六郵便局 (313m) / 上野学園大学図書館 (395m) / 上野警察署 (844m) / 東京都上野恩賜公園 (1,346m) / 公益財団法人ライフ・エクステンション研究所付属永寿総合病院 (1,101m) / 東京東信用金庫かっぱ橋支店 (338m) / まいばすけっと北上野2丁目店 (116m) / セブンイレブン台東北上野2丁目店 (195m) / 上野マルイ (1,326m) / ウエルシア台東入谷店 (379m) / ニトリデコホーム浅草ロックス・3G店 (1,146m) / 私立上野学園大学 (452m) / ゲオ鶯谷店 (900m) / 松屋入谷店 (320m) / ユニクロエキュート上野店 (1,351m) | ||||
| 内装代 | - | 償却 | 0円 | 保険 | 損保要 |
| 更新料 | 129,000円 | 水道料金等預かり金 | - | 特記事項 | - |
| 飲用水 | 公営 | ガス | 都市 | 排水 | 公共下水 |
| 給湯方式 | ガス給湯(浴室給湯あり・キッチン給湯あり・洗面所給湯あり) | ||||
その他の費用
| 一時 | 消毒料:17,600円/入居安心サービス料:17,600円/鍵交換代:33,000円 |
|---|---|
| 他 | 家賃保証会社 初回保証料50% 月額保証料:賃料等の1% |
この物件のお問い合わせ番号 0001-1310898152-0009
類似物件一覧
-
14.2万円
142,000円
1.0ヶ月
-
16.6万円
166,000円
-
1DK
東京都台東区雷門2丁目 -
13.6万円
-
-
1DK
東京都台東区三筋1丁目 -
14.7万円
147,000円
1.0ヶ月
1DK
東京都台東区台東2丁目 -
14.9万円
149,000円
1.0ヶ月
1DK
東京都台東区元浅草1丁目 -
14.2万円
-
-
1DK
東京都台東区三筋1丁目 -
16.4万円
164,000円
1.0ヶ月
1K
東京都台東区元浅草1丁目 -
16.3万円
163,000円
-
1DK
東京都台東区雷門2丁目 -
12.8万円
128,000円
-
1DK
東京都台東区浅草橋5丁目 -
12.5万円
125,000円
-
1K
東京都台東区入谷2丁目 -
15.8万円
-
-
1DK
東京都台東区鳥越2丁目 -
15.6万円
156,000円
-
1DK
東京都台東区台東3丁目
店舗情報
お電話での物件問い合わせは無料通話で!(直営店のみ)
0001-1310898152-0009
- 浅草EKIMISE店
-
この物件で見学予約- 見学予約フォーム -
-
無料通話番号を表示
- 東京メトロ銀座線 浅草駅(徒歩1分)
- Tel: 03-5246-3537
- 店舗詳細情報
このお部屋にお問い合わせ
あわせて店舗への来店を希望のお客様は、上の希望店舗の来店予約フォームをご利用ください(直営店舗のみ)
Sorry,Japanese & English only. 日本語・英語のみ対応しております。ご了承ください。
- ※取扱形態は媒介(先物)です。 / お部屋の情報は随時更新です / 各種情報と現況に差異がある場合は、現況優先となります。 / 保証会社の審査があります。 / 契約一時金は、契約時に借主より貸主に支払われ返還されない金銭です。

この物件のかんたんお問合せフォーム
お電話でお問合せ(無料)
外観・間取り図











東京都台東区浅草橋5丁目