アルテシモ アベニ 物件詳細情報
このお部屋は募集を終了しました
ただいまこのお部屋は入居募集を終了しており、募集時の情報となっております。お部屋探しの参考としてご利用ください。募集が再度開始しましたら、こちらのページで詳細情報を掲載の上募集開始致します。情報掲載日:2025/05/21
| 沿線・駅 所在地 |
間取り 専有面積 |
種別 建築年月日 |
|
|---|---|---|---|
|
都営地下鉄浅草線 本所吾妻橋駅(徒歩3分)
東京都墨田区吾妻橋2丁目 |
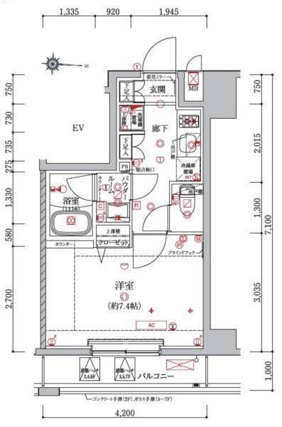
1K 25.59m2 |
分譲賃貸 2018年1月 |
|
ミニミニの仲介手数料は家賃の55%(税込)です。※直営店は全店対象。但し、駐車場・店舗・事務所・業者仲介及び紹介契約は対象外。※FC店舗は対象外ですので、各店にお問い合わせください。
この物件のお問い合わせ番号 0001-1310891117-0003
設備
| 部屋設備 | ガス給湯 / 下駄箱 / フローリング / バルコニー / シャワー / 浴室乾燥機 / 室内洗濯機置場 / バストイレ別 / コンロ(コンロ(2口)) / 2人入居 / シャワー付トイレ / クロゼット / 洗面所独立 / システムキッチン / オンライン内見 / オンライン接客 / IT重説 |
|---|---|
| 建物設備 | エレベータ / オートロック / 駐輪場 / 宅配ボックス / ペット可 / BSアンテナ / CSアンテナ / ネット利用料無料 |
物件詳細
| 交通機関 | ・都営地下鉄浅草線 本所吾妻橋駅(徒歩3分) | ||||
|---|---|---|---|---|---|
| 構造 | RC造 | 総階数 | 7階建て | ||
| 総戸数 | 24戸 | 入居日 | 入居不可(募集終了) | ||
| 飲用水 | 無 | ガス | - | 排水 | その他 |
| 給湯方式 | ガス給湯 | ||||
この物件のお問い合わせ番号 0001-1310891117-0003
類似物件一覧
-
12.4万円
124,000円
1.0ヶ月
-
8.3万円
83,000円
1.0ヶ月
1DK
東京都墨田区東駒形1丁目 -
11.2万円
-
-
1R
東京都墨田区横川5丁目 -
10.9万円
109,000円
1.0ヶ月
1K
東京都墨田区向島2丁目 -
12.0万円
120,000円
-
1K
東京都墨田区緑1丁目 -
12.6万円
126,000円
1.0ヶ月
1K
東京都墨田区菊川3丁目 -
11.1万円
-
-
1K
東京都墨田区吾妻橋1丁目 -
11.8万円
1.0ヶ月
1.0ヶ月
1K
東京都墨田区錦糸2丁目 -
9.5万円
95,000円
1.0ヶ月
1DK
東京都墨田区向島1丁目 -
11.3万円
113,000円
-
1K
東京都墨田区立花6丁目 -
11.9万円
119,000円
1.0ヶ月
1K
東京都墨田区横川3丁目 -
12.5万円
125,000円
-
1DK
東京都墨田区太平1丁目
店舗情報
お電話での物件問い合わせは無料通話で!(直営店のみ)
0001-1310891117-0003
- 浅草EKIMISE店
-
この物件で見学予約- 見学予約フォーム -
-
無料通話番号を表示
- 東京メトロ銀座線 浅草駅(徒歩1分)
- Tel: 03-5246-3537
- 店舗詳細情報
このお部屋に似ている物件を問い合わせる
あわせて店舗への来店を希望のお客様は、上の希望店舗の来店予約フォームをご利用ください(直営店舗のみ)
Sorry,Japanese & English only. 日本語・英語のみ対応しております。ご了承ください。
- ※各種情報と現況に差異がある場合は、現況優先となります。

似た物件を問い合わせる
お電話でお問合せ(無料)
間取り図

東京都墨田区緑4丁目