ラクラス田原町 物件詳細情報
| 沿線・駅 所在地 |
賃料 共益費(管理費) |
敷金 礼金 |
間取り 専有面積 |
種別 建築年月日 |
|
|---|---|---|---|---|---|
|
東京メトロ銀座線 田原町駅(徒歩2分)
東京都台東区寿2丁目 |
149,000円 5,000円 |
149,000円 149,000円 |
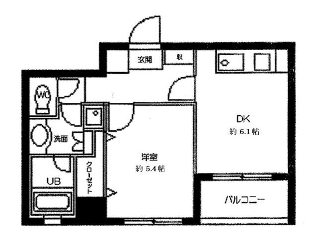
1DK 33.82m2 |
マンション 2003年10月 |
|
ミニミニの仲介手数料は家賃の55%(税込)です。※直営店は全店対象。但し、駐車場・店舗・事務所・業者仲介及び紹介契約は対象外。※FC店舗は対象外ですので、各店にお問い合わせください。
この物件のお問い合わせ番号 0001-1310826576-0015

- 浅草郵便局
設備
| 部屋設備 | TV付モニターホン / エアコン / フローリング / 室内洗濯機置場 / バストイレ別 / シャワー付トイレ / システムキッチン / オンライン内見 / オンライン接客 / IT重説 |
|---|---|
| 建物設備 | エレベータ / オートロック / 駐輪場 / 宅配ボックス / バイク置き場 / 敷地内ゴミ置き場 |
物件詳細
| 交通機関 | ・東京メトロ銀座線 田原町駅(徒歩2分) ・都営地下鉄大江戸線 蔵前駅(徒歩5分) ・都営地下鉄浅草線 浅草駅(徒歩7分) | ||||
|---|---|---|---|---|---|
| 構造 | SRC造 | 方位 | 南 | 階数/総階数 | 3階/12階建て |
| 総戸数 | 44戸 | 駐車場 | - | 入居日 | 2026年5月下旬 |
| 環境 | 台東区立田原小学校 (362m) / 東京都立白鴎高校附属中学校 (960m) / 台東区立田原幼稚園 (376m) / 東京都立白鴎高校 (839m) / 墨田区役所 (1,324m) / 浅草郵便局 (198m) / 台東区立くらまえオレンジ図書館 (710m) / 蔵前警察署 (1,030m) / 屋形舟 隅田川下り (1,001m) / 浅草寺病院 (1,211m) / 朝日信用金庫ことぶき支店 (123m) / まいばすけっと台東寿1丁目店 (489m) / ファミリーマート台東寿二丁目店 (26m) / 松屋浅草 (1,022m) / スギドラッグ浅草1丁目店 (392m) / NOCE浅草蔵前店 (507m) / 私立レイクランド大学ジャパンキャンパス (1,764m) / ゲオ鶯谷店 (2,241m) / やよい軒浅草田原町店 (165m) / ROX2G (532m) | ||||
| 内装代 | - | 償却 | 0円 | 保険 | 損保要 |
| 更新料 | 149,000円 | 水道料金等預かり金 | - | 特記事項 | - |
| 飲用水 | 公営 | ガス | 都市 | 排水 | 公共下水 |
| 給湯方式 | - | ||||
その他の費用
| 一時 | 鍵交換費用:22,000円 |
|---|---|
| 他 | 毎月賃料等請求金額の合計50% 更新時:10,000円 |
この物件のお問い合わせ番号 0001-1310826576-0015
類似物件一覧
-
18.8万円
188,000円
-
-
13.7万円
-
-
1K
東京都台東区蔵前2丁目 -
14.0万円
-
1.0ヶ月
1DK
東京都台東区三筋1丁目 -
15.2万円
-
-
1DK
東京都台東区柳橋2丁目 -
13.0万円
-
1.0ヶ月
1K
東京都台東区元浅草1丁目 -
18.1万円
181,000円
-
1LDK
東京都台東区東上野3丁目 -
15.9万円
159,000円
-
1LDK
東京都台東区小島2丁目 -
12.6万円
126,000円
-
1K
東京都台東区柳橋2丁目 -
13.2万円
132,000円
-
1K
東京都台東区柳橋2丁目 -
13.9万円
139,000円
1.0ヶ月
1K
東京都台東区浅草橋5丁目 -
13.6万円
-
-
1DK
東京都台東区三筋1丁目 -
13.7万円
-
-
1K
東京都台東区小島2丁目
店舗情報
お電話での物件問い合わせは無料通話で!(直営店のみ)
0001-1310826576-0015
- 浅草EKIMISE店
-
この物件で見学予約- 見学予約フォーム -
-
無料通話番号を表示
- 東京メトロ銀座線 浅草駅(徒歩1分)
- Tel: 03-5246-3537
- 店舗詳細情報
このお部屋にお問い合わせ
あわせて店舗への来店を希望のお客様は、上の希望店舗の来店予約フォームをご利用ください(直営店舗のみ)
Sorry,Japanese & English only. 日本語・英語のみ対応しております。ご了承ください。
- ※取扱形態は媒介(先物)です。 / お部屋の情報は随時更新です / 各種情報と現況に差異がある場合は、現況優先となります。 / 保証会社の審査があります。 / 契約一時金は、契約時に借主より貸主に支払われ返還されない金銭です。

この物件のかんたんお問合せフォーム
お電話でお問合せ(無料)
外観・間取り図















東京都台東区柳橋1丁目