パークアクシス豊洲キャナル 物件詳細情報
| 沿線・駅 所在地 |
賃料 共益費(管理費) |
敷金 礼金 |
間取り 専有面積 |
種別 建築年月日 |
|
|---|---|---|---|---|---|
|
東京メトロ有楽町線 豊洲駅(徒歩9分)
東京都江東区豊洲6丁目 |
198,000円 12,000円 |
198,000円 198,000円 |
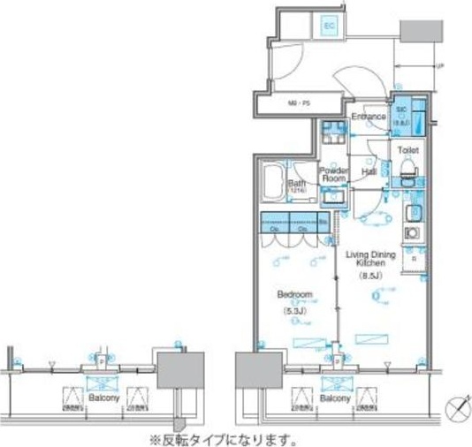
1LDK 35.98m2 |
マンション 2015年11月 |
|
ミニミニの仲介手数料は家賃の55%(税込)です。※直営店は全店対象。但し、駐車場・店舗・事務所・業者仲介及び紹介契約は対象外。※FC店舗は対象外ですので、各店にお問い合わせください。
この物件のお問い合わせ番号 0001-1310780992-0318
ペット・楽器相談可能。定期借家2年(再契約料新賃料1.2ヶ月)バス・トイレ別/浴室乾燥機/宅配ロッカーあります。

- イオン東雲内郵便局
設備
| 部屋設備 | エアコン / フローリング / ベランダ / バルコニー / 浴室乾燥機 / 洗面化粧台 / 室内洗濯機置場 / バストイレ別 / クロゼット / 洗面所独立 / オンライン内見 / オンライン接客 / IT重説 |
|---|---|
| 建物設備 | 光ファイバー(VDSL) / エレベータ / オートロック / 宅配ボックス / ペット可 / ネット環境(光ファイバ対応) / BSアンテナ / CSアンテナ / CATV / バイク置き場 / 免震構造 / 敷地内ゴミ置き場 |
物件詳細
| 交通機関 | ・東京メトロ有楽町線 豊洲駅(徒歩9分) ・ゆりかもめ 新豊洲駅(徒歩5分) ・都営地下鉄大江戸線 勝どき駅(徒歩27分) | ||||
|---|---|---|---|---|---|
| 構造 | RC造 | 方位 | 南東 | 階数/総階数 | 11階/19階建て |
| 総戸数 | 497戸 | 駐車場 | - | 入居日 | 2026年3月下旬 |
| 環境 | 江東区立豊洲西小学校 (538m) / 私立芝浦工業大学附属中学高校 (200m) / 江東区立深川第五中学校 (1,121m) / しんとよす保育園 (104m) / 私立芝浦工業大学附属中学高校 (200m) / 中央区晴海特別出張所 (2,008m) / 中央区役所 (3,761m) / イオン東雲内郵便局 (1,590m) / 江東区立豊洲図書館 (998m) / 月島警察署 (2,039m) / ワイルドマジック (483m) / 昭和大学江東豊洲病院 (689m) / 三井住友銀行豊洲支店 (995m) / ダイエー豊洲店 (394m) / ローソン江東豊洲六丁目店 (116m) / 銀座三越 (3,838m) / マツモトキヨシ豊洲5丁目店 (912m) / ウエルシアららぽーと豊洲3店 (1,003m) / ノジマアーバンドックららぽーと豊洲店 (1,000m) / 私立東京有明医療大学 (1,355m) / TSUTAYA門前仲町店 (3,346m) / タリーズコーヒー昭和大学江東豊洲病院店 (681m) / ユニクロららぽーと豊洲店 (1,091m) | ||||
| 内装代 | - | 償却 | 0円 | 保険 | 損保要 |
| 更新料 | - | 水道料金等預かり金 | - | 特記事項 | 定期建物賃貸借物件 |
| 飲用水 | 公営 | ガス | 都市 | 排水 | 公共下水 |
| 給湯方式 | - | ||||
その他の費用
| 毎月 | 口座振替事務手数料(月額):220円 |
|---|---|
| 一時 | 鍵交換費用:33,000円/室内清掃費用:59,400円/消毒料:17,600円 |
| 他 | 初回保証委託料:月額賃料等の50%50% |
この物件のお問い合わせ番号 0001-1310780992-0318
類似物件一覧
-
15.0万円
-
1.0ヶ月
-
14.3万円
143,000円
1.0ヶ月
1DK
東京都江東区塩浜2丁目 -
16.5万円
-
-
1LDK
東京都江東区住吉2丁目 -
16.0万円
160,000円
-
1DK
東京都江東区新大橋2丁目 -
14.6万円
146,000円
1.0ヶ月
1DK
東京都江東区亀戸7丁目 -
18.2万円
182,000円
-
1LDK
東京都江東区亀戸6丁目 -
17.6万円
176,000円
1.0ヶ月
1LDK
東京都江東区大島5丁目 -
19.5万円
-
1.0ヶ月
1LDK
東京都江東区新大橋1丁目 -
15.0万円
-
-
1DK
東京都江東区猿江1丁目 -
14.4万円
-
-
1DK
東京都江東区千田 -
19.4万円
194,000円
-
1LDK
東京都江東区木場6丁目 -
14.5万円
145,000円
1.0ヶ月
1DK
東京都江東区亀戸6丁目
店舗情報
お電話での物件問い合わせは無料通話で!(直営店のみ)
0001-1310780992-0318
- 門前仲町店
-
この物件で見学予約- 見学予約フォーム -
-
無料通話番号を表示
- 東京メトロ東西線 門前仲町駅(徒歩1分)
- Tel: 03-5245-2232
- 店舗詳細情報
このお部屋にお問い合わせ
あわせて店舗への来店を希望のお客様は、上の希望店舗の来店予約フォームをご利用ください(直営店舗のみ)
Sorry,Japanese & English only. 日本語・英語のみ対応しております。ご了承ください。
- ※取扱形態は媒介(先物)です。 / お部屋の情報は随時更新です / 各種情報と現況に差異がある場合は、現況優先となります。 / 保証会社の審査があります。 / 契約一時金は、契約時に借主より貸主に支払われ返還されない金銭です。

この物件のかんたんお問合せフォーム
お電話でお問合せ(無料)
外観・間取り図
















東京都江東区佐賀1丁目