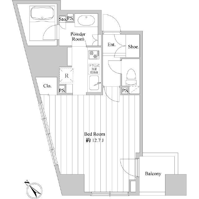
東京都墨田区東向島2丁目 1R 41.62m2 物件詳細情報
| 沿線・駅 所在地 |
賃料 共益費(管理費) |
敷金 礼金 |
間取り 専有面積 |
種別 建築年月日 |
|
|---|---|---|---|---|---|
|
東武伊勢崎・大師線 曳舟駅(徒歩5分)
東京都墨田区東向島2丁目 |
143,000円 9,000円 |
- - |
1R 41.62m2 |
マンション 2005年1月 |
|
ミニミニの仲介手数料は家賃の55%(税込)です。※直営店は全店対象。但し、駐車場・店舗・事務所・業者仲介及び紹介契約は対象外。※FC店舗は対象外ですので、各店にお問い合わせください。
この物件のお問い合わせ番号 0001-1300241856-3
外観・間取り図
情報登録日:2026/04/06 情報更新日:2026/04/11 次回更新予定日:2026/04/18
東京メトロ半蔵門線 押上〈スカイツリー前〉 徒歩11分 宅配ボックス、オートロック、駐輪場
設備
| 部屋設備 | TV付モニターホン / 下駄箱 / ガスコンロ(コンロ(2口)) / エアコン / フローリング / 照明器具 / バルコニー / 浴室乾燥機 / バストイレ別 / シャワー付トイレ / クロゼット / 洗面所独立 / システムキッチン / オンライン内見 / オンライン接客 / IT重説 |
|---|---|
| 建物設備 | エレベータ / オートロック / 駐輪場 / 宅配ボックス / BSアンテナ / CSアンテナ / CATV / バイク置き場 / ネット利用料無料 / 敷地内ゴミ置き場 / 防犯カメラ |
物件詳細
| 交通機関 | ・東武伊勢崎・大師線 曳舟駅(徒歩5分) ・東京メトロ半蔵門線 押上駅(徒歩13分) ・東武伊勢崎・大師線 押上駅(徒歩11分) | ||||
|---|---|---|---|---|---|
| 構造 | RC造 | 方位 | 南西 | 階数/総階数 | 4階/11階建て |
| 総戸数 | 29戸 | 駐車場 | - | 入居日 | 2026年5月中旬 |
| 環境 | 墨田区立言問小学校 (441m) / 墨田区立墨田中学校 (562m) / 杉の子学園保育所 (332m) / 東京都立本所高校 (567m) / 台東区北部区民事務所清川分室 (2,454m) / 向島郵便局 (466m) / 墨田区立ひきふね図書館 (843m) / 向島警察署 (1,851m) / 堤通公園 (1,246m) / 大岩医院 (338m) / 東京東信用金庫本店 (564m) / コモディイイダ東向島店 (196m) / ファミリーマート向島四丁目店 (196m) / 松屋浅草 (1,926m) / くすりの福太郎東向島1丁目店 (154m) / ノジマイトーヨーカドー曳舟店 (670m) / 私立千葉工業大学東京スカイツリータウンキャンパス (1,153m) / ゲオ曳舟店 (710m) / しゃぶ葉東向島店 (193m) / EQUiA曳舟 (444m) | ||||
| 内装代 | - | 償却 | 0円 | 保険 | 損保要 |
| 更新料 | 94,000円 | 水道料金等預かり金 | - | 特記事項 | - |
| 飲用水 | 公営 | ガス | 都市 | 排水 | 公共下水 |
| 給湯方式 | - | ||||
その他の費用
| 一時 | 鍵交換料:24,200円/消毒料:17,600円/入居安心サービス料:17,600円 |
|---|---|
| 他 | 家賃保証会社 初回保証料40% 月次980円 |
この物件のお問い合わせ番号 0001-1300241856-3
類似物件一覧
-
15.1万円
151,000円
-
-
12.7万円
127,000円
1.0ヶ月
1R
東京都墨田区菊川3丁目 -
13.6万円
136,000円
-
1DK
東京都墨田区両国1丁目 -
13.1万円
131,000円
1.0ヶ月
1K
東京都墨田区菊川3丁目 -
13.1万円
131,000円
1.0ヶ月
1R
東京都墨田区緑4丁目 -
10.4万円
104,000円
1.0ヶ月
1R
東京都墨田区江東橋5丁目 -
16.1万円
161,000円
1.0ヶ月
1DK
東京都墨田区錦糸4丁目 -
14.4万円
144,000円
1.0ヶ月
1DK
東京都墨田区向島4丁目 -
14.2万円
142,000円
-
1K
東京都墨田区千歳1丁目 -
12.0万円
120,000円
1.0ヶ月
1K
東京都墨田区錦糸2丁目 -
12.5万円
-
1.0ヶ月
1K
東京都墨田区向島3丁目 -
17.0万円
170,000円
-
1DK
東京都墨田区千歳1丁目
店舗情報
お電話での物件問い合わせは無料通話で!(直営店のみ)
0001-1300241856-3
- 浅草EKIMISE店
-
この物件で見学予約- 見学予約フォーム -
-
無料通話番号を表示
- 東京メトロ銀座線 浅草駅(徒歩1分)
- Tel: 03-5246-3537
- 店舗詳細情報
このお部屋にお問い合わせ
あわせて店舗への来店を希望のお客様は、上の希望店舗の来店予約フォームをご利用ください(直営店舗のみ)
Sorry,Japanese & English only. 日本語・英語のみ対応しております。ご了承ください。
- ※取扱形態は媒介(先物)です。 / お部屋の情報は随時更新です / 各種情報と現況に差異がある場合は、現況優先となります。 / 保証会社の審査があります。 / 契約一時金は、契約時に借主より貸主に支払われ返還されない金銭です。

この物件のかんたんお問合せフォーム
お電話でお問合せ(無料)
















東京都墨田区江東橋4丁目