ロイヤルシャトー船橋 物件詳細情報
| 沿線・駅 所在地 |
賃料 共益費(管理費) |
敷金 礼金 |
間取り 専有面積 |
種別 建築年月日 |
|
|---|---|---|---|---|---|
|
東武野田線 塚田駅(徒歩14分)
千葉県船橋市行田町 |
103,000円 5,000円 |
103,000円 - |
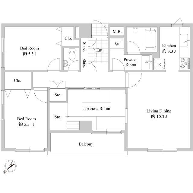
3LDK 69.92m2 |
分譲賃貸 1990年4月 |
|
ミニミニの仲介手数料は家賃の55%(税込)です。※直営店は全店対象。但し、駐車場・店舗・事務所・業者仲介及び紹介契約は対象外。※FC店舗は対象外ですので、各店にお問い合わせください。
この物件のお問い合わせ番号 0001-1210983890-0004

- 船橋行田郵便局
設備
| 部屋設備 | 下駄箱 / バルコニー / 追焚き / 室内洗濯機置場 / バストイレ別 / コンロ(コンロ(3口)) / クロゼット / 洗面所独立 / システムキッチン / オンライン内見 / オンライン接客 / IT重説 |
|---|---|
| 建物設備 | エレベータ / オートロック / 駐輪場 / ペット可 / ネット環境(光ファイバ対応) / CATV |
物件詳細
| 交通機関 | ・東武野田線 塚田駅(徒歩14分) ・武蔵野線 船橋法典駅(徒歩13分) ・京成電鉄本線 京成西船駅(徒歩25分) | ||||
|---|---|---|---|---|---|
| 構造 | RC造 | 方位 | 北西 | 階数/総階数 | 3階/5階建て |
| 総戸数 | 21戸 | 駐車場 | - | 入居日 | 2026年5月上旬 |
| 環境 | 船橋市立法典西小学校 (710m) / 船橋市立行田中学校 (672m) / あまねの杜保育園 (342m) / 清和幼稚園 (378m) / 千葉県立船橋啓明高校 (1,762m) / 船橋市役所西船橋出張所 (2,110m) / 船橋行田郵便局 (656m) / 船橋市西図書館 (2,444m) / 船橋警察署 (4,616m) / 14号若宮第2緑地 (2,159m) / 医療法人社団協友会船橋総合病院 (1,916m) / JAちば東葛行田支店 (424m) / ベルクフォルテ船橋店 (976m) / セブンイレブン船橋行田町北店 (203m) / 東武百貨店船橋店 (3,338m) / ウエルシア船橋行田店 (565m) / コジマ×ビックカメラ新船橋店 (1,415m) / 私立東京医療保健大学船橋キャンパス (2,366m) / TSUTAYA西船橋店 (2,202m) / サイゼリヤフォルテ船橋店 (1,071m) / フォルテ船橋 (975m) | ||||
| 内装代 | - | 償却 | 0円 | 保険 | 損保要 |
| 更新料 | 154,500円 | 水道料金等預かり金 | - | 特記事項 | - |
| 飲用水 | 公営 | ガス | 都市 | 排水 | 公共下水 |
| 給湯方式 | - | ||||
その他の費用
| 一時 | 安心入居サポート:19,800円/鍵交換料:24,200円/消毒料:17,600円 |
|---|---|
| 他 | 家賃保証会社 初回保証料60% 2年目以降/年10,000円 賃料口座引落月々440円 |
この物件のお問い合わせ番号 0001-1210983890-0004
類似物件一覧
-
12.2万円
244,000円
1.0ヶ月
-
10.0万円
100,000円
-
3LDK
千葉県船橋市藤原3丁目 -
12.8万円
128,000円
-
3LDK
千葉県船橋市湊町2丁目 -
11.6万円
1.0ヶ月
-
3LDK
千葉県船橋市本町3丁目 -
8.1万円
-
40,000円
3LDK
千葉県船橋市咲が丘1丁目 -
9.0万円
90,000円
-
3LDK
千葉県船橋市前原西1丁目 -
11.4万円
-
-
3LDK
千葉県船橋市丸山3丁目 -
10.5万円
82,500円
-
3LDK
千葉県船橋市芝山5丁目 -
8.6万円
-
0.6ヶ月
3DK
千葉県船橋市高根台7丁目 -
11.7万円
117,000円
1.0ヶ月
3LDK
千葉県船橋市本中山4丁目 -
8.0万円
-
-
3LDK
千葉県船橋市大穴北4丁目 -
7.5万円
75,000円
-
3DK
千葉県船橋市薬円台1丁目
店舗情報
お電話での物件問い合わせは無料通話で!(直営店のみ)
0001-1210983890-0004
- 船橋店
-
この物件で見学予約- 見学予約フォーム -
-
無料通話番号を表示
- 総武・中央緩行線 船橋駅(徒歩1分)
- Tel: 047-426-7701
- 店舗詳細情報
このお部屋にお問い合わせ
あわせて店舗への来店を希望のお客様は、上の希望店舗の来店予約フォームをご利用ください(直営店舗のみ)
Sorry,Japanese & English only. 日本語・英語のみ対応しております。ご了承ください。
- ※取扱形態は媒介(先物)です。 / お部屋の情報は随時更新です / 各種情報と現況に差異がある場合は、現況優先となります。 / 保証会社の審査があります。 / 契約一時金は、契約時に借主より貸主に支払われ返還されない金銭です。

この物件のかんたんお問合せフォーム
お電話でお問合せ(無料)
外観・間取り図

















千葉県船橋市南本町