Wind Ward 物件詳細情報
| 沿線・駅 所在地 |
賃料 共益費(管理費) |
敷金 礼金 |
間取り 専有面積 |
種別 建築年月日 |
|
|---|---|---|---|---|---|
|
京葉線 蘇我駅(徒歩7分)
千葉県千葉市中央区南町2丁目 |
78,000円 5,000円 |
- - |
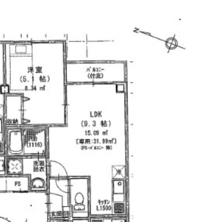
1LDK 31.99m2 |
マンション 2017年1月 |
|
ミニミニの仲介手数料は家賃の55%(税込)です。※直営店は全店対象。但し、駐車場・店舗・事務所・業者仲介及び紹介契約は対象外。※FC店舗は対象外ですので、各店にお問い合わせください。
この物件のお問い合わせ番号 0001-1210869644-0006
外観・間取り図
情報登録日:2026/03/12 情報更新日:2026/03/13 次回更新予定日:2026/03/20
オートロック設置!京葉線始発「蘇我」駅徒歩7分バス・トイレ別・TVドアホン・エアコンなど設備充実!
設備
| 部屋設備 | ガス給湯 / TV付モニターホン / 下駄箱 / エアコン / フローリング / バルコニー / シャワー / 洗髪洗面化粧台 / 室内洗濯機置場 / バストイレ別 / 2人入居 / シャワー付トイレ / 洗面所独立 / システムキッチン / オンライン内見 / オンライン接客 / IT重説 |
|---|---|
| 建物設備 | オートロック / ネット利用料無料 |
物件詳細
| 交通機関 | ・京葉線 蘇我駅(徒歩7分) ・京成電鉄千原線 千葉寺駅(徒歩15分) ・千葉都市モノレール 県庁前駅(徒歩38分) | ||||
|---|---|---|---|---|---|
| 構造 | 鉄骨造 | 方位 | 北東 | 階数/総階数 | 2階/4階建て |
| 総戸数 | 10戸 | 駐車場 | - | 入居日 | 2026年4月中旬 |
| 環境 | |||||
| 内装代 | - | 償却 | 0円 | 保険 | 損保要 |
| 更新料 | 78,000円 | 水道料金等預かり金 | - | 特記事項 | - |
| 飲用水 | 公営 | ガス | プロパン | 排水 | 公共下水 |
| 給湯方式 | ガス給湯 | ||||
その他の費用
| 毎月 | ルームサポートサービス:2,700円 |
|---|---|
| 一時 | ルームクリーニング代:71,500円/入居者アプリ設定費:22,000円/鍵交換費:27,500円 |
| 他 | 月額賃料合計(その他費用含む)100% |
この物件のお問い合わせ番号 0001-1210869644-0006
類似物件一覧
-
6.8万円
-
-
-
9.6万円
192,000円
-
1LDK
千葉県千葉市中央区院内2丁目 -
7.5万円
-
-
1LDK
千葉県千葉市中央区葛城2丁目 -
7.1万円
-
-
1LDK
千葉県千葉市中央区千葉寺町 -
7.3万円
-
-
1LDK
千葉県千葉市中央区村田町 -
8.1万円
-
-
1LDK
千葉県千葉市中央区村田町 -
7.4万円
-
-
1LDK
千葉県千葉市中央区葛城2丁目 -
8.1万円
-
-
1LDK
千葉県千葉市中央区村田町 -
7.1万円
-
-
1LDK
千葉県千葉市中央区生実町 -
8.3万円
-
-
1LDK
千葉県千葉市中央区村田町 -
7.3万円
-
-
1LDK
千葉県千葉市中央区葛城2丁目 -
7.0万円
-
-
1LDK
千葉県千葉市中央区宮崎町
店舗情報
お電話での物件問い合わせは無料通話で!(直営店のみ)
0001-1210869644-0006
- 千葉店
-
この物件で見学予約- 見学予約フォーム -
-
無料通話番号を表示
- 総武・中央緩行線 千葉駅(徒歩3分)
- Tel: 043-224-3211
- 店舗詳細情報
このお部屋にお問い合わせ
あわせて店舗への来店を希望のお客様は、上の希望店舗の来店予約フォームをご利用ください(直営店舗のみ)
Sorry,Japanese & English only. 日本語・英語のみ対応しております。ご了承ください。
- ※取扱形態は媒介(先物)です。 / お部屋の情報は随時更新です / 各種情報と現況に差異がある場合は、現況優先となります。 / 保証会社の審査があります。 / 契約一時金は、契約時に借主より貸主に支払われ返還されない金銭です。

この物件のかんたんお問合せフォーム
お電話でお問合せ(無料)



















千葉県千葉市中央区祐光1丁目