ザ・パークハビオSOHO市谷左内町 物件詳細情報
| 沿線・駅 所在地 |
賃料 共益費(管理費) |
敷金 礼金 |
間取り 専有面積 |
種別 建築年月日 |
|
|---|---|---|---|---|---|
|
総武・中央緩行線 市ヶ谷駅(徒歩4分)
東京都新宿区市谷左内町 |
336,700円 25,000円 |
336,700円 336,700円 |
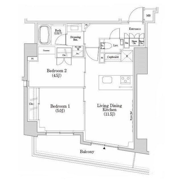
2LDK 50.28m2 |
マンション 2026年5月 |
|
ミニミニの仲介手数料は家賃の55%(税込)です。※直営店は全店対象。但し、駐車場・店舗・事務所・業者仲介及び紹介契約は対象外。※FC店舗は対象外ですので、各店にお問い合わせください。
この物件のお問い合わせ番号 0001-S000115505-0009
外観・間取り図
情報登録日:2026/04/27 情報更新日:2026/04/28 次回更新予定日:2026/05/05
◆新築◆ペット相談、楽器相談、SOHO相談マンション 2年の定期借家契約となります。ペット(小型犬・猫計2匹迄/敷金1ヶ月積増)/インターネット接続可(e-mansion基本プラン無料 無料Wi-Fi設置)/コワーキングスペースあります。
設備
| 部屋設備 | ガス給湯 / 浴室給湯あり / キッチン給湯あり / 洗面所給湯あり / TV付モニターホン / ガスコンロ(コンロ(3口)) / エアコン / フローリング / ベランダ / バルコニー / 洋式トイレ / トイレ電源有 / シャワー / 浴室乾燥機 / 洗面化粧台 / 追焚き / 室内洗濯機置場 / バストイレ別 / 角部屋 / シャワー付トイレ / クロゼット / 洗面所独立 / システムキッチン |
|---|---|
| 建物設備 | エレベータ / オートロック / 宅配ボックス / ペット可(犬・猫可) / ネット利用料無料 / ネット環境(光ファイバ対応) / BSアンテナ / CSアンテナ / 敷地内ゴミ置き場 / 防犯カメラ |
物件詳細
| 交通機関 | ・総武・中央緩行線 市ヶ谷駅(徒歩4分) ・東京メトロ有楽町線 市ヶ谷駅(徒歩4分) ・東京メトロ南北線 市ヶ谷駅(徒歩3分) | ||||
|---|---|---|---|---|---|
| 構造 | RC造 | 方位 | 北東 | 階数/総階数 | 1階/6階建て |
| 総戸数 | - | 駐車場 | - | 入居日 | 2026年6月上旬 |
| 環境 | 千代田区立番町小学校 (700m) / 私立三輪田学園中学校 (861m) / 新宿区立長延保育園 (368m) / 私立千代田高校 (899m) / 千代田区役所麹町出張所 (1,261m) / 新宿保健会館内郵便局 (278m) / 日本大学大学院グローバルビジネス研究科図書閲覧室 (468m) / 牛込警察署 (901m) / くるま旅パーク東京都新宿四谷3丁目 (1,930m) / 東京逓信病院 (1,210m) / みずほ銀行市ヶ谷支店 (333m) / 成城石井市ヶ谷店 (517m) / ファミリーマート新宿市谷見附店 (60m) / 新宿マルイメン (2,865m) / くすりの福太郎市ヶ谷店 (184m) / ソメヤ家具新宿店(ソメイユ東京) (1,995m) / 私立武蔵野美術大学市ヶ谷キャンパス (74m) / ゲオ北新宿店 (4,292m) / 喫茶室ルノアール市ヶ谷外堀通り店 (56m) / 無印良品MUJI com武蔵野美術大学市ヶ谷キャンパス店 (74m) | ||||
| 内装代 | - | 償却 | 0円 | 保険 | 損保要 |
| 更新料 | - | 水道料金等預かり金 | - | 特記事項 | 定期建物賃貸借物件 |
| 飲用水 | 公営 | ガス | 都市 | 排水 | 公共下水 |
| 給湯方式 | ガス給湯(浴室給湯あり・キッチン給湯あり・洗面所給湯あり) | ||||
その他の費用
| 毎月 | コワーキングスペース使用料:3,300円 |
|---|---|
| 他 | 家賃保証会社 初回保証料50% |
この物件のお問い合わせ番号 0001-S000115505-0009
類似物件一覧
店舗情報
お電話での物件問い合わせは無料通話で!(直営店のみ)
0001-S000115505-0009
- 飯田橋店
-
この物件で見学予約- 見学予約フォーム -
-
無料通話番号を表示
- 総武・中央緩行線 飯田橋駅(徒歩1分)
- Tel: 03-3269-1532
- 店舗詳細情報
このお部屋にお問い合わせ
あわせて店舗への来店を希望のお客様は、上の希望店舗の来店予約フォームをご利用ください(直営店舗のみ)
Sorry,Japanese & English only. 日本語・英語のみ対応しております。ご了承ください。
- ※取扱形態は媒介(先物)です。 / お部屋の情報は随時更新です / 各種情報と現況に差異がある場合は、現況優先となります。 / 保証会社の審査があります。 / 契約一時金は、契約時に借主より貸主に支払われ返還されない金銭です。

この物件のかんたんお問合せフォーム
お電話でお問合せ(無料)








東京都新宿区市谷台町