アプトエル 物件詳細情報
| 沿線・駅 所在地 |
賃料 共益費(管理費) |
敷金 礼金 |
間取り 専有面積 |
種別 建築年月日 |
|
|---|---|---|---|---|---|
|
北総鉄道 新柴又駅(徒歩8分)
東京都葛飾区鎌倉4丁目 |
99,000円 4,000円 |
- 99,000円 |
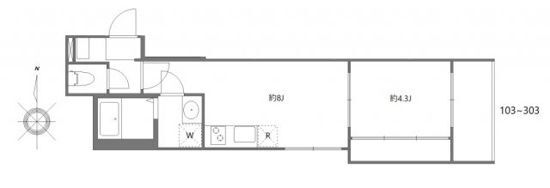
1LDK 31.07m2 |
アパート 2026年3月 |
|
ミニミニの仲介手数料は家賃の55%(税込)です。※直営店は全店対象。但し、駐車場・店舗・事務所・業者仲介及び紹介契約は対象外。※FC店舗は対象外ですので、各店にお問い合わせください。
この物件のお問い合わせ番号 0001-S000113156-0003
京成本線「京成小岩」駅 徒歩10分 インターネット無料。オートロック・宅配ボックス・浴室乾燥機あり。

- 葛飾鎌倉郵便局
設備
| 部屋設備 | TV付モニターホン / 下駄箱 / エアコン / フローリング / バルコニー / 洋式トイレ / シャワー / 浴室乾燥機 / 洗面化粧台 / 追焚き / 室内洗濯機置場 / バストイレ別 / クロゼット / 洗面所独立 / オンライン接客 / IT重説 |
|---|---|
| 建物設備 | オートロック / 宅配ボックス / ネット利用料無料 |
物件詳細
| 交通機関 | ・北総鉄道 新柴又駅(徒歩8分) ・京成電鉄本線 京成小岩駅(徒歩10分) ・京成電鉄金町線 柴又駅(徒歩16分) | ||||
|---|---|---|---|---|---|
| 構造 | 木造 | 方位 | 東 | 階数/総階数 | 1階/3階建て |
| 総戸数 | 9戸 | 駐車場 | - | 入居日 | 2026年3月下旬 |
| 環境 | 葛飾区立鎌倉小学校 (262m) / 江戸川区立小岩第三中学校 (689m) / 鎌倉保育園 (242m) / 私立愛国高校 (859m) / 葛飾区役所 (3,499m) / 葛飾鎌倉郵便局 (53m) / 葛飾区立鎌倉図書館 (666m) / 小岩警察署 (1,859m) / 小岩公園 (769m) / かつしか江戸川病院 (1,170m) / 東京シティ信用金庫新柴又支店 (350m) / リブレ京成新柴又店 (420m) / セブンイレブン葛飾鎌倉3丁目店 (194m) / プラーレ松戸 (6,019m) / くすりの福太郎葛飾鎌倉店 (507m) / ノジマイトーヨーカドー小岩店 (1,842m) / 国立大学法人東京科学大学国府台キャンパス (4,210m) / TSUTAYA青戸店 (2,782m) / キッチンオリジン京成小岩店 (749m) / 無印良品500シャポー小岩店 (1,832m) | ||||
| 内装代 | - | 償却 | 0円 | 保険 | 損保要 |
| 更新料 | 148,500円 | 水道料金等預かり金 | - | 特記事項 | - |
| 飲用水 | 公営 | ガス | プロパン | 排水 | 公共下水 |
| 給湯方式 | - | ||||
その他の費用
| 毎月 | 町会費:300円 |
|---|---|
| 一時 | プレミアデスク(2年/税込):22,000円/契約時ルームクリーニング費用(税込):66,000円/消毒料:17,600円 |
| 他 | 家賃保証会社 初回保証料50% 次年度以降15,000円 引落とし手数料660円 |
この物件のお問い合わせ番号 0001-S000113156-0003
類似物件一覧
店舗情報
お電話での物件問い合わせは無料通話で!(直営店のみ)
0001-S000113156-0003
- 小岩店
-
この物件で見学予約- 見学予約フォーム -
-
無料通話番号を表示
- 総武・中央緩行線 小岩駅(徒歩2分)
- Tel: 03-5668-3201
- 店舗詳細情報
このお部屋にお問い合わせ
あわせて店舗への来店を希望のお客様は、上の希望店舗の来店予約フォームをご利用ください(直営店舗のみ)
Sorry,Japanese & English only. 日本語・英語のみ対応しております。ご了承ください。
- ※取扱形態は媒介(先物)です。 / お部屋の情報は随時更新です / 各種情報と現況に差異がある場合は、現況優先となります。 / 保証会社の審査があります。 / 契約一時金は、契約時に借主より貸主に支払われ返還されない金銭です。

この物件のかんたんお問合せフォーム
お電話でお問合せ(無料)
外観・間取り図

















東京都葛飾区奥戸9丁目