コンフォリア・リヴ木場EASTT 物件詳細情報
| 沿線・駅 所在地 |
賃料 共益費(管理費) |
敷金 礼金 |
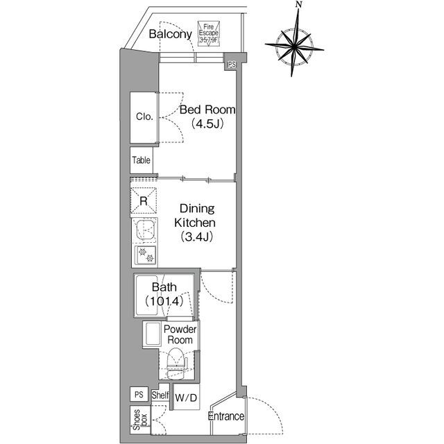
間取り 専有面積 |
種別 建築年月日 |
|
|---|---|---|---|---|---|
|
東京メトロ東西線 木場駅(徒歩8分)
東京都江東区東陽1丁目 |
139,000円 8,000円 |
139,000円 - |
1K 25.16m2 |
マンション 2025年11月 |
|
ミニミニの仲介手数料は家賃の55%(税込)です。※直営店は全店対象。但し、駐車場・店舗・事務所・業者仲介及び紹介契約は対象外。※FC店舗は対象外ですので、各店にお問い合わせください。
この物件のお問い合わせ番号 0001-S000112092-0002
ペット飼育可 : 小型犬1匹又は猫2匹迄、敷金1ヶ月積増インターネット使用料不要 : ファイバーゲートに限る

- 江東洲崎橋郵便局
設備
| 部屋設備 | TV付モニターホン / 下駄箱 / エアコン / 防音サッシ / 浴室乾燥機 / 洗面化粧台 / 室内洗濯機置場 / バストイレ別 / シャワー付トイレ / 洗面所独立 / オンライン内見 / オンライン接客 / IT重説 |
|---|---|
| 建物設備 | エレベータ / オートロック / 駐輪場 / 宅配ボックス / ペット可(犬・猫可) / BSアンテナ / CSアンテナ / ネット利用料無料 / 敷地内ゴミ置き場 / 防犯カメラ |
物件詳細
| 交通機関 | ・東京メトロ東西線 木場駅(徒歩8分) ・東京メトロ東西線 東陽町駅(徒歩8分) ・東京メトロ東西線 門前仲町駅(徒歩19分) | ||||
|---|---|---|---|---|---|
| 構造 | RC造 | 方位 | 北 | 階数/総階数 | 6階/9階建て |
| 総戸数 | 26戸 | 駐車場 | - | 入居日 | 即入居可 |
| 環境 | 江東区役所 (1,016m) / 江東洲崎橋郵便局 (135m) / 江東区立東陽図書館 (775m) / 深川警察署 (1,094m) / 洲崎川緑道公園 (111m) / 医療法人社団修世会木場病院 (728m) / 京葉銀行品川支店 (762m) / まいばすけっと東陽1丁目店 (188m) / ローソンストア100東陽1丁目店 (54m) / 丸井錦糸町店 (3,348m) / くすりの福太郎東陽町3丁目店 (343m) / ノジマイトーヨーカドー木場店 (1,022m) / 私立東京保健医療専門職大学 (760m) / TSUTAYA門前仲町店 (1,275m) / キッチンオリジン東陽町店 (203m) / 深川ギャザリア (806m) | ||||
| 内装代 | - | 償却 | 0円 | 保険 | 損保要 |
| 更新料 | 139,000円 | 水道料金等預かり金 | - | 特記事項 | - |
| 飲用水 | 公営 | ガス | 都市 | 排水 | 公共下水 |
| 給湯方式 | - | ||||
その他の費用
| 一時 | 清掃費:44,000円/エアコン清掃費:16,500円/消毒料:17,600円 |
|---|---|
| 他 | 毎月賃料等請求金額の合計50% 月額保証料:賃料等の1% |
この物件のお問い合わせ番号 0001-S000112092-0002
類似物件一覧
-
14.1万円
-
-
-
15.0万円
-
1.0ヶ月
1DK
東京都江東区佐賀1丁目 -
14.2万円
-
-
1DK
東京都江東区石島 -
13.0万円
-
-
1SK
東京都江東区毛利1丁目 -
14.7万円
147,000円
1.0ヶ月
1DK
東京都江東区亀戸6丁目 -
14.5万円
145,000円
1.0ヶ月
1DK
東京都江東区亀戸6丁目 -
11.9万円
-
-
1K
東京都江東区永代2丁目 -
14.1万円
141,000円
-
1K
東京都江東区木場5丁目 -
14.8万円
148,000円
-
1DK
東京都江東区森下3丁目 -
13.9万円
139,000円
-
1DK
東京都江東区亀戸5丁目 -
12.2万円
122,000円
1.0ヶ月
1K
東京都江東区冬木 -
14.7万円
147,000円
-
1DK
東京都江東区森下3丁目
店舗情報
お電話での物件問い合わせは無料通話で!(直営店のみ)
0001-S000112092-0002
- 門前仲町店
-
この物件で見学予約- 見学予約フォーム -
-
無料通話番号を表示
- 東京メトロ東西線 門前仲町駅(徒歩1分)
- Tel: 03-5245-2232
- 店舗詳細情報
このお部屋にお問い合わせ
あわせて店舗への来店を希望のお客様は、上の希望店舗の来店予約フォームをご利用ください(直営店舗のみ)
Sorry,Japanese & English only. 日本語・英語のみ対応しております。ご了承ください。
- ※取扱形態は媒介(先物)です。 / お部屋の情報は随時更新です / 各種情報と現況に差異がある場合は、現況優先となります。 / 保証会社の審査があります。 / 契約一時金は、契約時に借主より貸主に支払われ返還されない金銭です。

この物件のかんたんお問合せフォーム
お電話でお問合せ(無料)
外観・間取り図














東京都江東区千田