Minerva 物件詳細情報
| 沿線・駅 所在地 |
賃料 共益費(管理費) |
敷金 礼金 |
間取り 専有面積 |
種別 建築年月日 |
|
|---|---|---|---|---|---|
|
千代田・常磐緩行線 北小金駅(徒歩17分)
千葉県柏市中新宿1丁目 |
54,000円 3,000円 |
- - |
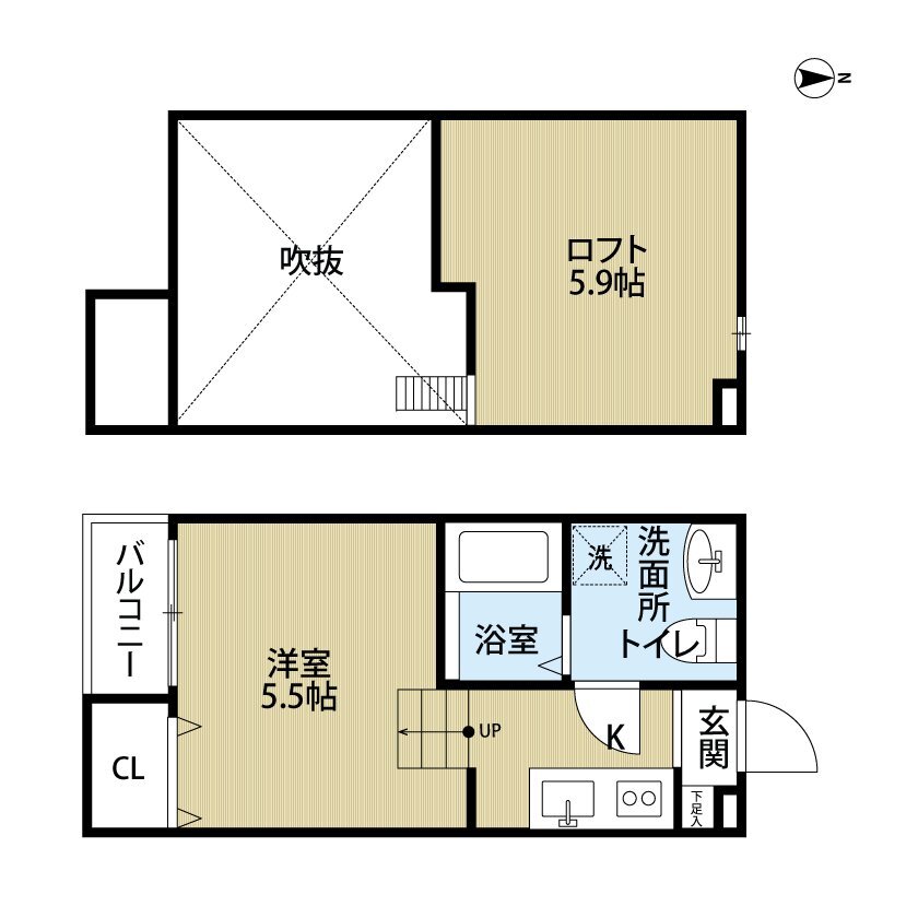
1R 21.28m2 |
アパート 2015年5月 |
|
ミニミニの仲介手数料は家賃の55%(税込)です。※直営店は全店対象。但し、駐車場・店舗・事務所・業者仲介及び紹介契約は対象外。※FC店舗は対象外ですので、各店にお問い合わせください。
この物件のお問い合わせ番号 0001-S000110801-0001
JR常磐線 北小金 徒歩17分バス・トイレ別・TVドアホン・エアコン・室内洗濯機置場・独立洗面台

- 柏中新宿郵便局
設備
| 部屋設備 | ガス給湯 / TV付モニターホン / ガスコンロ / エアコン / フローリング / ロフト / シャワー / 追焚き / 室内洗濯機置場 / バストイレ別 / 角部屋 / オンライン内見 / オンライン接客 / IT重説 |
|---|---|
| 建物設備 |
物件詳細
| 交通機関 | ・千代田・常磐緩行線 北小金駅(徒歩17分) ・千代田・常磐緩行線 南柏駅(徒歩23分) ・千代田・常磐緩行線 新松戸駅(徒歩35分) | ||||
|---|---|---|---|---|---|
| 構造 | 木造 | 方位 | 南 | 階数/総階数 | 1階/2階建て |
| 総戸数 | - | 駐車場 | - | 入居日 | 2026年4月中旬 |
| 環境 | 流山市立向小金小学校 (1,206m) / 私立麗澤中学校 (1,201m) / ミラッツ流山向小金第二保育園 (1,196m) / 私立麗澤高校 (1,184m) / 流山市役所東部出張所 (1,739m) / 柏中新宿郵便局 (454m) / 流山市立木の図書館 (1,748m) / 松戸東警察署 (3,737m) / 平賀中台緑地 (1,852m) / 医療法人社団清志会山本病院 (1,186m) / JAとうかつ中央小金支店 (1,288m) / カスミフードスクエア柏中新宿店 (692m) / セブンイレブン柏中新宿店 (631m) / 柏高島屋ステーションモール (4,595m) / ウエルシア流山向小金店 (699m) / ホームセンターコーナン柏中新宿店 (676m) / 私立麗澤大学 (1,424m) / TSUTAYA柏駅前店 (4,472m) / 肉の万世流山店 (618m) / #ワークマン女子南柏店 (953m) | ||||
| 内装代 | - | 償却 | 0円 | 保険 | 損保要 |
| 更新料 | 54,000円 | 水道料金等預かり金 | - | 特記事項 | - |
| 飲用水 | 公営 | ガス | プロパン | 排水 | 公共下水 |
| 給湯方式 | ガス給湯 | ||||
その他の費用
| 毎月 | ルームサポートサービス:2,700円/町内会費等手数料:165円 |
|---|---|
| 一時 | ルームクリーニング代:55,000円/入居者アプリ設定費:22,000円/鍵交換費:27,500円 |
| 他 | 家賃保証会社 初回保証料100% |
この物件のお問い合わせ番号 0001-S000110801-0001
類似物件一覧
-
4.0万円
-
-
-
7.0万円
-
1.0ヶ月
1K
千葉県柏市柏6丁目 -
6.3万円
63,000円
1.0ヶ月
1K
千葉県柏市桜台 -
5.8万円
-
1.0ヶ月
1K
千葉県柏市永楽台1丁目 -
6.6万円
66,000円
1.0ヶ月
1K
千葉県柏市桜台 -
4.9万円
-
1.0ヶ月
1R
千葉県柏市南柏1丁目 -
6.8万円
-
1.0ヶ月
1K
千葉県柏市泉町 -
5.9万円
-
-
1R
千葉県柏市柏6丁目 -
6.5万円
65,000円
1.0ヶ月
1K
千葉県柏市末広町 -
5.3万円
-
1.0ヶ月
1K
千葉県柏市柏7丁目 -
5.0万円
-
-
1DK
千葉県柏市根戸 -
5.3万円
-
-
1K
千葉県柏市柏7丁目
店舗情報
お電話での物件問い合わせは無料通話で!(直営店のみ)
0001-S000110801-0001
- 新松戸店
-
この物件で見学予約- 見学予約フォーム -
-
無料通話番号を表示
- 千代田・常磐緩行線 新松戸駅(徒歩1分)
- Tel: 047-344-0032
- 店舗詳細情報
このお部屋にお問い合わせ
あわせて店舗への来店を希望のお客様は、上の希望店舗の来店予約フォームをご利用ください(直営店舗のみ)
Sorry,Japanese & English only. 日本語・英語のみ対応しております。ご了承ください。
- ※取扱形態は媒介(先物)です。 / お部屋の情報は随時更新です / 各種情報と現況に差異がある場合は、現況優先となります。 / 保証会社の審査があります。 / 契約一時金は、契約時に借主より貸主に支払われ返還されない金銭です。

この物件のかんたんお問合せフォーム
お電話でお問合せ(無料)
外観・間取り図
















千葉県柏市豊四季