JU RUY Ichigaya Daimachi 物件詳細情報
| 沿線・駅 所在地 |
賃料 共益費(管理費) |
敷金 礼金 |
間取り 専有面積 |
種別 建築年月日 |
|
|---|---|---|---|---|---|
|
都営地下鉄新宿線 曙橋駅(徒歩5分)
東京都新宿区市谷台町 |
140,000円 8,000円 |
140,000円 - |
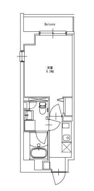
1K 26.39m2 |
マンション 2026年3月 |
|
ミニミニの仲介手数料は家賃の55%(税込)です。※直営店は全店対象。但し、駐車場・店舗・事務所・業者仲介及び紹介契約は対象外。※FC店舗は対象外ですので、各店にお問い合わせください。
この物件のお問い合わせ番号 0001-S000110647-0006
外観・間取り図
情報登録日:2026/03/06 情報更新日:2026/03/10 次回更新予定日:2026/03/17
設備
| 部屋設備 | TV付モニターホン / 下駄箱 / IHヒーター / エアコン / バルコニー / 浴室乾燥機 / 室内洗濯機置場 / バストイレ別 / コンロ(コンロ(2口)) / 角部屋 / シャワー付トイレ / クロゼット / 洗面所独立 / オンライン内見 / オンライン接客 / IT重説 |
|---|---|
| 建物設備 | エレベータ / オートロック / 駐輪場 / 宅配ボックス / ネット利用料無料 / 敷地内ゴミ置き場 / 防犯カメラ |
物件詳細
| 交通機関 | ・都営地下鉄新宿線 曙橋駅(徒歩5分) ・都営地下鉄大江戸線 若松河田駅(徒歩11分) ・東京メトロ丸ノ内線 四谷三丁目駅(徒歩12分) | ||||
|---|---|---|---|---|---|
| 構造 | RC造 | 方位 | 北東 | 階数/総階数 | 6階/8階建て |
| 総戸数 | - | 駐車場 | - | 入居日 | 2026年3月下旬 |
| 環境 | 新宿区立富久小学校 (418m) / 私立成女学園中学校 (327m) / ニチイキッズ曙橋保育園 (233m) / 東京都立総合芸術高校 (274m) / 新宿区役所 (1,700m) / 新宿住吉郵便局 (338m) / 東京女子医科大学図書館 (633m) / 警視庁第四方面本部 (739m) / 新宿区立富久さくら公園 (573m) / 東京女子医科大学病院 (809m) / みずほ銀行四谷支店 (870m) / まいばすけっと新宿住吉町店 (416m) / ファミリーマート市谷台町店 (63m) / 新宿マルイメン (1,410m) / ココカラファイン曙橋店 (349m) / ソメヤ家具新宿店(ソメイユ東京) (1,065m) / 私立東京医科大学 (639m) / ゲオ北新宿店 (2,654m) / すき家曙橋店 (416m) / ユニクロ新宿三丁目店 (1,515m) | ||||
| 内装代 | - | 償却 | 0円 | 保険 | 損保要 |
| 更新料 | 140,000円 | 水道料金等預かり金 | - | 特記事項 | - |
| 飲用水 | 公営 | ガス | 都市 | 排水 | 公共下水 |
| 給湯方式 | - | ||||
その他の費用
| 一時 | ルームクリーニング代:38,500円/消毒料:17,600円/入居安心サービス料:17,600円 |
|---|---|
| 他 | 家賃保証会社 初回保証料40% 年間10,000円 月額330円 |
この物件のお問い合わせ番号 0001-S000110647-0006
類似物件一覧
-
14.6万円
146,000円
1.0ヶ月
-
17.0万円
170,000円
-
1DK
東京都新宿区四谷3丁目 -
16.0万円
-
-
1DK
東京都新宿区市谷仲之町 -
17.0万円
170,000円
1.0ヶ月
1DK
東京都新宿区新小川町 -
15.4万円
-
-
1K
東京都新宿区四谷4丁目 -
14.7万円
147,000円
1.0ヶ月
1DK
東京都新宿区若葉1丁目 -
12.5万円
-
-
1K
東京都新宿区市谷甲良町 -
11.6万円
-
126,000円
1R
東京都新宿区西五軒町 -
17.0万円
170,000円
1.0ヶ月
1R
東京都新宿区四谷4丁目 -
14.7万円
147,000円
1.0ヶ月
1R
東京都新宿区新小川町 -
14.7万円
147,000円
1.2ヶ月
1K
東京都新宿区市谷本村町 -
15.0万円
150,000円
2.0ヶ月
1DK
東京都新宿区山吹町
店舗情報
お電話での物件問い合わせは無料通話で!(直営店のみ)
0001-S000110647-0006
- 飯田橋店
-
この物件で見学予約- 見学予約フォーム -
-
無料通話番号を表示
- 総武・中央緩行線 飯田橋駅(徒歩1分)
- Tel: 03-3269-1532
- 店舗詳細情報
このお部屋にお問い合わせ
あわせて店舗への来店を希望のお客様は、上の希望店舗の来店予約フォームをご利用ください(直営店舗のみ)
Sorry,Japanese & English only. 日本語・英語のみ対応しております。ご了承ください。
- ※取扱形態は媒介(先物)です。 / お部屋の情報は随時更新です / 各種情報と現況に差異がある場合は、現況優先となります。 / 保証会社の審査があります。 / 契約一時金は、契約時に借主より貸主に支払われ返還されない金銭です。

この物件のかんたんお問合せフォーム
お電話でお問合せ(無料)




東京都新宿区若葉1丁目