BPRレジデンス行徳 物件詳細情報
| 沿線・駅 所在地 |
賃料 共益費(管理費) |
敷金 礼金 |
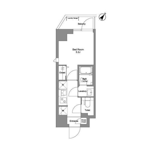
間取り 専有面積 |
種別 建築年月日 |
|
|---|---|---|---|---|---|
|
東京メトロ東西線 行徳駅(徒歩10分)
千葉県市川市新浜1丁目 |
100,000円 8,000円 |
100,000円 - |
1K 20.28m2 |
マンション 2026年2月 |
|
ミニミニの仲介手数料は家賃の55%(税込)です。※直営店は全店対象。但し、駐車場・店舗・事務所・業者仲介及び紹介契約は対象外。※FC店舗は対象外ですので、各店にお問い合わせください。
この物件のお問い合わせ番号 0001-S000110492-0025

- 行徳駅前三郵便局
設備
| 部屋設備 | TV付モニターホン / 下駄箱 / エアコン / 防音サッシ / 浴室乾燥機 / 洗面化粧台 / 室内洗濯機置場 / バストイレ別 / シャワー付トイレ / 洗面所独立 / オンライン内見 / オンライン接客 / IT重説 |
|---|---|
| 建物設備 | エレベータ / オートロック / 駐輪場 / 宅配ボックス / BSアンテナ / CSアンテナ / ネット利用料無料 / 敷地内ゴミ置き場 |
物件詳細
| 交通機関 | ・東京メトロ東西線 行徳駅(徒歩10分) ・京葉線 市川塩浜駅(徒歩20分) ・東京メトロ東西線 妙典駅(徒歩26分) | ||||
|---|---|---|---|---|---|
| 構造 | RC造 | 方位 | 北西 | 階数/総階数 | 1階/7階建て |
| 総戸数 | 87戸 | 駐車場 | 16,500円 | 入居日 | 即入居可 |
| 環境 | 市川市立南新浜小学校 (628m) / 市川市立福栄中学校 (1,281m) / ちゃいれっく入船保育園 (315m) / 千葉県立行徳高校 (2,667m) / 市川市役所行徳支所 (1,188m) / 行徳駅前三郵便局 (575m) / 市川市行徳図書館 (1,120m) / 行徳警察署 (1,396m) / 行徳駅前公園 (881m) / 医療法人友康会行徳中央病院 (150m) / 朝日信用金庫行徳駅前支店 (837m) / 西友新浜店 (213m) / ファミリーマート市川入船店 (173m) / 東武百貨店船橋店 (8,345m) / マツモトキヨシ行徳店 (675m) / ニトリ市川千鳥町店 (672m) / 私立明海大学 (4,507m) / ゲオ行徳店 (1,109m) / 丸亀製麺行徳店 (85m) / M’av行徳 (906m) | ||||
| 内装代 | - | 償却 | 0円 | 保険 | 損保要 |
| 更新料 | 100,000円 | 水道料金等預かり金 | - | 特記事項 | - |
| 飲用水 | 公営 | ガス | 都市 | 排水 | 公共下水 |
| 給湯方式 | - | ||||
その他の費用
| 一時 | 消毒料:17,600円/入居安心サービス料:17,600円/清掃費:38,500円/エアコン清掃費:11,000円 |
|---|---|
| 他 | 必須 エポスカード(RP)(保証料:賃料等の50%(最低2万)、月額保証料:賃料等の1%(更新料無)) |
この物件のお問い合わせ番号 0001-S000110492-0025
類似物件一覧
-
7.2万円
-
2.0ヶ月
-
7.3万円
-
1.0ヶ月
1K
千葉県市川市南行徳4丁目 -
7.5万円
75,000円
-
1K
千葉県市川市行徳駅前2丁目 -
8.4万円
84,000円
1.0ヶ月
1K
千葉県市川市行徳駅前3丁目 -
8.4万円
84,000円
-
1K
千葉県市川市平田3丁目 -
7.3万円
73,000円
-
1K
千葉県市川市市川3丁目 -
8.6万円
-
-
1K
千葉県市川市南行徳3丁目 -
8.6万円
86,000円
1.0ヶ月
1K
千葉県市川市原木1丁目 -
9.9万円
-
-
1R
千葉県市川市市川4丁目 -
9.8万円
-
-
1R
千葉県市川市市川4丁目 -
9.5万円
-
2.0ヶ月
1K
千葉県市川市南八幡5丁目 -
8.7万円
87,000円
1.0ヶ月
1R
千葉県市川市市川3丁目
店舗情報
お電話での物件問い合わせは無料通話で!(直営店のみ)
0001-S000110492-0025
- 行徳店
-
この物件で見学予約- 見学予約フォーム -
-
無料通話番号を表示
- 東京メトロ東西線 行徳駅(徒歩1分)
- Tel: 047-318-6632
- 店舗詳細情報
このお部屋にお問い合わせ
あわせて店舗への来店を希望のお客様は、上の希望店舗の来店予約フォームをご利用ください(直営店舗のみ)
Sorry,Japanese & English only. 日本語・英語のみ対応しております。ご了承ください。
- ※取扱形態は媒介(先物)です。 / お部屋の情報は随時更新です / 各種情報と現況に差異がある場合は、現況優先となります。 / 保証会社の審査があります。 / 契約一時金は、契約時に借主より貸主に支払われ返還されない金銭です。

この物件のかんたんお問合せフォーム
お電話でお問合せ(無料)
外観・間取り図

















千葉県市川市国府台6丁目