コンフォリア・リヴ両国イースト 物件詳細情報
| 沿線・駅 所在地 |
賃料 共益費(管理費) |
敷金 礼金 |
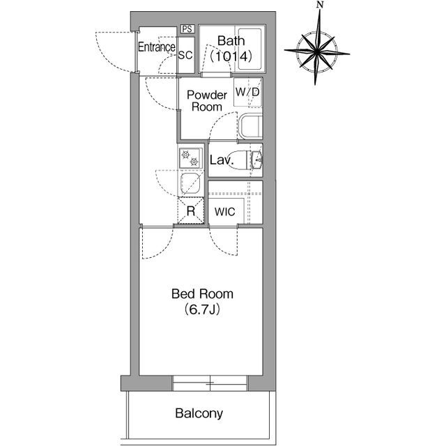
間取り 専有面積 |
種別 建築年月日 |
|
|---|---|---|---|---|---|
|
都営地下鉄大江戸線 両国駅(徒歩5分)
東京都墨田区亀沢2丁目 |
130,000円 8,000円 |
130,000円 - |
1K 25.16m2 |
マンション 2025年11月 |
|
ミニミニの仲介手数料は家賃の55%(税込)です。※直営店は全店対象。但し、駐車場・店舗・事務所・業者仲介及び紹介契約は対象外。※FC店舗は対象外ですので、各店にお問い合わせください。
この物件のお問い合わせ番号 0001-S000110024-0002
外観・間取り図
情報登録日:2026/02/08 情報更新日:2026/02/09 次回更新予定日:2026/02/16
◆インターネット無料♪(つなぐネットに限る)◆◆ペット飼育可(小型犬1匹又は猫2匹 敷金1ヶ月積増)
設備
| 部屋設備 | TV付モニターホン / 下駄箱 / エアコン / 防音サッシ / 浴室乾燥機 / 洗面化粧台 / 室内洗濯機置場 / バストイレ別 / シャワー付トイレ / 洗面所独立 / オンライン内見 / オンライン接客 / IT重説 |
|---|---|
| 建物設備 | エレベータ / オートロック / 駐輪場 / 宅配ボックス / ペット可(犬・猫可) / BSアンテナ / CSアンテナ / ネット利用料無料 / 敷地内ゴミ置き場 / 防犯カメラ |
物件詳細
| 交通機関 | ・都営地下鉄大江戸線 両国駅(徒歩5分) ・総武・中央緩行線 両国駅(徒歩12分) ・都営地下鉄浅草線 本所吾妻橋駅(徒歩18分) | ||||
|---|---|---|---|---|---|
| 構造 | RC造 | 方位 | 南 | 階数/総階数 | 2階/7階建て |
| 総戸数 | 27戸 | 駐車場 | - | 入居日 | 即入居可 |
| 環境 | 墨田区役所 (1,587m) / 墨田石原郵便局 (549m) / 墨田区立緑図書館 (444m) / 蔵前警察署 (1,429m) / 横網町公園 (850m) / 医療法人財団正明会山田記念病院 (451m) / 朝日信用金庫本所支店 (668m) / まいばすけっと亀沢3丁目店 (328m) / ローソン墨田石原二丁目店 (203m) / 丸井錦糸町店 (1,457m) / どらっぐぱぱす石原店 (287m) / ヨドバシカメラマルチメディア錦糸町 (1,551m) / 私立レイクランド大学ジャパンキャンパス (892m) / ゲオ曳舟店 (3,408m) / キッチンオリジン墨田石原2丁目店 (337m) / 両国江戸NOREN (1,134m) | ||||
| 内装代 | - | 償却 | 0円 | 保険 | 損保要 |
| 更新料 | 130,000円 | 水道料金等預かり金 | - | 特記事項 | - |
| 飲用水 | 公営 | ガス | 都市 | 排水 | 公共下水 |
| 給湯方式 | - | ||||
その他の費用
| 一時 | 清掃費:38,500円/エアコン清掃費:11,000円/消毒料:17,600円 |
|---|---|
| 他 | 毎月賃料等請求金額の合計50% 月額保証料:賃料等の1% |
この物件のお問い合わせ番号 0001-S000110024-0002
類似物件一覧
-
12.8万円
128,000円
-
-
15.6万円
156,000円
-
1DK
東京都墨田区千歳1丁目 -
14.0万円
140,000円
-
1DK
東京都墨田区太平1丁目 -
13.0万円
-
-
1DK
東京都墨田区両国1丁目 -
13.0万円
130,000円
-
1R
東京都墨田区千歳1丁目 -
14.0万円
140,000円
-
1DK
東京都墨田区菊川2丁目 -
13.9万円
139,000円
-
1K
東京都墨田区緑4丁目 -
13.5万円
135,000円
-
1K
東京都墨田区菊川1丁目 -
14.6万円
146,000円
-
1K
東京都墨田区千歳1丁目 -
12.9万円
129,000円
1.0ヶ月
1K
東京都墨田区緑1丁目 -
14.6万円
146,000円
-
1DK
東京都墨田区千歳3丁目 -
13.6万円
136,000円
-
1DK
東京都墨田区千歳3丁目
店舗情報
お電話での物件問い合わせは無料通話で!(直営店のみ)
0001-S000110024-0002
- 三重法人部
- 059-356-8041
- 三重県四日市市鵜の森1丁目1-19太平洋鵜の森ビル5階
このお部屋にお問い合わせ
あわせて店舗への来店を希望のお客様は、上の希望店舗の来店予約フォームをご利用ください(直営店舗のみ)
Sorry,Japanese & English only. 日本語・英語のみ対応しております。ご了承ください。
- ※取扱形態は媒介(先物)です。 / お部屋の情報は随時更新です / 各種情報と現況に差異がある場合は、現況優先となります。 / 保証会社の審査があります。 / 契約一時金は、契約時に借主より貸主に支払われ返還されない金銭です。

この物件のかんたんお問合せフォーム
お電話でお問合せ(法人用)
















東京都墨田区千歳1丁目