ブルックサイドレジデンス木場 物件詳細情報
| 沿線・駅 所在地 |
賃料 共益費(管理費) |
敷金 礼金 |
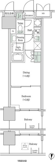
間取り 専有面積 |
種別 建築年月日 |
|
|---|---|---|---|---|---|
|
東京メトロ東西線 木場駅(徒歩9分)
東京都江東区塩浜2丁目 |
130,000円 20,000円 |
130,000円 - |
2K 26.38m2 |
マンション 2026年3月 |
|
ミニミニの仲介手数料は家賃の55%(税込)です。※直営店は全店対象。但し、駐車場・店舗・事務所・業者仲介及び紹介契約は対象外。※FC店舗は対象外ですので、各店にお問い合わせください。
この物件のお問い合わせ番号 0001-S000109336-0028

- 江東木場郵便局
設備
| 部屋設備 | エアコン / フローリング / ベランダ / バルコニー / 浴室乾燥機 / 追焚き / 室内洗濯機置場 / バストイレ別 / システムキッチン / オンライン内見 / オンライン接客 / IT重説 |
|---|---|
| 建物設備 | エレベータ / オートロック / 宅配ボックス / ペット可 / CATV / バイク置き場 |
物件詳細
| 交通機関 | ・東京メトロ東西線 木場駅(徒歩9分) ・東京メトロ有楽町線 豊洲駅(徒歩17分) ・京葉線 潮見駅(徒歩18分) | ||||
|---|---|---|---|---|---|
| 構造 | RC造 | 方位 | 北 | 階数/総階数 | 5階/18階建て |
| 総戸数 | 563戸 | 駐車場 | - | 入居日 | 即入居可 |
| 環境 | 江東区立枝川小学校 (657m) / 江東区立深川第八中学校 (790m) / キッズスマイル江東塩浜 (364m) / 東京都立第三商業高校 (1,242m) / 江東区役所 (2,059m) / 江東木場郵便局 (655m) / 江東区立古石場図書館 (1,061m) / 深川警察署 (1,212m) / 洲崎川緑道公園 (1,140m) / 医社)青藍会鈴木病院 (211m) / 三井住友銀行イトーヨーカドー木場店 (606m) / カルディコーヒーファームイトーヨーカドー木場店 (602m) / セブンイレブン江東塩浜2丁目店 (228m) / 日本橋高島屋 (4,262m) / どらっぐぱぱす塩浜店 (775m) / ノジマイトーヨーカドー木場店 (602m) / 私立東京保健医療専門職大学 (898m) / TSUTAYA門前仲町店 (1,356m) / すき家江東塩浜店 (332m) / ユニクロイトーヨーカドー木場店 (602m) | ||||
| 内装代 | - | 償却 | 0円 | 保険 | 損保要 |
| 更新料 | - | 水道料金等預かり金 | - | 特記事項 | 定期建物賃貸借物件 |
| 飲用水 | 公営 | ガス | 都市 | 排水 | 公共下水 |
| 給湯方式 | - | ||||
その他の費用
| 毎月 | 口座振替事務手数料(月額):110円 |
|---|---|
| 一時 | 室内清掃費用:44,000円/入居時シリンダー交換:33,000円/消毒料:17,600円 |
| 他 | 家賃保証会社 初回保証料50% 2年目以降年間10,000円 決済手数料300円 |
この物件のお問い合わせ番号 0001-S000109336-0028
類似物件一覧
-
11.5万円
1.0ヶ月
1.0ヶ月
-
15.0万円
150,000円
-
1LDK
東京都江東区大島8丁目 -
12.8万円
128,000円
-
2K
東京都江東区亀戸6丁目 -
12.5万円
125,000円
1.0ヶ月
1LDK
東京都江東区亀戸7丁目 -
15.2万円
152,000円
-
1LDK
東京都江東区亀戸9丁目 -
12.7万円
-
-
2K
東京都江東区大島1丁目 -
12.5万円
-
-
1LDK
東京都江東区大島1丁目 -
16.1万円
161,000円
1.0ヶ月
1LDK
東京都江東区塩浜2丁目 -
12.9万円
144,000円
-
1LDK
東京都江東区森下2丁目 -
13.1万円
-
-
2K
東京都江東区大島1丁目 -
13.0万円
130,000円
1.0ヶ月
2DK
東京都江東区大島2丁目 -
14.5万円
-
1.0ヶ月
1LDK
東京都江東区亀戸9丁目
店舗情報
お電話での物件問い合わせは無料通話で!(直営店のみ)
0001-S000109336-0028
- 門前仲町店
-
この物件で見学予約- 見学予約フォーム -
-
無料通話番号を表示
- 東京メトロ東西線 門前仲町駅(徒歩1分)
- Tel: 03-5245-2232
- 店舗詳細情報
このお部屋にお問い合わせ
あわせて店舗への来店を希望のお客様は、上の希望店舗の来店予約フォームをご利用ください(直営店舗のみ)
Sorry,Japanese & English only. 日本語・英語のみ対応しております。ご了承ください。
- ※取扱形態は媒介(先物)です。 / お部屋の情報は随時更新です / 各種情報と現況に差異がある場合は、現況優先となります。 / 保証会社の審査があります。 / 契約一時金は、契約時に借主より貸主に支払われ返還されない金銭です。

この物件のかんたんお問合せフォーム
お電話でお問合せ(無料)
外観・間取り図




東京都江東区亀戸7丁目