コンフォリア?リヴ?丁堀 物件詳細情報
| 沿線・駅 所在地 |
賃料 共益費(管理費) |
敷金 礼金 |
間取り 専有面積 |
種別 建築年月日 |
|
|---|---|---|---|---|---|
|
京葉線 八丁堀駅(徒歩4分)
東京都中央区入船2丁目 |
161,000円 10,000円 |
161,000円 - |
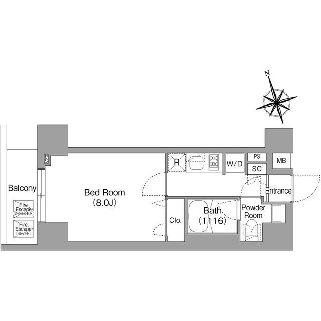
1K 25.33m2 |
マンション 2026年2月 |
|
ミニミニの仲介手数料は家賃の55%(税込)です。※直営店は全店対象。但し、駐車場・店舗・事務所・業者仲介及び紹介契約は対象外。※FC店舗は対象外ですので、各店にお問い合わせください。
この物件のお問い合わせ番号 0001-S000109213-0006
インターネット無料!(ファイバーゲートに限る)■駐輪場(無料)ペット飼育可(小型犬1匹又は猫2匹迄、敷金1ヶ月積増)

- 新富郵便局
設備
| 部屋設備 | TV付モニターホン / 下駄箱 / エアコン / フローリング / ベランダ / バルコニー / 防音サッシ / 浴室乾燥機 / 洗面化粧台 / 室内洗濯機置場 / バストイレ別 / シャワー付トイレ / クロゼット / 洗面所独立 / オンライン内見 / オンライン接客 / IT重説 |
|---|---|
| 建物設備 | エレベータ / オートロック / 駐輪場 / 宅配ボックス / ペット可(犬・猫可) / BSアンテナ / CSアンテナ / ネット利用料無料 / 敷地内ゴミ置き場 / 防犯カメラ |
物件詳細
| 交通機関 | ・京葉線 八丁堀駅(徒歩4分) ・東京メトロ日比谷線 八丁堀駅(徒歩4分) ・東京メトロ有楽町線 新富町駅(徒歩4分) | ||||
|---|---|---|---|---|---|
| 構造 | RC造 | 方位 | 北西 | 階数/総階数 | 3階/12階建て |
| 総戸数 | 53戸 | 駐車場 | 55,000円 | 入居日 | 即入居可 |
| 環境 | 中央区立中央小学校 (268m) / 中央区立佃中学校 (1,369m) / ブライト保育園東京入船 (169m) / 東京都立晴海総合高校 (2,072m) / 中央区役所 (671m) / 新富郵便局 (249m) / 中央区立京橋図書館 (304m) / 築地警察署 (755m) / あかつき公園 (788m) / (財)聖路加国際病院 (698m) / 三菱UFJ銀行八重洲通支店 (251m) / リコス入船1丁目店 (76m) / ローソン入船一丁目店 (139m) / 松屋銀座 (1,205m) / どらっぐぱぱす明石町店 (745m) / カンディハウス松屋銀座店 (1,206m) / 私立聖路加国際大学 (647m) / TSUTAYA門前仲町店 (2,959m) / 吉野家新富町店 (211m) / KIRARITO GINZA (907m) | ||||
| 内装代 | - | 償却 | 0円 | 保険 | 損保要 |
| 更新料 | 161,000円 | 水道料金等預かり金 | - | 特記事項 | - |
| 飲用水 | 公営 | ガス | 都市 | 排水 | 公共下水 |
| 給湯方式 | - | ||||
その他の費用
| 一時 | 入居安心サービス料:17,600円/消毒料:17,600円/清掃費:44,000円 |
|---|---|
| 他 | 保証料:賃料等の50% 月額保証料:賃料等の1% |
この物件のお問い合わせ番号 0001-S000109213-0006
類似物件一覧
-
13.6万円
136,000円
1.0ヶ月
-
14.3万円
-
-
1K
東京都中央区新川2丁目 -
13.3万円
-
-
1K
東京都中央区月島3丁目 -
16.0万円
-
-
1K
東京都中央区築地7丁目 -
15.9万円
159,000円
1.0ヶ月
1K
東京都中央区月島1丁目 -
16.9万円
169,000円
-
1R
東京都中央区日本橋馬喰町1丁目 -
17.3万円
173,000円
-
1DK
東京都中央区八丁堀3丁目 -
15.0万円
-
-
1R
東京都中央区新富2丁目 -
14.1万円
-
-
1R
東京都中央区新富2丁目 -
13.8万円
-
-
1R
東京都中央区月島2丁目 -
18.8万円
188,000円
-
1DK
東京都中央区日本橋茅場町2丁目 -
15.6万円
-
-
1K
東京都中央区新川2丁目
店舗情報
お電話での物件問い合わせは無料通話で!(直営店のみ)
0001-S000109213-0006
- 東京駅前店
-
この物件で見学予約- 見学予約フォーム -
-
無料通話番号を表示
- 山手線 東京駅(徒歩1分)
- Tel: 03-5205-3232
- 店舗詳細情報
このお部屋にお問い合わせ
あわせて店舗への来店を希望のお客様は、上の希望店舗の来店予約フォームをご利用ください(直営店舗のみ)
Sorry,Japanese & English only. 日本語・英語のみ対応しております。ご了承ください。
- ※取扱形態は媒介(先物)です。 / お部屋の情報は随時更新です / 各種情報と現況に差異がある場合は、現況優先となります。 / 保証会社の審査があります。 / 契約一時金は、契約時に借主より貸主に支払われ返還されない金銭です。

この物件のかんたんお問合せフォーム
お電話でお問合せ(無料)
外観・間取り図
















東京都中央区新川1丁目