コンフォリア中葛西 物件詳細情報
| 沿線・駅 所在地 |
賃料 共益費(管理費) |
敷金 礼金 |
間取り 専有面積 |
種別 建築年月日 |
|
|---|---|---|---|---|---|
|
東京メトロ東西線 葛西駅(徒歩4分)
東京都江戸川区中葛西5丁目 |
189,000円 10,000円 |
189,000円 - |
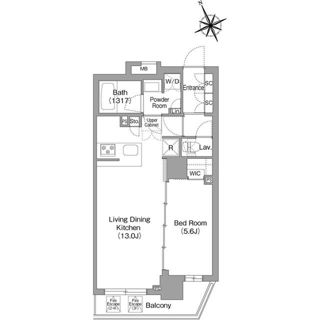
1LDK 43.67m2 |
マンション 2026年2月 |
|
ミニミニの仲介手数料は家賃の55%(税込)です。※直営店は全店対象。但し、駐車場・店舗・事務所・業者仲介及び紹介契約は対象外。※FC店舗は対象外ですので、各店にお問い合わせください。
この物件のお問い合わせ番号 0001-S000108819-0006

- 葛西駅前郵便局
設備
| 部屋設備 | TV付モニターホン / 下駄箱 / エアコン / ウォークインクロゼット / 床暖房 / 照明器具 / バルコニー / 防音サッシ / 浴室乾燥機 / 洗面化粧台 / 追焚き / 室内洗濯機置場 / バストイレ別 / シャワー付トイレ / 洗面所独立 / システムキッチン / オンライン内見 / オンライン接客 / IT重説 |
|---|---|
| 建物設備 | エレベータ / オートロック / 駐輪場 / 宅配ボックス / ペット可(犬・猫可) / BSアンテナ / CSアンテナ / バイク置き場 / ネット利用料無料 / 敷地内ゴミ置き場 / 防犯カメラ |
物件詳細
| 交通機関 | ・東京メトロ東西線 葛西駅(徒歩4分) ・都営地下鉄新宿線 船堀駅(徒歩36分) ・京葉線 葛西臨海公園駅(徒歩39分) | ||||
|---|---|---|---|---|---|
| 構造 | RC造 | 方位 | 南西 | 階数/総階数 | 3階/7階建て |
| 総戸数 | 27戸 | 駐車場 | - | 入居日 | 2026年3月上旬 |
| 環境 | 江戸川区立第四葛西小学校 (972m) / 江戸川区立葛西第三中学校 (728m) / サクラ・ナーサリー (189m) / 東京都立葛西南高校 (1,387m) / 浦安市役所 (4,267m) / 葛西駅前郵便局 (474m) / 江戸川区立西葛西図書館 (787m) / 葛西警察署 (943m) / 宇喜田東公園 (1,056m) / 医療法人社団昌医会葛西昌医会病院 (928m) / 東京東信用金庫葛西駅前支店 (174m) / ワイズマート葛西店 (262m) / セブンイレブン江戸川葛西駅西店 (124m) / 丸井錦糸町店 (7,689m) / マツモトキヨシ中葛西5丁目店 (170m) / ヤマダデンキテックランドNew葛西店 (801m) / 私立青森大学東京キャンパス (2,105m) / ゲオ葛西駅前店 (495m) / なか卯葛西店 (251m) / 紳士服コナカ西葛西店 (905m) | ||||
| 内装代 | - | 償却 | 0円 | 保険 | 損保要 |
| 更新料 | 189,000円 | 水道料金等預かり金 | - | 特記事項 | - |
| 飲用水 | 公営 | ガス | 都市 | 排水 | 公共下水 |
| 給湯方式 | - | ||||
その他の費用
| 一時 | エアコン清掃費:22,000円/清掃費:46,970円/消毒料:17,600円 |
|---|---|
| 他 | 家賃保証会社 初回保証料50% 毎月賃料等請求金額の合計1% |
この物件のお問い合わせ番号 0001-S000108819-0006
類似物件一覧
-
19.3万円
193,000円
-
-
14.2万円
142,000円
1.0ヶ月
1LDK
東京都江戸川区本一色3丁目 -
23.0万円
690,000円
1.0ヶ月
1DK
東京都江戸川区南篠崎町2丁目 -
15.0万円
150,000円
1.0ヶ月
1LDK
東京都江戸川区本一色3丁目 -
14.2万円
142,000円
1.0ヶ月
1LDK
東京都江戸川区上篠崎4丁目 -
13.6万円
-
-
1DK
東京都江戸川区松江6丁目 -
15.0万円
150,000円
1.0ヶ月
1SLDK
東京都江戸川区西瑞江3丁目 -
16.6万円
-
1.0ヶ月
1LDK
東京都江戸川区平井5丁目 -
14.3万円
-
-
1LDK
東京都江戸川区西葛西2丁目 -
13.5万円
-
1.0ヶ月
1LDK
東京都江戸川区中葛西8丁目 -
14.8万円
148,000円
1.0ヶ月
1LDK
東京都江戸川区本一色3丁目 -
14.6万円
-
-
1LDK
東京都江戸川区西葛西2丁目
店舗情報
お電話での物件問い合わせは無料通話で!(直営店のみ)
0001-S000108819-0006
- 西葛西店
-
この物件で見学予約- 見学予約フォーム -
-
無料通話番号を表示
- 東京メトロ東西線 西葛西駅(徒歩1分)
- Tel: 03-3686-3200
- 店舗詳細情報
このお部屋にお問い合わせ
あわせて店舗への来店を希望のお客様は、上の希望店舗の来店予約フォームをご利用ください(直営店舗のみ)
Sorry,Japanese & English only. 日本語・英語のみ対応しております。ご了承ください。
- ※取扱形態は媒介(先物)です。 / お部屋の情報は随時更新です / 各種情報と現況に差異がある場合は、現況優先となります。 / 保証会社の審査があります。 / 契約一時金は、契約時に借主より貸主に支払われ返還されない金銭です。

この物件のかんたんお問合せフォーム
お電話でお問合せ(無料)
外観・間取り図




東京都江戸川区平井2丁目