ヴァローレ松戸フィーロ 物件詳細情報
| 沿線・駅 所在地 |
賃料 共益費(管理費) |
敷金 礼金 |
間取り 専有面積 |
種別 建築年月日 |
|
|---|---|---|---|---|---|
|
常磐線 松戸駅(徒歩7分)
千葉県松戸市松戸 |
80,000円 10,000円 |
80,000円 - |
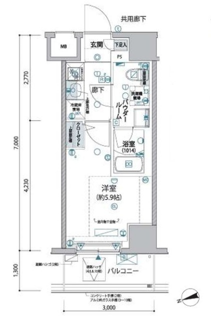
1K 21.00m2 |
マンション 2025年12月 |
|
ミニミニの仲介手数料は家賃の55%(税込)です。※直営店は全店対象。但し、駐車場・店舗・事務所・業者仲介及び紹介契約は対象外。※FC店舗は対象外ですので、各店にお問い合わせください。
この物件のお問い合わせ番号 0001-S000104895-0009

- 松戸駅西口郵便局
設備
| 部屋設備 | ガス給湯 / 浴室給湯あり / キッチン給湯あり / 洗面所給湯あり / TV付モニターホン / インターホン / 下駄箱 / フローリング / バルコニー / 洋式トイレ / トイレ電源有 / シャワー / 浴室乾燥機 / 洗面化粧台 / 室内洗濯機置場 / バストイレ別 / コンロ(コンロ(2口)) / シャワー付トイレ / クロゼット / 洗面所独立 / システムキッチン |
|---|---|
| 建物設備 | エレベータ / オートロック / 宅配ボックス / ネット利用料無料 / 敷地内ゴミ置き場 / 防犯カメラ |
物件詳細
| 交通機関 | ・常磐線 松戸駅(徒歩7分) ・新京成電鉄 松戸駅(徒歩7分) ・千代田・常磐緩行線 北松戸駅(徒歩29分) | ||||
|---|---|---|---|---|---|
| 構造 | RC造 | 方位 | 西 | 階数/総階数 | 8階/10階建て |
| 総戸数 | 118戸 | 駐車場 | - | 入居日 | 2026年1月上旬 |
| 環境 | 松戸市立中部小学校 (182m) / 松戸市立第一中学校みらい分校 (1,406m) / 松戸ゆいのひ保育園 (305m) / 私立専修大学松戸高校 (3,322m) / 松戸市役所 (1,185m) / 松戸駅西口郵便局 (613m) / 松戸市立図書館 (98m) / 松戸警察署 (2,050m) / 松戸中央公園 (1,157m) / 医療法人財団松圓会東葛クリニック病院 (844m) / 群馬銀行松戸支店 (239m) / まいばすけっと松戸駅西口店 (468m) / セブンイレブン松戸本町店 (226m) / プラーレ松戸 (801m) / ウエルシア松戸樋野口店 (512m) / ニトリKITE MITE MATSUDO店 (650m) / 私立聖徳大学 (1,161m) / TSUTAYA松戸駅前店 (481m) / ほっかほっか亭松戸本町店 (220m) / 靴下屋アトレ松戸店 (679m) | ||||
| 内装代 | - | 償却 | 0円 | 保険 | 損保要 |
| 更新料 | 80,000円 | 水道料金等預かり金 | - | 特記事項 | - |
| 飲用水 | 公営 | ガス | 都市 | 排水 | 公共下水 |
| 給湯方式 | ガス給湯(浴室給湯あり・キッチン給湯あり・洗面所給湯あり) | ||||
その他の費用
| 毎月 | オムサポ(24時間サポート・火災保険):2,200円/見守りサービス(60歳以上):1,650円 |
|---|---|
| 一時 | 消毒料:17,600円/入居安心サービス料:17,600円/退去時クリーニング:44,000円/退去時エアコン洗浄:16,500円 |
| 他 | 家賃保証会社 初回保証料50% 毎月賃料等請求金額の合計1.1% |
この物件のお問い合わせ番号 0001-S000104895-0009
類似物件一覧
店舗情報
お電話での物件問い合わせは無料通話で!(直営店のみ)
0001-S000104895-0009
- 松戸店
-
この物件で見学予約- 見学予約フォーム -
-
無料通話番号を表示
- 常磐線 松戸駅(徒歩2分)
- Tel: 047-368-3202
- 店舗詳細情報
このお部屋にお問い合わせ
あわせて店舗への来店を希望のお客様は、上の希望店舗の来店予約フォームをご利用ください(直営店舗のみ)
Sorry,Japanese & English only. 日本語・英語のみ対応しております。ご了承ください。
- ※取扱形態は媒介(先物)です。 / お部屋の情報は随時更新です / 各種情報と現況に差異がある場合は、現況優先となります。 / 保証会社の審査があります。 / 契約一時金は、契約時に借主より貸主に支払われ返還されない金銭です。

この物件のかんたんお問合せフォーム
お電話でお問合せ(無料)
外観・間取り図




千葉県松戸市岩瀬