BPRレジデンス大島 物件詳細情報
| 沿線・駅 所在地 |
賃料 共益費(管理費) |
敷金 礼金 |
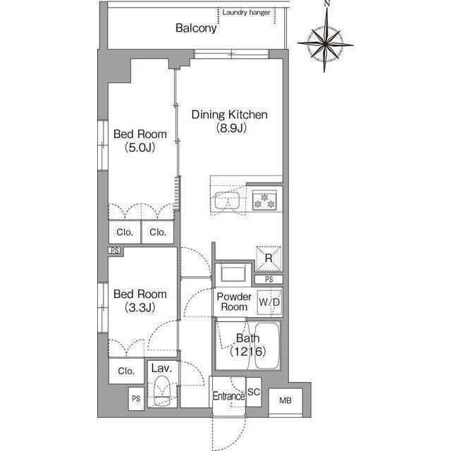
間取り 専有面積 |
種別 建築年月日 |
|
|---|---|---|---|---|---|
|
都営地下鉄新宿線 東大島駅(徒歩7分)
東京都江東区大島8丁目 |
195,000円 15,000円 |
195,000円 - |
2DK 41.05m2 |
マンション 2025年11月 |
|
ミニミニの仲介手数料は家賃の55%(税込)です。※直営店は全店対象。但し、駐車場・店舗・事務所・業者仲介及び紹介契約は対象外。※FC店舗は対象外ですので、各店にお問い合わせください。
この物件のお問い合わせ番号 0001-S000103307-0018
都営新宿線/大島駅 徒歩7分ペット相談可(小型犬1匹または猫2匹まで)ネット使用料無料!※1年未満の解約時賃料等1ヶ月分の違約金かかります

- 江東大島郵便局
設備
| 部屋設備 | 下駄箱 / エアコン / 照明器具 / 防音サッシ / 浴室乾燥機 / 洗面化粧台 / 追焚き / 室内洗濯機置場 / バストイレ別 / シャワー付トイレ / 洗面所独立 / システムキッチン / オンライン内見 / オンライン接客 / IT重説 |
|---|---|
| 建物設備 | エレベータ / オートロック / 駐輪場 / 宅配ボックス / ペット可(犬・猫可) / BSアンテナ / CSアンテナ / ネット利用料無料 / 敷地内ゴミ置き場 / 防犯カメラ |
物件詳細
| 交通機関 | ・都営地下鉄新宿線 東大島駅(徒歩7分) ・都営地下鉄新宿線 大島駅(徒歩7分) ・都営地下鉄新宿線 西大島駅(徒歩18分) | ||||
|---|---|---|---|---|---|
| 構造 | RC造 | 方位 | 北 | 階数/総階数 | 1階/6階建て |
| 総戸数 | 71戸 | 駐車場 | 27,500円 | 入居日 | 即入居可 |
| 環境 | 江東区立第五大島小学校 (554m) / 江東区立大島中学校 (620m) / アスク東大島保育園 (152m) / 私立中央学院大学中央高校 (1,037m) / 江東区役所 (3,966m) / 江東大島郵便局 (248m) / 江東区立東大島図書館 (524m) / 城東警察署 (2,342m) / 亀戸九丁目緑道公園 (1,544m) / 医療法人社団順江会江東病院 (864m) / 東京ベイ信用金庫大島支店 (272m) / ダイエー東大島店 (358m) / セブンイレブン江東大島8丁目店 (346m) / 丸井錦糸町店 (3,202m) / サンドラッグ東大島店 (299m) / ニトリデコホームダイエー東大島店 (359m) / 東京情報デザイン専門職大学 (1,530m) / ゲオ船堀店 (2,469m) / ドムドムハンバーガー東大島店 (360m) / ハニーズ東大島店 (361m) | ||||
| 内装代 | - | 償却 | 0円 | 保険 | 損保要 |
| 更新料 | 195,000円 | 水道料金等預かり金 | - | 特記事項 | - |
| 飲用水 | 公営 | ガス | 都市 | 排水 | 公共下水 |
| 給湯方式 | - | ||||
その他の費用
| 一時 | 鍵交換料:22,000円/入居安心サービス料:17,600円/清掃費:44,990円/エアコン清掃費:22,000円/消毒料:17,600円 |
|---|---|
| 他 | 保証料:賃料等の50% 月額保証料:賃料等の1% |
この物件のお問い合わせ番号 0001-S000103307-0018
類似物件一覧
-
14.0万円
1.0ヶ月
1.0ヶ月
-
19.0万円
190,000円
-
2LDK
東京都江東区亀戸9丁目 -
24.9万円
249,000円
-
2LDK
東京都江東区永代1丁目 -
15.0万円
150,000円
1.0ヶ月
2DK
東京都江東区海辺 -
14.0万円
140,000円
1.0ヶ月
2LDK
東京都江東区塩浜2丁目 -
14.0万円
-
-
2DK
東京都江東区東陽7丁目 -
18.9万円
189,000円
-
2LDK
東京都江東区亀戸9丁目 -
17.0万円
170,000円
1.0ヶ月
2SDK
東京都江東区深川1丁目 -
17.3万円
173,000円
-
2LDK
東京都江東区北砂7丁目 -
19.7万円
197,000円
-
2LDK
東京都江東区木場6丁目 -
18.3万円
-
1.0ヶ月
2LDK
東京都江東区東陽3丁目 -
13.8万円
138,000円
-
2K
東京都江東区塩浜2丁目
店舗情報
お電話での物件問い合わせは無料通話で!(直営店のみ)
0001-S000103307-0018
- 森下店
-
この物件で見学予約- 見学予約フォーム -
-
無料通話番号を表示
- 都営地下鉄大江戸線 森下駅(徒歩1分)
- Tel: 03-5669-3272
- 店舗詳細情報
このお部屋にお問い合わせ
あわせて店舗への来店を希望のお客様は、上の希望店舗の来店予約フォームをご利用ください(直営店舗のみ)
Sorry,Japanese & English only. 日本語・英語のみ対応しております。ご了承ください。
- ※取扱形態は媒介(先物)です。 / お部屋の情報は随時更新です / 各種情報と現況に差異がある場合は、現況優先となります。 / 保証会社の審査があります。 / 契約一時金は、契約時に借主より貸主に支払われ返還されない金銭です。

この物件のかんたんお問合せフォーム
お電話でお問合せ(無料)
外観・間取り図















東京都江東区亀戸1丁目