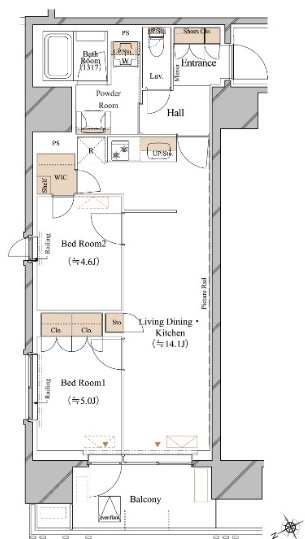
東京都台東区駒形1丁目 2LDK 57.38m2 物件詳細情報
| 沿線・駅 所在地 |
賃料 共益費(管理費) |
敷金 礼金 |
間取り 専有面積 |
種別 建築年月日 |
|
|---|---|---|---|---|---|
|
都営地下鉄浅草線 浅草駅(徒歩3分)
東京都台東区駒形1丁目 |
291,000円 25,000円 |
291,000円 291,000円 |
2LDK 57.38m2 |
マンション 2025年11月 |
|
ミニミニの仲介手数料は家賃の55%(税込)です。※直営店は全店対象。但し、駐車場・店舗・事務所・業者仲介及び紹介契約は対象外。※FC店舗は対象外ですので、各店にお問い合わせください。
この物件のお問い合わせ番号 0001-S000100764-0007
浅草線浅草駅、銀座線浅草駅、大江戸線蔵前駅、各駅徒歩圏内!2025年11月完成!ペット飼育相談可能!インターネット無料!エアコン、温水洗浄便座、モニタ付インターホン、『共用部には、フィットネスルームとデュアルラウンジ"』、エレベーター 、 オートロック、宅配BOX、駐輪場 、 バイク置き場 、駐車場(空確認要)有り!

- 蔵前郵便局
パノラマ
設備
| 部屋設備 | ガス給湯 / 浴室給湯あり / キッチン給湯あり / 洗面所給湯あり / TV付モニターホン / 下駄箱 / エアコン / フローリング / ベランダ / バルコニー / 洋式トイレ / 浴室乾燥機 / 追焚き / 室内洗濯機置場 / バストイレ別 / シャワー付トイレ / 洗面所独立 / オンライン内見 / オンライン接客 / IT重説 |
|---|---|
| 建物設備 | エレベータ / オートロック / 駐輪場 / 宅配ボックス / ペット可 / BSアンテナ / CSアンテナ / CATV / バイク置き場 / ネット利用料無料 |
物件詳細
| 交通機関 | ・都営地下鉄浅草線 浅草駅(徒歩3分) ・東京メトロ銀座線 浅草駅(徒歩7分) ・都営地下鉄大江戸線 蔵前駅(徒歩3分) | ||||
|---|---|---|---|---|---|
| 構造 | RC造 | 方位 | 西 | 階数/総階数 | 3階/15階建て |
| 総戸数 | 116戸 | 駐車場 | 41,800円 | 入居日 | 即入居可 |
| 環境 | 台東区立田原小学校 (672m) / 墨田区立本所中学校 (1,146m) / ポピンズナーサリースクール駒形 (169m) / 私立安田学園高校 (1,042m) / 墨田区役所 (1,009m) / 蔵前郵便局 (359m) / 台東区立くらまえオレンジ図書館 (684m) / 蔵前警察署 (887m) / 屋形舟 隅田川下り (514m) / 同愛記念病院 (999m) / りそな銀行浅草支店 (138m) / まいばすけっと蔵前駅北店 (244m) / ファミリーマート台東駒形一丁目店 (219m) / 松屋浅草 (787m) / どらっぐぱぱす浅草雷門店 (629m) / NOCE浅草蔵前店 (588m) / 私立レイクランド大学ジャパンキャンパス (1,277m) / ゲオ鶯谷店 (2,744m) / 珈琲館トーセイホテルココネ浅草蔵前店 (266m) / ROX2G (892m) | ||||
| 内装代 | - | 償却 | 0円 | 保険 | 損保要 |
| 更新料 | 291,000円 | 水道料金等預かり金 | - | 特記事項 | - |
| 飲用水 | 公営 | ガス | 都市 | 排水 | 公共下水 |
| 給湯方式 | ガス給湯(浴室給湯あり・キッチン給湯あり・洗面所給湯あり) | ||||
その他の費用
| 他 | 毎月賃料等請求金額の合計20% 以後1年毎20% |
|---|
この物件のお問い合わせ番号 0001-S000100764-0007
類似物件一覧
店舗情報
お電話での物件問い合わせは無料通話で!(直営店のみ)
0001-S000100764-0007
- 浅草EKIMISE店
-
この物件で見学予約- 見学予約フォーム -
-
無料通話番号を表示
- 東京メトロ銀座線 浅草駅(徒歩1分)
- Tel: 03-5246-3537
- 店舗詳細情報
このお部屋にお問い合わせ
あわせて店舗への来店を希望のお客様は、上の希望店舗の来店予約フォームをご利用ください(直営店舗のみ)
Sorry,Japanese & English only. 日本語・英語のみ対応しております。ご了承ください。
- ※取扱形態は媒介(先物)です。 / お部屋の情報は随時更新です / 各種情報と現況に差異がある場合は、現況優先となります。 / 保証会社の審査があります。 / 契約一時金は、契約時に借主より貸主に支払われ返還されない金銭です。

この物件のかんたんお問合せフォーム
お電話でお問合せ(無料)
外観・間取り図

























東京都台東区柳橋2丁目