ORME COURT YOTSUYA 物件詳細情報
| 沿線・駅 所在地 |
賃料 共益費(管理費) |
敷金 礼金 |
間取り 専有面積 |
種別 建築年月日 |
|
|---|---|---|---|---|---|
|
都営地下鉄新宿線 曙橋駅(徒歩6分)
東京都新宿区四谷三栄町 |
190,000円 10,000円 |
190,000円 190,000円 |
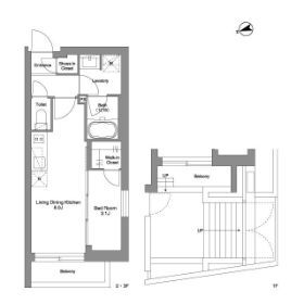
1LDK 30.32m2 |
マンション 2025年2月 |
|
ミニミニの仲介手数料は家賃の55%(税込)です。※直営店は全店対象。但し、駐車場・店舗・事務所・業者仲介及び紹介契約は対象外。※FC店舗は対象外ですので、各店にお問い合わせください。
この物件のお問い合わせ番号 0001-S000086507-0014
都営新宿線 曙橋駅 徒歩6分インターネッ ト 無料, オート ロ ッ ク, モニタ付インターホン

- 四谷通二郵便局
設備
| 部屋設備 | TV付モニターホン / 下駄箱 / エアコン / フローリング / ウォークインクロゼット / 浴室乾燥機 / 室内洗濯機置場 / バストイレ別 / シャワー付トイレ / 洗面所独立 / オンライン内見 / オンライン接客 / IT重説 |
|---|---|
| 建物設備 | エレベータ / オートロック / 駐輪場 / 宅配ボックス / BSアンテナ / CSアンテナ / ネット利用料無料 / 敷地内ゴミ置き場 / 防犯カメラ |
物件詳細
| 交通機関 | ・都営地下鉄新宿線 曙橋駅(徒歩6分) ・東京メトロ丸ノ内線 四谷三丁目駅(徒歩8分) ・中央本線 四ツ谷駅(徒歩10分) | ||||
|---|---|---|---|---|---|
| 構造 | RC造 | 方位 | 西 | 階数/総階数 | 4階/4階建て |
| 総戸数 | 22戸 | 駐車場 | - | 入居日 | 2026年4月下旬 |
| 環境 | 新宿区立四谷小学校 (512m) / 私立雙葉中学校 (971m) / 四谷子ども園 (513m) / 私立雙葉高校 (969m) / 千代田区役所麹町出張所 (1,826m) / 四谷通二郵便局 (267m) / 日本大学大学院総合科学研究科図書室 (1,301m) / 警視庁第四方面本部 (601m) / 新宿区立富久さくら公園 (1,378m) / 医療法人社団鉄友会柳町病院 (1,263m) / みずほ銀行四谷支店 (498m) / まいばすけっと新宿三栄町店 (369m) / ローソン新宿坂町店 (360m) / 新宿マルイメン (1,987m) / スギ薬局四谷三丁目店 (367m) / ソメヤ家具新宿店(ソメイユ東京) (830m) / 私立東京女子医科大学 (1,383m) / ゲオ北新宿店 (3,711m) / ほっともっと四谷2丁目店 (323m) / コモレモール (727m) | ||||
| 内装代 | - | 償却 | 0円 | 保険 | 損保要 |
| 更新料 | 190,000円 | 水道料金等預かり金 | - | 特記事項 | - |
| 飲用水 | 公営 | ガス | 都市 | 排水 | 公共下水 |
| 給湯方式 | - | ||||
その他の費用
| 一時 | ?退去時費? 清掃費:44,000円/エアコン清掃費:16,500円/鍵交換料:50,000円/消毒料:24,200円/入居安心サービス料:17,600円 |
|---|---|
| 他 | 家賃保証会社 初回保証料50% 月額保証料賃料等の1% |
この物件のお問い合わせ番号 0001-S000086507-0014
類似物件一覧
-
20.1万円
201,000円
-
-
20.0万円
200,000円
1.0ヶ月
1LDK
東京都新宿区東五軒町 -
16.8万円
168,000円
-
1LDK
東京都新宿区山吹町 -
16.5万円
165,000円
-
1LDK
東京都新宿区山吹町 -
16.6万円
166,000円
-
1LDK
東京都新宿区山吹町 -
20.3万円
203,000円
-
1DK
東京都新宿区四谷4丁目 -
22.5万円
225,000円
-
1LDK
東京都新宿区四谷三栄町 -
15.9万円
-
-
1DK
東京都新宿区若葉2丁目 -
16.7万円
167,000円
-
1LDK
東京都新宿区山吹町 -
16.2万円
-
-
1DK
東京都新宿区若葉2丁目 -
22.3万円
223,000円
-
1LDK
東京都新宿区新小川町 -
17.0万円
170,000円
-
1DK
東京都新宿区四谷3丁目
店舗情報
お電話での物件問い合わせは無料通話で!(直営店のみ)
0001-S000086507-0014
- 飯田橋店
-
この物件で見学予約- 見学予約フォーム -
-
無料通話番号を表示
- 総武・中央緩行線 飯田橋駅(徒歩1分)
- Tel: 03-3269-1532
- 店舗詳細情報
このお部屋にお問い合わせ
あわせて店舗への来店を希望のお客様は、上の希望店舗の来店予約フォームをご利用ください(直営店舗のみ)
Sorry,Japanese & English only. 日本語・英語のみ対応しております。ご了承ください。
- ※取扱形態は媒介(先物)です。 / お部屋の情報は随時更新です / 各種情報と現況に差異がある場合は、現況優先となります。 / 保証会社の審査があります。 / 契約一時金は、契約時に借主より貸主に支払われ返還されない金銭です。

この物件のかんたんお問合せフォーム
お電話でお問合せ(無料)
外観・間取り図


















東京都新宿区四谷4丁目