ORME COURT YOTSUYA 物件詳細情報
このお部屋は募集を終了しました
ただいまこのお部屋は入居募集を終了しており、募集時の情報となっております。お部屋探しの参考としてご利用ください。募集が再度開始しましたら、こちらのページで詳細情報を掲載の上募集開始致します。情報掲載日:2025/10/17
| 沿線・駅 所在地 |
間取り 専有面積 |
種別 建築年月日 |
|
|---|---|---|---|
|
都営地下鉄新宿線 曙橋駅(徒歩6分)
東京都新宿区四谷三栄町 |
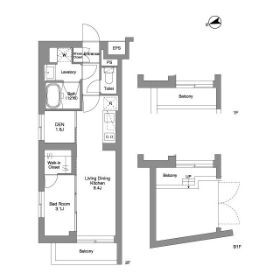
1LDK 33.65m2 |
マンション 2025年2月 |
|
ミニミニの仲介手数料は家賃の55%(税込)です。※直営店は全店対象。但し、駐車場・店舗・事務所・業者仲介及び紹介契約は対象外。※FC店舗は対象外ですので、各店にお問い合わせください。
この物件のお問い合わせ番号 0001-S000086507-0005
設備
| 部屋設備 | TV付モニターホン / 下駄箱 / エアコン / フローリング / ウォークインクロゼット / 照明器具 / バルコニー / 浴室乾燥機 / 洗面化粧台 / 室内洗濯機置場 / バストイレ別 / シャワー付トイレ / クロゼット / 洗面所独立 / オンライン内見 / オンライン接客 / IT重説 |
|---|---|
| 建物設備 | エレベータ / オートロック / 駐輪場 / 宅配ボックス / BSアンテナ / CSアンテナ / 防犯カメラ |
物件詳細
| 交通機関 | ・都営地下鉄新宿線 曙橋駅(徒歩6分) ・東京メトロ丸ノ内線 四谷三丁目駅(徒歩8分) ・中央本線 四ツ谷駅(徒歩10分) | ||||
|---|---|---|---|---|---|
| 構造 | RC造 | 総階数 | 4階建て | ||
| 総戸数 | 22戸 | 入居日 | 入居不可(募集終了) | ||
| 飲用水 | 公営 | ガス | 都市 | 排水 | 公共下水 |
| 給湯方式 | - | ||||
この物件のお問い合わせ番号 0001-S000086507-0005
類似物件一覧
-
16.8万円
168,000円
-
-
20.1万円
201,000円
-
1DK
東京都新宿区四谷4丁目 -
22.6万円
226,000円
-
1LDK
東京都新宿区新小川町 -
15.7万円
-
-
1DK
東京都新宿区若葉2丁目 -
20.0万円
200,000円
-
1DK
東京都新宿区四谷4丁目 -
20.2万円
202,000円
1.0ヶ月
1LDK
東京都新宿区東五軒町 -
19.9万円
199,000円
-
1DK
東京都新宿区四谷4丁目 -
13.9万円
139,000円
1.0ヶ月
1DK
東京都新宿区山吹町 -
13.9万円
139,000円
-
1DK
東京都新宿区山吹町 -
16.5万円
165,000円
1.0ヶ月
1LDK
東京都新宿区東五軒町 -
15.5万円
-
-
1DK
東京都新宿区若葉2丁目 -
23.2万円
232,000円
-
1LDK
東京都新宿区四谷三栄町
店舗情報
お電話での物件問い合わせは無料通話で!(直営店のみ)
0001-S000086507-0005
- 飯田橋店
-
この物件で見学予約- 見学予約フォーム -
-
無料通話番号を表示
- 総武・中央緩行線 飯田橋駅(徒歩1分)
- Tel: 03-3269-1532
- 店舗詳細情報
このお部屋に似ている物件を問い合わせる
あわせて店舗への来店を希望のお客様は、上の希望店舗の来店予約フォームをご利用ください(直営店舗のみ)
Sorry,Japanese & English only. 日本語・英語のみ対応しております。ご了承ください。
- ※各種情報と現況に差異がある場合は、現況優先となります。

似た物件を問い合わせる
お電話でお問合せ(無料)
間取り図

東京都新宿区余丁町