パークアクシス市川 物件詳細情報
| 沿線・駅 所在地 |
賃料 共益費(管理費) |
敷金 礼金 |
間取り 専有面積 |
種別 建築年月日 |
|
|---|---|---|---|---|---|
|
総武本線 市川駅(徒歩5分)
千葉県市川市市川1丁目 |
143,000円 10,000円 |
143,000円 143,000円 |
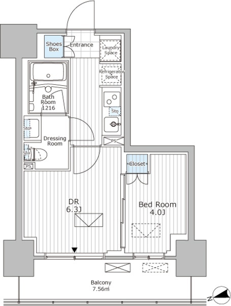
1DK 30.94m2 |
マンション 2024年7月 |
|
ミニミニの仲介手数料は家賃の55%(税込)です。※直営店は全店対象。但し、駐車場・店舗・事務所・業者仲介及び紹介契約は対象外。※FC店舗は対象外ですので、各店にお問い合わせください。
この物件のお問い合わせ番号 0001-S000075051-0089

- 市川三本松郵便局
設備
| 部屋設備 | エアコン / フローリング / ベランダ / バルコニー / 浴室乾燥機 / 室内洗濯機置場 / バストイレ別 / システムキッチン / オンライン内見 / オンライン接客 / IT重説 |
|---|---|
| 建物設備 | エレベータ / オートロック / 駐輪場 / 宅配ボックス / ペット可 / BSアンテナ |
物件詳細
| 交通機関 | ・総武本線 市川駅(徒歩5分) ・京成電鉄本線 市川真間駅(徒歩4分) ・総武・中央緩行線 本八幡駅(徒歩21分) | ||||
|---|---|---|---|---|---|
| 構造 | RC造 | 方位 | 西 | 階数/総階数 | 13階/13階建て |
| 総戸数 | 272戸 | 駐車場 | - | 入居日 | 2026年4月下旬 |
| 環境 | 市川市立宮田小学校 (505m) / 私立国府台女子学院中学部 (839m) / 自然幼稚園 (83m) / 私立国府台女子学院高等部 (826m) / 市川市役所 (2,102m) / 市川三本松郵便局 (96m) / 市川市中央図書館平田図書室 (1,124m) / 小岩警察署 (2,365m) / 8号宮前緑地 (807m) / 東京歯科大学市川総合病院 (1,820m) / 千葉興業銀行市川支店 (170m) / マックスバリュエクスプレス市川店 (114m) / ファミリーマート市川駅東店 (172m) / プラーレ松戸 (6,879m) / くすりの福太郎市川店 (258m) / Olympic市川店 (186m) / 私立千葉商科大学 (1,635m) / ゲオ市川南店 (548m) / カフェ・ベローチェ市川店 (180m) / アクティオーレ市川 (255m) | ||||
| 内装代 | - | 償却 | 0円 | 保険 | 損保要 |
| 更新料 | - | 水道料金等預かり金 | - | 特記事項 | 定期建物賃貸借物件 |
| 飲用水 | 公営 | ガス | 都市 | 排水 | 公共下水 |
| 給湯方式 | - | ||||
その他の費用
| 毎月 | 口座振替事務手数料(月額):110円 |
|---|---|
| 一時 | 鍵交換費用:33,000円/入居安心サービス料:16,500円/室内清掃費用:59,400円/消毒料:17,600円/駐輪ステッカー代:1,100円 |
| 他 | 家賃保証会社 初回保証料50% 2年目以降/年9,600円 |
この物件のお問い合わせ番号 0001-S000075051-0089
類似物件一覧
-
11.5万円
-
-
-
11.5万円
-
-
1LDK
千葉県市川市平田4丁目 -
11.9万円
-
2.0ヶ月
1LDK
千葉県市川市原木1丁目 -
13.5万円
135,000円
140,000円
1LDK
千葉県市川市行徳駅前2丁目 -
11.9万円
-
2.0ヶ月
1LDK
千葉県市川市欠真間2丁目 -
15.5万円
155,000円
2.0ヶ月
1LDK
千葉県市川市市川南2丁目 -
11.5万円
-
-
1LDK
千葉県市川市平田4丁目 -
14.0万円
-
2.0ヶ月
1LDK
千葉県市川市本塩 -
11.5万円
-
-
1LDK
千葉県市川市平田4丁目 -
10.4万円
104,000円
103,000円
1K
千葉県市川市行徳駅前2丁目 -
11.5万円
-
-
1LDK
千葉県市川市平田4丁目 -
11.7万円
-
-
1LDK
千葉県市川市平田4丁目
店舗情報
お電話での物件問い合わせは無料通話で!(直営店のみ)
0001-S000075051-0089
- 市川店
-
この物件で見学予約- 見学予約フォーム -
-
無料通話番号を表示
- 総武・中央緩行線 市川駅(徒歩1分)
- Tel: 047-323-3200
- 店舗詳細情報
このお部屋にお問い合わせ
あわせて店舗への来店を希望のお客様は、上の希望店舗の来店予約フォームをご利用ください(直営店舗のみ)
Sorry,Japanese & English only. 日本語・英語のみ対応しております。ご了承ください。
- ※取扱形態は媒介(先物)です。 / お部屋の情報は随時更新です / 各種情報と現況に差異がある場合は、現況優先となります。 / 保証会社の審査があります。 / 契約一時金は、契約時に借主より貸主に支払われ返還されない金銭です。

この物件のかんたんお問合せフォーム
お電話でお問合せ(無料)
外観・間取り図















千葉県市川市平田4丁目