コスモグラシア両国レジデンス 物件詳細情報
| 沿線・駅 所在地 |
賃料 共益費(管理費) |
敷金 礼金 |
間取り 専有面積 |
種別 建築年月日 |
|
|---|---|---|---|---|---|
|
都営地下鉄大江戸線 両国駅(徒歩5分)
東京都墨田区緑2丁目 |
189,000円 15,000円 |
- - |
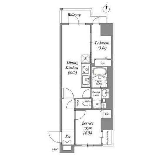
1SLDK 40.38m2 |
マンション 2022年12月 |
|
ミニミニの仲介手数料は家賃の55%(税込)です。※直営店は全店対象。但し、駐車場・店舗・事務所・業者仲介及び紹介契約は対象外。※FC店舗は対象外ですので、各店にお問い合わせください。
この物件のお問い合わせ番号 0001-S000046662-0009
インターネット無料です。敷金・礼金ゼロ!フリーレント1ヶ月!キャンペーン中!

- 墨田横網郵便局
設備
| 部屋設備 | TV付モニターホン / 下駄箱 / エアコン / フローリング / ベランダ / バルコニー / シャワー / 浴室乾燥機 / 洗髪洗面化粧台 / 洗面化粧台 / 室内洗濯機置場 / バストイレ別 / コンロ(コンロ(3口)) / シャワー付トイレ / クロゼット / 洗面所独立 / システムキッチン / オンライン内見 / オンライン接客 / IT重説 |
|---|---|
| 建物設備 | エレベータ / オートロック / 駐輪場 / 宅配ボックス / BSアンテナ / CATV / バイク置き場 / ネット利用料無料 / 防犯カメラ |
物件詳細
| 交通機関 | ・都営地下鉄大江戸線 両国駅(徒歩5分) ・総武・中央緩行線 両国駅(徒歩10分) ・都営地下鉄新宿線 森下駅(徒歩14分) | ||||
|---|---|---|---|---|---|
| 構造 | RC造 | 方位 | 北 | 階数/総階数 | 2階/10階建て |
| 総戸数 | 48戸 | 駐車場 | 30,800円 | 入居日 | 2026年6月中旬 |
| 環境 | 墨田区立緑小学校 (205m) / 墨田区立竪川中学校 (584m) / こひつじ保育園 (121m) / 私立日本大学第一高校 (695m) / 墨田区役所 (2,090m) / 墨田横網郵便局 (791m) / 墨田区立緑図書館 (193m) / 蔵前警察署 (1,675m) / 横網町公園 (1,096m) / 医療法人財団正明会山田記念病院 (808m) / みずほ銀行本所支店 (503m) / マルエツ両国亀沢店 (338m) / ミニストップ緑2丁目店 (133m) / 丸井錦糸町店 (1,156m) / どらっぐぱぱす両国店 (320m) / ニトリデコホーム錦糸町マルイ店 (1,161m) / 私立千葉工業大学東京スカイツリータウンキャンパス (2,663m) / TSUTAYA浅草ROX店 (2,608m) / ほっともっと亀沢4丁目店 (825m) / ジーンズメイト両国店 (700m) | ||||
| 内装代 | - | 償却 | 0円 | 保険 | 損保要 |
| 更新料 | 189,000円 | 水道料金等預かり金 | - | 特記事項 | - |
| 飲用水 | 公営 | ガス | 都市 | 排水 | 公共下水 |
| 給湯方式 | - | ||||
その他の費用
| 一時 | カギ代:38,500円/退去時RC代:55,000円/入居安心サービス料:17,600円/消毒料:17,600円/エアコン清掃費1基辺り:15,000円 |
|---|---|
| 他 | 詳細要確認 |
この物件のお問い合わせ番号 0001-S000046662-0009
類似物件一覧
-
15.4万円
154,000円
-
-
14.1万円
-
-
1DK
東京都墨田区菊川3丁目 -
17.8万円
178,000円
1.0ヶ月
1LDK
東京都墨田区江東橋3丁目 -
15.2万円
152,000円
-
1DK
東京都墨田区江東橋4丁目 -
15.7万円
-
1.0ヶ月
1LDK
東京都墨田区東向島2丁目 -
18.7万円
-
1.0ヶ月
1LDK
東京都墨田区緑3丁目 -
18.3万円
183,000円
1.0ヶ月
1LDK
東京都墨田区両国3丁目 -
13.7万円
-
-
1DK
東京都墨田区江東橋1丁目 -
13.3万円
-
-
1DK
東京都墨田区東向島1丁目 -
19.3万円
193,000円
-
1LDK
東京都墨田区緑4丁目 -
14.3万円
-
-
1DK
東京都墨田区菊川3丁目 -
19.8万円
198,000円
-
1LDK
東京都墨田区錦糸1丁目
店舗情報
お電話での物件問い合わせは無料通話で!(直営店のみ)
0001-S000046662-0009
- 錦糸町店
-
この物件で見学予約- 見学予約フォーム -
-
無料通話番号を表示
- 総武・中央緩行線 錦糸町駅(徒歩2分)
- Tel: 03-3634-3232
- 店舗詳細情報
このお部屋にお問い合わせ
あわせて店舗への来店を希望のお客様は、上の希望店舗の来店予約フォームをご利用ください(直営店舗のみ)
Sorry,Japanese & English only. 日本語・英語のみ対応しております。ご了承ください。
- ※取扱形態は媒介(先物)です。 / お部屋の情報は随時更新です / 各種情報と現況に差異がある場合は、現況優先となります。 / 保証会社の審査があります。 / 契約一時金は、契約時に借主より貸主に支払われ返還されない金銭です。

この物件のかんたんお問合せフォーム
お電話でお問合せ(無料)
外観・間取り図

























東京都墨田区江東橋4丁目