S-RESIDENCE押上Clair 物件詳細情報
| 沿線・駅 所在地 |
賃料 共益費(管理費) |
敷金 礼金 |
間取り 専有面積 |
種別 建築年月日 |
|
|---|---|---|---|---|---|
|
東武伊勢崎・大師線 東京スカイツリー駅(徒歩8分)
東京都墨田区向島3丁目 |
125,000円 10,000円 |
- 125,000円 |
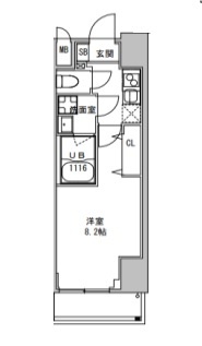
1K 26.08m2 |
マンション 2022年6月 |
|
ミニミニの仲介手数料は家賃の55%(税込)です。※直営店は全店対象。但し、駐車場・店舗・事務所・業者仲介及び紹介契約は対象外。※FC店舗は対象外ですので、各店にお問い合わせください。
この物件のお問い合わせ番号 0001-S000038696-0007
とうきょうスカイツリー駅、京成押上線押上駅、各駅 徒歩8分!RC造、5階、1K、エレベーター、モニター付きインターホン、デインプルキー、防犯カメラ、宅配BOX、駐輪場有り!ネット無料、ペット飼育相談可

- 向島四郵便局
設備
| 部屋設備 | TV付モニターホン / 下駄箱 / ガスコンロ(コンロ(2口)) / エアコン / フローリング / 照明器具 / バルコニー / 浴室乾燥機 / 室内洗濯機置場 / バストイレ別 / シャワー付トイレ / クロゼット / 洗面所独立 / システムキッチン / オンライン内見 / オンライン接客 / IT重説 |
|---|---|
| 建物設備 | エレベータ / オートロック / 駐輪場 / 宅配ボックス / ペット可 / BSアンテナ / CSアンテナ / バイク置き場 / ネット利用料無料 / 防犯カメラ |
物件詳細
| 交通機関 | ・東武伊勢崎・大師線 東京スカイツリー駅(徒歩8分) ・京成電鉄押上線 押上駅(徒歩8分) ・都営地下鉄浅草線 本所吾妻橋駅(徒歩10分) | ||||
|---|---|---|---|---|---|
| 構造 | RC造 | 方位 | 南東 | 階数/総階数 | 5階/12階建て |
| 総戸数 | 43戸 | 駐車場 | 27,500円 | 入居日 | 相談 |
| 環境 | 墨田区立小梅小学校 (370m) / 墨田区立墨田中学校 (377m) / 向島ひまわり保育園 (189m) / 東京都立本所高校 (359m) / 墨田区役所 (968m) / 向島四郵便局 (448m) / 墨田区立ひきふね図書館 (1,291m) / 浅草警察署 (1,504m) / 堤通公園 (1,518m) / 大岩医院 (489m) / 朝日信用金庫向島支店 (351m) / エネルギースーパーたじま押上店 (382m) / セブンイレブン向島店 (116m) / 松屋浅草 (1,251m) / どらっぐぱぱすとうきょうスカイツリー駅前店 (534m) / Air BicCamera東京スカイツリータウン・ソラマチ店 (1,308m) / 私立千葉工業大学東京スカイツリータウンキャンパス (1,080m) / ゲオ曳舟店 (1,252m) / ペッパーランチとうきょうスカイツリー駅前店 (614m) / 東京スカイツリータウン (742m) | ||||
| 内装代 | - | 償却 | 0円 | 保険 | 損保要 |
| 更新料 | 124,000円 | 水道料金等預かり金 | - | 特記事項 | - |
| 飲用水 | 公営 | ガス | 都市 | 排水 | 公共下水 |
| 給湯方式 | - | ||||
その他の費用
| 一時 | 鍵交換代:33,000円/エアコンクリーニング代/台:16,500円/ルームクリーニング代:38,500円/消毒料:17,600円/入居安心サービス料:17,600円 |
|---|---|
| 他 | 家賃保証会社 初回保証料50% 更新料 /年12,000円 口座振替手数料/月330円 |
この物件のお問い合わせ番号 0001-S000038696-0007
類似物件一覧
-
13.6万円
-
-
-
15.0万円
150,000円
-
1DK
東京都墨田区緑4丁目 -
14.3万円
143,000円
-
1K
東京都墨田区千歳1丁目 -
14.3万円
143,000円
-
1DK
東京都墨田区江東橋1丁目 -
10.4万円
104,000円
1.0ヶ月
1R
東京都墨田区江東橋5丁目 -
12.9万円
129,000円
1.0ヶ月
1K
東京都墨田区業平4丁目 -
13.0万円
130,000円
1.0ヶ月
1R
東京都墨田区菊川3丁目 -
14.8万円
148,000円
-
1DK
東京都墨田区江東橋1丁目 -
12.0万円
120,000円
1.0ヶ月
1R
東京都墨田区千歳1丁目 -
11.1万円
-
-
1R
東京都墨田区向島5丁目 -
12.4万円
124,000円
-
1R
東京都墨田区緑4丁目 -
12.9万円
129,000円
1.0ヶ月
1K
東京都墨田区業平4丁目
店舗情報
お電話での物件問い合わせは無料通話で!(直営店のみ)
0001-S000038696-0007
- 浅草EKIMISE店
-
この物件で見学予約- 見学予約フォーム -
-
無料通話番号を表示
- 東京メトロ銀座線 浅草駅(徒歩1分)
- Tel: 03-5246-3537
- 店舗詳細情報
このお部屋にお問い合わせ
あわせて店舗への来店を希望のお客様は、上の希望店舗の来店予約フォームをご利用ください(直営店舗のみ)
Sorry,Japanese & English only. 日本語・英語のみ対応しております。ご了承ください。
- ※取扱形態は媒介(先物)です。 / お部屋の情報は随時更新です / 各種情報と現況に差異がある場合は、現況優先となります。 / 保証会社の審査があります。 / 契約一時金は、契約時に借主より貸主に支払われ返還されない金銭です。

この物件のかんたんお問合せフォーム
お電話でお問合せ(無料)
外観・間取り図




東京都墨田区千歳3丁目