レーベンリヴァーレ東京ラ・トーレ 物件詳細情報
| 沿線・駅 所在地 |
賃料 共益費(管理費) |
敷金 礼金 |
間取り 専有面積 |
種別 建築年月日 |
|
|---|---|---|---|---|---|
|
京成電鉄本線 新三河島駅(徒歩4分)
東京都荒川区荒川5丁目 |
228,000円 12,000円 |
456,000円 228,000円 |
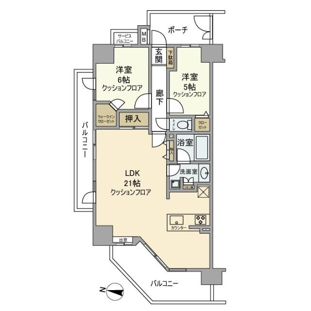
2LDK 69.80m2 |
マンション 2006年2月 |
|
ミニミニの仲介手数料は家賃の55%(税込)です。※直営店は全店対象。但し、駐車場・店舗・事務所・業者仲介及び紹介契約は対象外。※FC店舗は対象外ですので、各店にお問い合わせください。
この物件のお問い合わせ番号 0001-1310810472-0003
待望!町屋駅徒歩10の分譲賃貸空きました。駅から大通り1本です! 夜でも明るい道です!

- マルエツ 西日暮里店

- Nマート

- セブン−イレブン荒川西日暮里1丁目店

- ローソン

- 新鮮市場

- 区立峡田小学校

- 区立第四中学校
設備
| 部屋設備 | ガス給湯 / 浴室給湯あり / キッチン給湯あり / 洗面所給湯あり / TV付モニターホン / 下駄箱 / ガスコンロ(コンロ(2口)) / エアコン / フローリング / バルコニー / 洋式トイレ / トイレ電源有 / シャワー / 浴室乾燥機 / 洗面化粧台 / 追焚き / 室内洗濯機置場 / バストイレ別 / 2人入居 / シャワー付トイレ / クロゼット2ヶ所 / クロゼット / 全居室収納 / 押入 / 洗面所独立 / カウンターキッチン / システムキッチン / オンライン内見 / オンライン接客 / IT重説 |
|---|---|
| 建物設備 | エレベータ / オートロック / 宅配ボックス |
物件詳細
| 交通機関 | ・京成電鉄本線 新三河島駅(徒歩4分) ・常磐線 三河島駅(徒歩7分) ・東京メトロ千代田線 町屋駅(徒歩9分) | ||||
|---|---|---|---|---|---|
| 構造 | SRC造 | 方位 | 西 | 階数/総階数 | 3階/18階建て |
| 総戸数 | 109戸 | 駐車場 | - | 入居日 | 即入居可 |
| 環境 | マルエツ 西日暮里店 (280m) / Nマート (420m) / セブン−イレブン荒川西日暮里1丁目店 (160m) / ローソン (210m) / 新鮮市場 (510m) / 三河島幼稚園 (240m) / 区立峡田小学校 (180m) / 区立第四中学校 (470m) | ||||
| 内装代 | - | 償却 | 0円 | 保険 | 損保要 |
| 更新料 | - | 水道料金等預かり金 | - | 特記事項 | 定期建物賃貸借物件 |
| 飲用水 | 公営 | ガス | 都市 | 排水 | 公共下水 |
| 給湯方式 | ガス給湯(浴室給湯あり・キッチン給湯あり・洗面所給湯あり) | ||||
その他の費用
| 毎月 | リロサポプラス:2,500円 |
|---|---|
| 一時 | 除菌施工料:19,800円 |
| 他 | 家賃保証会社 初回保証料100% 毎月賃料等請求金額の合計2% |
この物件のお問い合わせ番号 0001-1310810472-0003
類似物件一覧
-
23.8万円
238,000円
-
-
25.7万円
-
1.0ヶ月
2LDK
東京都荒川区西日暮里6丁目 -
23.2万円
232,000円
-
2LDK
東京都荒川区東日暮里1丁目 -
23.0万円
230,000円
-
2LDK
東京都荒川区東日暮里6丁目 -
24.2万円
242,000円
-
2LDK
東京都荒川区西日暮里6丁目 -
25.8万円
258,000円
-
2LDK
東京都荒川区西日暮里6丁目 -
23.5万円
235,000円
1.0ヶ月
2SLDK
東京都荒川区荒川4丁目 -
21.2万円
-
-
2LDK
東京都荒川区東尾久4丁目 -
25.3万円
253,000円
-
2LDK
東京都荒川区西日暮里6丁目 -
24.4万円
244,000円
1.0ヶ月
2LDK
東京都荒川区東日暮里6丁目 -
24.1万円
241,000円
1.0ヶ月
2SLDK
東京都荒川区荒川4丁目 -
17.9万円
-
1.0ヶ月
2LDK
東京都荒川区荒川3丁目
店舗情報
お電話での物件問い合わせは無料通話で!(直営店のみ)
0001-1310810472-0003
- 町屋店
-
この物件で来店予約- 来店予約フォーム -
-
無料通話番号を表示
- 東京メトロ千代田線 町屋駅(徒歩1分)
- Tel: 03-3894-3266
- 店舗詳細情報
このお部屋にお問い合わせ
あわせて店舗への来店を希望のお客様は、上の希望店舗の来店予約フォームをご利用ください(直営店舗のみ)
Sorry,Japanese & English only. 日本語・英語のみ対応しております。ご了承ください。
- ※取扱形態は媒介(先物)です。 / お部屋の情報は随時更新です / 各種情報と現況に差異がある場合は、現況優先となります。 / 保証会社の審査があります。 / 契約一時金は、契約時に借主より貸主に支払われ返還されない金銭です。

この物件のかんたんお問合せフォーム
お電話でお問合せ(無料)
外観・間取り図

















東京都荒川区西日暮里5丁目