東京都豊島区上池袋1丁目 1SLDK 65.76m2 物件詳細情報
このお部屋は募集を終了しました
ただいまこのお部屋は入居募集を終了しており、募集時の情報となっております。お部屋探しの参考としてご利用ください。募集が再度開始しましたら、こちらのページで詳細情報を掲載の上募集開始致します。情報掲載日:2025/10/24
| 沿線・駅 所在地 |
間取り 専有面積 |
種別 建築年月日 |
|
|---|---|---|---|
|
山手線 大塚駅(徒歩9分)
東京都豊島区上池袋1丁目 |
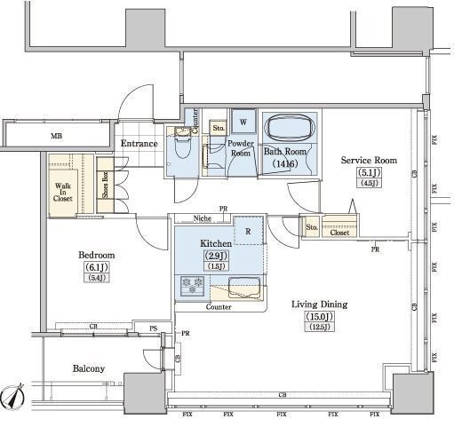
1SLDK 65.76m2 |
マンション 2009年5月 |
|
ミニミニの仲介手数料は家賃の55%(税込)です。※直営店は全店対象。但し、駐車場・店舗・事務所・業者仲介及び紹介契約は対象外。※FC店舗は対象外ですので、各店にお問い合わせください。
この物件のお問い合わせ番号 0001-1310515163-0261
設備
| 部屋設備 | ガス給湯 / 浴室給湯あり / TV付モニターホン / 下駄箱 / ガスコンロ / エアコン / フローリング / ウォークインクロゼット / バルコニー / 洋式トイレ / シャワー / 浴室乾燥機 / 洗面化粧台 / 追焚き / 室内洗濯機置場 / バストイレ別 / シャワー付トイレ / 洗面所独立 / システムキッチン / オンライン内見 / オンライン接客 / IT重説 |
|---|---|
| 建物設備 | エレベータ / オートロック / エントランス / 駐輪場 / 宅配ボックス / ペット可(犬・猫可) / 楽器可 / ネット環境(光ファイバ対応) / デザイナーズマンション / BSアンテナ / CSアンテナ / CATV / バイク置き場 / 常駐管理 / フロントサービス / 敷地内ゴミ置き場 / 防犯カメラ |
物件詳細
| 交通機関 | ・山手線 大塚駅(徒歩9分) ・東武東上線 北池袋駅(徒歩11分) ・都営地下鉄荒川線 巣鴨新田駅(徒歩7分) | ||||
|---|---|---|---|---|---|
| 構造 | RC造 | 総階数 | 22階建て | ||
| 総戸数 | 399戸 | 入居日 | 入居不可(募集終了) | ||
| 飲用水 | 公営 | ガス | 都市 | 排水 | 公共下水 |
| 給湯方式 | ガス給湯(浴室給湯あり) | ||||
この物件のお問い合わせ番号 0001-1310515163-0261
類似物件一覧
店舗情報
お電話での物件問い合わせは無料通話で!(直営店のみ)
0001-1310515163-0261
- 大塚店
-
この物件で来店予約- 来店予約フォーム -
-
無料通話番号を表示
- 山手線 大塚駅(徒歩1分)
- Tel: 03-5961-3032
- 店舗詳細情報
このお部屋に似ている物件を問い合わせる
あわせて店舗への来店を希望のお客様は、上の希望店舗の来店予約フォームをご利用ください(直営店舗のみ)
Sorry,Japanese & English only. 日本語・英語のみ対応しております。ご了承ください。
- ※各種情報と現況に差異がある場合は、現況優先となります。

似た物件を問い合わせる
お電話でお問合せ(無料)
間取り図

東京都豊島区南大塚2丁目