カーサケイワイNo2 物件詳細情報
| 沿線・駅 所在地 |
賃料 共益費(管理費) |
敷金 礼金 |
間取り 専有面積 |
種別 建築年月日 |
|
|---|---|---|---|---|---|
|
東京メトロ日比谷線 三ノ輪駅(徒歩9分)
東京都荒川区南千住1丁目 |
180,000円 10,000円 |
180,000円 180,000円 |
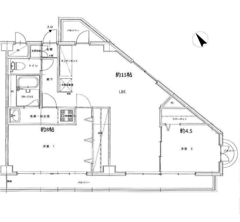
2LDK 67.00m2 |
マンション 1994年3月 |
|
ミニミニの仲介手数料は家賃の55%(税込)です。※直営店は全店対象。但し、駐車場・店舗・事務所・業者仲介及び紹介契約は対象外。※FC店舗は対象外ですので、各店にお問い合わせください。
この物件のお問い合わせ番号 0001-1300201337-0006
外観・間取り図
情報登録日:2026/03/06 情報更新日:2026/03/08 次回更新予定日:2026/03/15
遠隔地のお客様や、忙しく店舗まで足を運ぶのが難しいお客様にも安心のオンラインシステム。弊社は来店不要で契約が可能です。オンライン接客・内見・IT重要事項説明等のご要望がございましたらご相談下さい。
設備
| 部屋設備 | 下駄箱 / ガスコンロ(コンロ(2口)) / エアコン / フローリング / ベランダ / バルコニー / 追焚き / 室内洗濯機置場 / バストイレ別 / 角部屋 / 2人入居 / シャワー付トイレ / システムキッチン / オンライン内見 / オンライン接客 / IT重説 |
|---|---|
| 建物設備 | オートロック / 駐輪場 |
物件詳細
| 交通機関 | ・東京メトロ日比谷線 三ノ輪駅(徒歩9分) | ||||
|---|---|---|---|---|---|
| 構造 | RC造 | 方位 | 南西 | 階数/総階数 | 4階/4階建て |
| 総戸数 | 12戸 | 駐車場 | - | 入居日 | 即入居可 |
| 環境 | 荒川区役所 (809m) / 荒川南千住郵便局 (153m) / 荒川区立南千住図書館 (756m) / 南千住警察署 (302m) / 三河島公園 (576m) / 医療法人財団磯病院 (428m) / 業務スーパー三ノ輪店 (367m) / セブンイレブン南千住6丁目店 (127m) / ルミネ北千住店 (2,662m) / マツモトキヨシ荒川南千住店 (225m) / ノジマ千住大橋店 (1,711m) / ほっともっと南千住1丁目店 (157m) / ハニーズポンテポルタ千住店 (1,624m) | ||||
| 内装代 | - | 償却 | 0円 | 保険 | 損保要 |
| 更新料 | 180,000円 | 水道料金等預かり金 | - | 特記事項 | - |
| 飲用水 | 公営 | ガス | 都市 | 排水 | 公共下水 |
| 給湯方式 | - | ||||
その他の費用
| 一時 | 鍵交換費用:33,000円/退去清掃料:99,000円/事務手数料:11,000円/24時間サポート:19,800円 |
|---|---|
| 他 | 家賃保証会社 初回保証料80% |
この物件のお問い合わせ番号 0001-1300201337-0006
類似物件一覧
-
17.8万円
178,000円
-
-
21.3万円
213,000円
1.0ヶ月
2LDK
東京都荒川区町屋6丁目 -
21.4万円
-
-
2LDK
東京都荒川区西尾久7丁目 -
19.1万円
191,000円
-
2LDK
東京都荒川区西尾久3丁目 -
18.8万円
188,000円
-
2LDK
東京都荒川区西尾久2丁目 -
21.0万円
210,000円
-
2LDK
東京都荒川区西尾久4丁目 -
21.5万円
215,000円
-
2LDK
東京都荒川区南千住3丁目 -
20.9万円
-
-
2LDK
東京都荒川区東尾久4丁目 -
23.0万円
-
-
2LDK
東京都荒川区町屋1丁目 -
20.7万円
-
-
2LDK
東京都荒川区東尾久4丁目 -
14.7万円
147,000円
1.0ヶ月
2LDK
東京都荒川区東尾久2丁目 -
22.8万円
456,000円
1.0ヶ月
2LDK
東京都荒川区荒川5丁目
店舗情報
お電話での物件問い合わせは無料通話で!(直営店のみ)
0001-1300201337-0006
- 北千住店
-
この物件で来店予約- 来店予約フォーム -
-
無料通話番号を表示
- 東京メトロ千代田線 北千住駅(徒歩5分)
- Tel: 03-5244-2232
- 店舗詳細情報
このお部屋にお問い合わせ
あわせて店舗への来店を希望のお客様は、上の希望店舗の来店予約フォームをご利用ください(直営店舗のみ)
Sorry,Japanese & English only. 日本語・英語のみ対応しております。ご了承ください。
- ※取扱形態は媒介(先物)です。 / お部屋の情報は随時更新です / 各種情報と現況に差異がある場合は、現況優先となります。 / 保証会社の審査があります。 / 契約一時金は、契約時に借主より貸主に支払われ返還されない金銭です。

この物件のかんたんお問合せフォーム
お電話でお問合せ(無料)









東京都荒川区西尾久2丁目