グランカーサ北浦和 物件詳細情報
| 沿線・駅 所在地 |
賃料 共益費(管理費) |
敷金 礼金 |
間取り 専有面積 |
種別 建築年月日 |
|
|---|---|---|---|---|---|
|
京浜東北・根岸線 北浦和駅(徒歩6分)
埼玉県さいたま市浦和区北浦和3丁目 |
217,000円 20,000円 |
217,000円 - |
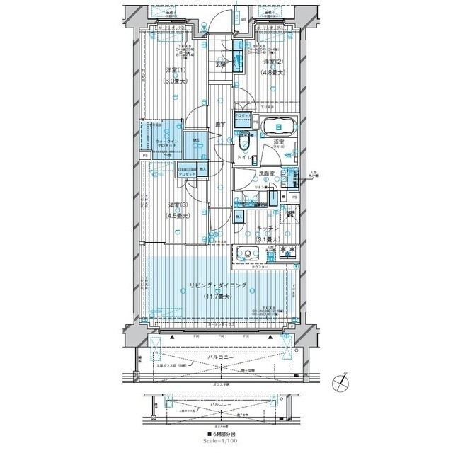
3LDK 69.11m2 |
マンション 2019年6月 |
|
ミニミニの仲介手数料は家賃の55%(税込)です。※直営店は全店対象。但し、駐車場・店舗・事務所・業者仲介及び紹介契約は対象外。※FC店舗は対象外ですので、各店にお問い合わせください。
この物件のお問い合わせ番号 0001-1110925571-0035
ファミリー向け新築マンション!ペット相談可(小型犬か猫一匹まで)飼育時敷金+1ヵ月

- マルエツ

- セブンイレブン

- クイーンズ伊勢丹

- マツモトキヨシ

- 北浦和二郵便局

- 厚徳幼稚園

- 市立北浦和小学校
設備
| 部屋設備 | ガス給湯 / 浴室給湯あり / キッチン給湯あり / 洗面所給湯あり / TV付モニターホン / 下駄箱 / ガスコンロ(コンロ(3口)) / エアコン / ウォークインクロゼット / 床暖房 / 照明器具 / バルコニー / 洋式トイレ / トイレ電源有 / シャワー / 浴室乾燥機 / 洗髪洗面化粧台 / 洗面化粧台 / 追焚き / 室内洗濯機置場 / バストイレ別 / シャワー付トイレ / 洗面所独立 / システムキッチン / オンライン内見 / オンライン接客 / IT重説 |
|---|---|
| 建物設備 | エレベータ / オートロック / エントランス / 駐輪場 / 宅配ボックス / CATV / バイク置き場 / ネット利用料無料 / ペット可(犬・猫可) / 敷地内ゴミ置き場 / 防犯カメラ |
物件詳細
| 交通機関 | ・京浜東北・根岸線 北浦和駅(徒歩6分) ・京浜東北・根岸線 与野駅(徒歩13分) ・埼京線 南与野駅(徒歩26分) | ||||
|---|---|---|---|---|---|
| 構造 | RC造 | 方位 | 南東 | 階数/総階数 | 6階/6階建て |
| 総戸数 | 53戸 | 駐車場 | - | 入居日 | 即入居可 |
| 環境 | マルエツ (480m) / セブンイレブン (490m) / クイーンズ伊勢丹 (640m) / マツモトキヨシ (520m) / 北浦和二郵便局 (350m) / 厚徳幼稚園 (280m) / 市立北浦和小学校 (530m) / 市立本太中学校 (1,800m) | ||||
| 内装代 | - | 償却 | 0円 | 保険 | 損保要 |
| 更新料 | 217,000円 | 水道料金等預かり金 | - | 特記事項 | - |
| 飲用水 | 公営 | ガス | 都市 | 排水 | 公共下水 |
| 給湯方式 | ガス給湯(浴室給湯あり・キッチン給湯あり・洗面所給湯あり) | ||||
その他の費用
| 一時 | 鍵交換費用:33,000円/退去時エアコンクリーニング費用:38,500円/退去時クリーニング費用:104,280円 |
|---|---|
| 他 | 家賃保証会社 初回保証料20% 2年目10,000円 |
この物件のお問い合わせ番号 0001-1110925571-0035
類似物件一覧
-
18.6万円
186,000円
-
-
18.4万円
184,000円
1.0ヶ月
3LDK
埼玉県さいたま市浦和区上木崎8丁目 -
17.2万円
172,000円
1.0ヶ月
3LDK
埼玉県さいたま市浦和区常盤10丁目 -
19.5万円
195,000円
1.0ヶ月
3LDK
埼玉県さいたま市浦和区上木崎5丁目 -
23.0万円
230,000円
1.0ヶ月
3LDK
埼玉県さいたま市浦和区北浦和1丁目 -
17.2万円
-
-
3LDK
埼玉県さいたま市浦和区常盤10丁目 -
19.0万円
380,000円
1.0ヶ月
3LDK
埼玉県さいたま市浦和区領家1丁目 -
18.0万円
180,000円
1.0ヶ月
3LDK
埼玉県さいたま市浦和区前地1丁目
店舗情報
お電話での物件問い合わせは無料通話で!(直営店のみ)
0001-1110925571-0035
- 浦和店
-
この物件で来店予約- 来店予約フォーム -
-
無料通話番号を表示
- 京浜東北・根岸線 浦和駅(徒歩2分)
- Tel: 048-832-3221
- 店舗詳細情報
このお部屋にお問い合わせ
あわせて店舗への来店を希望のお客様は、上の希望店舗の来店予約フォームをご利用ください(直営店舗のみ)
Sorry,Japanese & English only. 日本語・英語のみ対応しております。ご了承ください。
- ※取扱形態は媒介(先物)です。 / お部屋の情報は随時更新です / 各種情報と現況に差異がある場合は、現況優先となります。 / 保証会社の審査があります。 / 契約一時金は、契約時に借主より貸主に支払われ返還されない金銭です。

この物件のかんたんお問合せフォーム
お電話でお問合せ(無料)
外観・間取り図
























埼玉県さいたま市浦和区北浦和3丁目