クレヴィスタ板橋本町 物件詳細情報
| 沿線・駅 所在地 |
賃料 共益費(管理費) |
敷金 礼金 |
間取り 専有面積 |
種別 建築年月日 |
|
|---|---|---|---|---|---|
|
都営地下鉄三田線 板橋本町駅(徒歩2分)
東京都板橋区大和町 |
92,000円 15,000円 |
- 46,000円 |
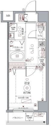
1K 25.60m2 |
分譲賃貸 2017年2月 |
|
ミニミニの仲介手数料は家賃の55%(税込)です。※直営店は全店対象。但し、駐車場・店舗・事務所・業者仲介及び紹介契約は対象外。※FC店舗は対象外ですので、各店にお問い合わせください。
この物件のお問い合わせ番号 0001-S000115708-0001

- 新板橋郵便局
設備
| 部屋設備 | ガス給湯 / 浴室給湯あり / キッチン給湯あり / 洗面所給湯あり / TV付モニターホン / 下駄箱 / ガスコンロ(コンロ(2口)) / エアコン / フローリング / 照明器具 / バルコニー / 洋式トイレ / シャワー / 浴室乾燥機 / 洗髪洗面化粧台 / 洗面化粧台 / 室内洗濯機置場 / バストイレ別 / 保証人不要 / 2人入居 / シャワー付トイレ / クロゼット / 全居室収納 / 洗面所独立 / システムキッチン / オンライン内見 / オンライン接客 / IT重説 |
|---|---|
| 建物設備 | エレベータ / オートロック / 駐輪場 / 宅配ボックス / ペット可(犬・猫可) / デザイナーズマンション / ネット利用料無料 / 敷地内ゴミ置き場 / 防犯カメラ |
物件詳細
| 交通機関 | ・都営地下鉄三田線 板橋本町駅(徒歩2分) ・東武東上線 中板橋駅(徒歩14分) ・都営地下鉄三田線 本蓮沼駅(徒歩15分) | ||||
|---|---|---|---|---|---|
| 構造 | RC造 | 方位 | 東 | 階数/総階数 | 3階/9階建て |
| 総戸数 | - | 駐車場 | - | 入居日 | 即入居可 |
| 環境 | 新板橋郵便局 (571m) / みずほ銀行板橋支店 (375m) / まいばすけっと板橋本町駅南店 (324m) / オーケー板橋本町店 (396m) / ミニストップ板橋本町駅前店 (274m) / セブンイレブン板橋本町駅北店 (422m) / どらっぐぱぱす板橋清水町店 (607m) / キッチンオリジン板橋本町駅前店 (364m) | ||||
| 内装代 | - | 償却 | 0円 | 保険 | 損保要 |
| 更新料 | 92,000円 | 水道料金等預かり金 | - | 特記事項 | - |
| 飲用水 | 公営 | ガス | 都市 | 排水 | 公共下水 |
| 給湯方式 | ガス給湯(浴室給湯あり・キッチン給湯あり・洗面所給湯あり) | ||||
その他の費用
| 毎月 | レジデンシャルサポート料:800円 |
|---|---|
| 一時 | 書類作成代:11,000円/鍵交換費:44,000円/室内清掃費用:55,000円 |
| 他 | 家賃保証会社 初回保証料40% |
この物件のお問い合わせ番号 0001-S000115708-0001
類似物件一覧
-
8.6万円
86,000円
1.0ヶ月
-
7.0万円
70,000円
1.0ヶ月
1DK
東京都板橋区大山西町 -
11.1万円
-
-
1K
東京都板橋区成増2丁目 -
10.4万円
-
1.0ヶ月
1K
東京都板橋区大谷口上町 -
11.5万円
115,000円
1.0ヶ月
1R
東京都板橋区板橋1丁目 -
8.2万円
82,000円
-
1K
東京都板橋区東新町2丁目 -
10.8万円
-
-
1K
東京都板橋区成増2丁目 -
11.2万円
-
-
1K
東京都板橋区成増2丁目 -
6.6万円
-
-
1K
東京都板橋区南町 -
11.0万円
-
1.0ヶ月
1K
東京都板橋区東新町1丁目 -
7.0万円
70,000円
1.0ヶ月
1K
東京都板橋区向原1丁目 -
9.9万円
-
-
1K
東京都板橋区成増3丁目
店舗情報
お電話での物件問い合わせは無料通話で!(直営店のみ)
0001-S000115708-0001
- 三重法人部
- 059-356-8041
- 三重県四日市市鵜の森1丁目1-19太平洋鵜の森ビル5階
このお部屋にお問い合わせ
あわせて店舗への来店を希望のお客様は、上の希望店舗の来店予約フォームをご利用ください(直営店舗のみ)
Sorry,Japanese & English only. 日本語・英語のみ対応しております。ご了承ください。
- ※取扱形態は媒介(先物)です。 / お部屋の情報は随時更新です / 各種情報と現況に差異がある場合は、現況優先となります。 / 保証会社の審査があります。 / 契約一時金は、契約時に借主より貸主に支払われ返還されない金銭です。

この物件のかんたんお問合せフォーム
お電話でお問合せ(法人用)
外観・間取り図
















東京都板橋区成増1丁目