BPRレジデンス練馬富士見台 物件詳細情報
| 沿線・駅 所在地 |
賃料 共益費(管理費) |
敷金 礼金 |
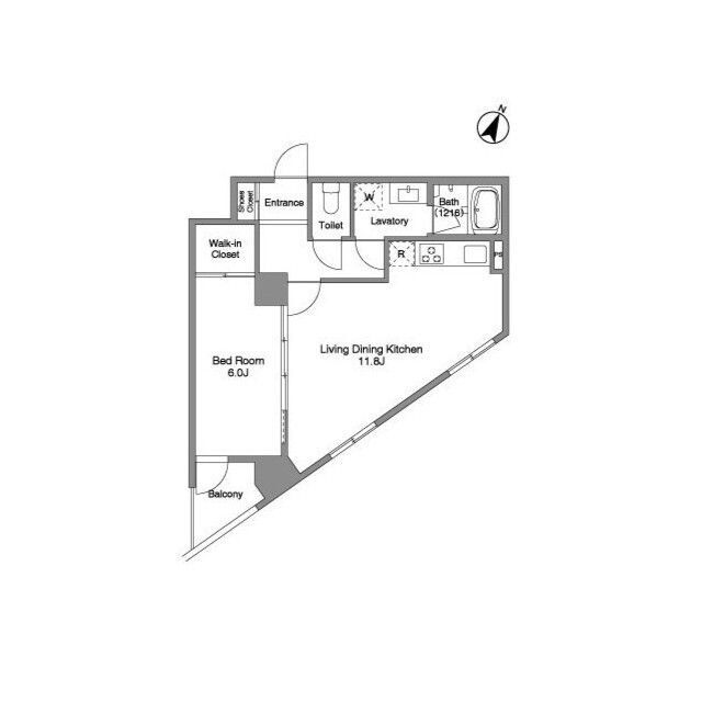
間取り 専有面積 |
種別 建築年月日 |
|
|---|---|---|---|---|---|
|
西武池袋・豊島線 富士見台駅(徒歩4分)
東京都練馬区貫井3丁目 |
160,000円 10,000円 |
160,000円 - |
1LDK 42.85m2 |
マンション 2025年11月 |
|
ミニミニの仲介手数料は家賃の55%(税込)です。※直営店は全店対象。但し、駐車場・店舗・事務所・業者仲介及び紹介契約は対象外。※FC店舗は対象外ですので、各店にお問い合わせください。
この物件のお問い合わせ番号 0001-S000111547-0008
宅配ボックス・24時間ゴミ出し可能☆ペット飼可(?型?1匹?は猫2匹迄・敷?1ヶ?積増)

- 富士見台駅前郵便局
設備
| 部屋設備 | ガス給湯 / 浴室給湯あり / キッチン給湯あり / 洗面所給湯あり / TV付モニターホン / 下駄箱 / IHヒーター / エアコン / フローリング / ウォークインクロゼット / 照明器具 / バルコニー / 洋式トイレ / シャワー / 浴室乾燥機 / 洗面化粧台 / 追焚き / 室内洗濯機置場 / バストイレ別 / 保証人不要 / コンロ(コンロ(2口)) / シャワー付トイレ / 全居室収納 / 洗面所独立 / システムキッチン / オンライン内見 / オンライン接客 / IT重説 |
|---|---|
| 建物設備 | エレベータ / オートロック / 駐輪場 / 宅配ボックス / ペット可(犬・猫可) / BSアンテナ / CSアンテナ / ネット利用料無料 / 敷地内ゴミ置き場 / 防犯カメラ |
物件詳細
| 交通機関 | ・西武池袋・豊島線 富士見台駅(徒歩4分) ・西武新宿線 下井草駅(徒歩25分) ・都営地下鉄大江戸線 練馬春日町駅(徒歩25分) | ||||
|---|---|---|---|---|---|
| 構造 | RC造 | 方位 | 南 | 階数/総階数 | 1階/4階建て |
| 総戸数 | 32戸 | 駐車場 | - | 入居日 | 即入居可 |
| 環境 | 富士見台駅前郵便局 (583m) / みずほ銀行谷原出張所 (393m) / まいばすけっと富士見台駅北店 (362m) / ファミリーマート富士見台駅前店 (350m) / スギ薬局富士見台店 (407m) / Olympic中村橋店 (1,156m) / ミスタードーナツ富士見台駅前ショップ (403m) | ||||
| 内装代 | - | 償却 | 0円 | 保険 | 損保要 |
| 更新料 | 160,000円 | 水道料金等預かり金 | - | 特記事項 | - |
| 飲用水 | 公営 | ガス | 都市 | 排水 | 公共下水 |
| 給湯方式 | ガス給湯(浴室給湯あり・キッチン給湯あり・洗面所給湯あり) | ||||
その他の費用
| 一時 | 入居安心サービス料:17,600円/消毒料:17,600円/清掃費:48,950円/エアコン清掃費:22,000円 |
|---|---|
| 他 | 家賃保証会社 初回保証料50% 毎月賃料等請求金額の合計1% |
この物件のお問い合わせ番号 0001-S000111547-0008
類似物件一覧
-
13.2万円
-
-
-
13.5万円
135,000円
1.0ヶ月
1LDK
東京都練馬区豊玉南3丁目 -
14.5万円
145,000円
1.5ヶ月
1LDK
東京都練馬区東大泉6丁目 -
16.8万円
168,000円
-
1LDK
東京都練馬区北町3丁目 -
14.2万円
-
-
1DK
東京都練馬区桜台3丁目 -
16.0万円
160,000円
1.0ヶ月
1LDK
東京都練馬区豊玉北2丁目 -
18.7万円
187,000円
1.0ヶ月
1LDK
東京都練馬区豊玉北6丁目 -
11.5万円
115,000円
1.0ヶ月
1LDK
東京都練馬区上石神井2丁目 -
15.0万円
-
1.0ヶ月
1LDK
東京都練馬区貫井4丁目 -
12.3万円
123,000円
1.0ヶ月
1LDK
東京都練馬区上石神井2丁目 -
12.4万円
124,000円
1.0ヶ月
1LDK
東京都練馬区貫井3丁目 -
13.0万円
130,000円
-
1LDK
東京都練馬区旭丘1丁目
店舗情報
お電話での物件問い合わせは無料通話で!(直営店のみ)
0001-S000111547-0008
- 三重法人部
- 059-356-8041
- 三重県四日市市鵜の森1丁目1-19太平洋鵜の森ビル5階
このお部屋にお問い合わせ
あわせて店舗への来店を希望のお客様は、上の希望店舗の来店予約フォームをご利用ください(直営店舗のみ)
Sorry,Japanese & English only. 日本語・英語のみ対応しております。ご了承ください。
- ※取扱形態は媒介(先物)です。 / お部屋の情報は随時更新です / 各種情報と現況に差異がある場合は、現況優先となります。 / 保証会社の審査があります。 / 契約一時金は、契約時に借主より貸主に支払われ返還されない金銭です。

この物件のかんたんお問合せフォーム
お電話でお問合せ(法人用)
外観・間取り図






















東京都練馬区高野台1丁目