S-RESIDENCE板橋大山 物件詳細情報
| 沿線・駅 所在地 |
賃料 共益費(管理費) |
敷金 礼金 |
間取り 専有面積 |
種別 建築年月日 |
|
|---|---|---|---|---|---|
|
東武東上線 下板橋駅(徒歩9分)
東京都板橋区熊野町 |
104,500円 10,000円 |
- - |
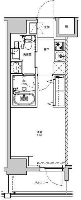
1K 25.22m2 |
マンション 2023年7月 |
|
ミニミニの仲介手数料は家賃の55%(税込)です。※直営店は全店対象。但し、駐車場・店舗・事務所・業者仲介及び紹介契約は対象外。※FC店舗は対象外ですので、各店にお問い合わせください。
この物件のお問い合わせ番号 0001-S000111494-0005

- 池袋本町三郵便局
設備
| 部屋設備 | ガス給湯 / 浴室給湯あり / キッチン給湯あり / 洗面所給湯あり / TV付モニターホン / 下駄箱 / ガスコンロ(コンロ(2口)) / エアコン / フローリング / バルコニー / 洋式トイレ / シャワー / 浴室乾燥機 / 洗髪洗面化粧台 / 洗面化粧台 / 室内洗濯機置場 / バストイレ別 / 保証人不要 / シャワー付トイレ / クロゼット / 全居室収納 / 洗面所独立 / システムキッチン / オンライン内見 / オンライン接客 / IT重説 |
|---|---|
| 建物設備 | エレベータ / オートロック / 駐輪場 / 宅配ボックス / ペット可(犬・猫可) / BSアンテナ / CSアンテナ / バイク置き場 / ネット利用料無料 / 防犯カメラ |
物件詳細
| 交通機関 | ・東武東上線 下板橋駅(徒歩9分) ・都営地下鉄三田線 板橋区役所前駅(徒歩12分) ・埼京線 板橋駅(徒歩16分) | ||||
|---|---|---|---|---|---|
| 構造 | RC造 | 方位 | 西 | 階数/総階数 | 4階/12階建て |
| 総戸数 | 59戸 | 駐車場 | - | 入居日 | 相談 |
| 環境 | 池袋本町三郵便局 (564m) / 東京シティ信用金庫池袋本町支店 (231m) / まいばすけっと熊野町山手通り店 (229m) / セブンイレブン池袋本町店 (247m) / スギドラッグ池袋本町店 (759m) | ||||
| 内装代 | - | 償却 | 0円 | 保険 | 損保要 |
| 更新料 | 104,500円 | 水道料金等預かり金 | - | 特記事項 | - |
| 飲用水 | 公営 | ガス | 都市 | 排水 | 公共下水 |
| 給湯方式 | ガス給湯(浴室給湯あり・キッチン給湯あり・洗面所給湯あり) | ||||
その他の費用
| 一時 | 鍵交換代:33,000円/クリーニング代:38,500円/エアコンクリーニング代(1台):16,500円 |
|---|---|
| 他 | 家賃保証会社 初回保証料50% 1年毎12,000円 口座振替手数料330円 |
この物件のお問い合わせ番号 0001-S000111494-0005
類似物件一覧
-
12.5万円
125,000円
-
-
10.9万円
-
1.0ヶ月
1K
東京都板橋区栄町 -
12.5万円
125,000円
1.0ヶ月
1DK
東京都板橋区赤塚1丁目 -
8.3万円
-
0.5ヶ月
1K
東京都板橋区赤塚2丁目 -
11.0万円
-
1.0ヶ月
1K
東京都板橋区東新町1丁目 -
10.3万円
-
1.0ヶ月
1K
東京都板橋区大谷口上町 -
12.3万円
123,000円
1.0ヶ月
1K
東京都板橋区赤塚2丁目 -
10.2万円
-
1.0ヶ月
1K
東京都板橋区大谷口上町 -
8.9万円
89,000円
1.0ヶ月
1K
東京都板橋区成増1丁目 -
9.9万円
-
0.5ヶ月
1K
東京都板橋区中丸町 -
12.8万円
128,000円
-
1R
東京都板橋区桜川2丁目 -
9.6万円
-
1.0ヶ月
1DK
東京都板橋区中板橋
店舗情報
お電話での物件問い合わせは無料通話で!(直営店のみ)
0001-S000111494-0005
- 池袋西口店
-
この物件で来店予約- 来店予約フォーム -
-
無料通話番号を表示
- 山手線 池袋駅(徒歩1分)
- Tel: 03-5911-3200
- 店舗詳細情報
このお部屋にお問い合わせ
あわせて店舗への来店を希望のお客様は、上の希望店舗の来店予約フォームをご利用ください(直営店舗のみ)
Sorry,Japanese & English only. 日本語・英語のみ対応しております。ご了承ください。
- ※取扱形態は媒介(先物)です。 / お部屋の情報は随時更新です / 各種情報と現況に差異がある場合は、現況優先となります。 / 保証会社の審査があります。 / 契約一時金は、契約時に借主より貸主に支払われ返還されない金銭です。

この物件のかんたんお問合せフォーム
お電話でお問合せ(無料)
外観・間取り図











東京都板橋区大和町