PLENDY浦和別所 物件詳細情報
| 沿線・駅 所在地 |
賃料 共益費(管理費) |
敷金 礼金 |
間取り 専有面積 |
種別 建築年月日 |
|
|---|---|---|---|---|---|
|
京浜東北・根岸線 浦和駅(徒歩16分)
埼玉県さいたま市南区別所3丁目 |
205,000円 10,000円 |
- - |
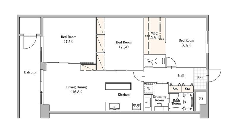
3LDK 84.00m2 |
マンション 1992年3月 |
|
ミニミニの仲介手数料は家賃の55%(税込)です。※直営店は全店対象。但し、駐車場・店舗・事務所・業者仲介及び紹介契約は対象外。※FC店舗は対象外ですので、各店にお問い合わせください。
この物件のお問い合わせ番号 0001-S000111474-0018

- 浦和別所郵便局
設備
| 部屋設備 | ガス給湯 / 浴室給湯あり / キッチン給湯あり / 洗面所給湯あり / 下駄箱 / ガスコンロ(コンロ(3口)) / エアコン / フローリング / バルコニー / 洋式トイレ / シャワー / 浴室乾燥機 / 洗面化粧台 / 追焚き / 室内洗濯機置場 / バストイレ別 / 保証人不要 / 2人入居 / シャワー付トイレ / クロゼット3ヶ所 / クロゼット / 全居室収納 / 洗面所独立 / システムキッチン / オンライン内見 / オンライン接客 / IT重説 |
|---|---|
| 建物設備 | エレベータ / オートロック / 駐輪場 / 宅配ボックス / ペット可(犬・猫可) / バイク置き場 / ネット利用料無料 / 敷地内ゴミ置き場 |
物件詳細
| 交通機関 | ・京浜東北・根岸線 浦和駅(徒歩16分) ・武蔵野線 武蔵浦和駅(徒歩12分) ・埼京線 中浦和駅(徒歩10分) | ||||
|---|---|---|---|---|---|
| 構造 | RC造 | 方位 | 南 | 階数/総階数 | 4階/5階建て |
| 総戸数 | 28戸 | 駐車場 | 22,000円 | 入居日 | 相談 |
| 環境 | 浦和別所郵便局 (494m) / 武蔵野銀行県庁前支店 (518m) / まいばすけっと浦和仲町3丁目店 (695m) / ファミリーマートさいたま別所五丁目店 (449m) / 伊勢丹浦和店 (1,224m) / ドラッグセイムス浦和岸町店 (654m) / ニトリ武蔵浦和駅前店 (877m) / 国立埼玉大学 (4,972m) / スターバックスコーヒー浦和別所店 (231m) / 西松屋新オリンピック武蔵浦和店 (870m) | ||||
| 内装代 | - | 償却 | 0円 | 保険 | 損保要 |
| 更新料 | 205,000円 | 水道料金等預かり金 | - | 特記事項 | 定期建物賃貸借物件 |
| 飲用水 | 公営 | ガス | 都市 | 排水 | 公共下水 |
| 給湯方式 | ガス給湯(浴室給湯あり・キッチン給湯あり・洗面所給湯あり) | ||||
その他の費用
| 毎月 | PLENDYサポート:1,650円/安心サポート:1,000円 |
|---|---|
| 一時 | 鍵交換費用(ディンプルキー):27,500円/クリーニング費用(退去時払い):101,640円/トランクルーム:5,500円 |
| 他 | 家賃保証会社 初回保証料60% |
この物件のお問い合わせ番号 0001-S000111474-0018
類似物件一覧
店舗情報
お電話での物件問い合わせは無料通話で!(直営店のみ)
0001-S000111474-0018
- 浦和店
-
この物件で来店予約- 来店予約フォーム -
-
無料通話番号を表示
- 京浜東北・根岸線 浦和駅(徒歩2分)
- Tel: 048-832-3221
- 店舗詳細情報
このお部屋にお問い合わせ
あわせて店舗への来店を希望のお客様は、上の希望店舗の来店予約フォームをご利用ください(直営店舗のみ)
Sorry,Japanese & English only. 日本語・英語のみ対応しております。ご了承ください。
- ※取扱形態は媒介(先物)です。 / お部屋の情報は随時更新です / 各種情報と現況に差異がある場合は、現況優先となります。 / 保証会社の審査があります。 / 契約一時金は、契約時に借主より貸主に支払われ返還されない金銭です。

この物件のかんたんお問合せフォーム
お電話でお問合せ(無料)
外観・間取り図
















埼玉県さいたま市南区南浦和3丁目