クレアール南千住 物件詳細情報
| 沿線・駅 所在地 |
賃料 共益費(管理費) |
敷金 礼金 |
間取り 専有面積 |
種別 建築年月日 |
|
|---|---|---|---|---|---|
|
東京メトロ日比谷線 三ノ輪駅(徒歩7分)
東京都荒川区南千住1丁目 |
65,000円 4,000円 |
65,000円 - |
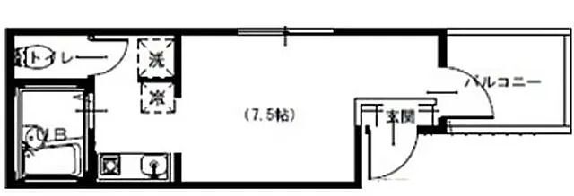
1R 16.04m2 |
アパート 2015年7月 |
|
ミニミニの仲介手数料は家賃の55%(税込)です。※直営店は全店対象。但し、駐車場・店舗・事務所・業者仲介及び紹介契約は対象外。※FC店舗は対象外ですので、各店にお問い合わせください。
この物件のお問い合わせ番号 0001-S000110741-0001
外観・間取り図
情報登録日:2026/02/17 情報更新日:2026/02/18 次回更新予定日:2026/02/25
設備
| 部屋設備 | IHヒーター / エアコン / フローリング / バルコニー / 浴室乾燥機 / 室内洗濯機置場 / バストイレ別 / オンライン内見 / オンライン接客 / IT重説 |
|---|---|
| 建物設備 |
物件詳細
| 交通機関 | ・東京メトロ日比谷線 三ノ輪駅(徒歩7分) ・都営地下鉄荒川線 三ノ輪橋駅(徒歩5分) | ||||
|---|---|---|---|---|---|
| 構造 | 木造 | 方位 | 南東 | 階数/総階数 | 3階/3階建て |
| 総戸数 | - | 駐車場 | - | 入居日 | 相談 |
| 環境 | 荒川区役所 (802m) / 荒川南千住郵便局 (460m) / 台東区立根岸図書館 (577m) / 南千住警察署 (619m) / 荒川公園 (769m) / 三ノ輪病院 (354m) / 朝日信用金庫荒川南支店 (523m) / ヨークフーズ三ノ輪店 (272m) / セブンイレブン荒川1丁目店 (181m) / ルミネ北千住店 (2,979m) / どらっぐぱぱす三ノ輪店 (305m) / ロイヤルホームセンター南千住 (1,613m) / 東京芸術大学千住キャンパス (2,480m) / ゲオ鶯谷店 (1,870m) / ジョナサン大関横丁店 (263m) / BiVi南千住 (1,480m) | ||||
| 内装代 | - | 償却 | 0円 | 保険 | 損保要 |
| 更新料 | 65,000円 | 水道料金等預かり金 | - | 特記事項 | - |
| 飲用水 | 公営 | ガス | 都市 | 排水 | 公共下水 |
| 給湯方式 | - | ||||
その他の費用
| 毎月 | ジャパンライフサポート24:1,100円 |
|---|---|
| 一時 | 鍵交換代:27,500円/消毒料:17,600円 |
| 他 | 家賃保証会社 初回保証料50% 更新料10,000円 |
この物件のお問い合わせ番号 0001-S000110741-0001
類似物件一覧
-
8.0万円
-
1.0ヶ月
-
5.8万円
58,000円
-
1R
東京都荒川区南千住7丁目 -
6.5万円
-
-
1K
東京都荒川区西尾久5丁目 -
5.6万円
-
-
1R
東京都荒川区西尾久5丁目 -
6.0万円
60,000円
-
1R
東京都荒川区東尾久6丁目 -
7.2万円
1.0ヶ月
-
1R
東京都荒川区東日暮里4丁目 -
6.7万円
67,000円
-
1K
東京都荒川区東日暮里6丁目 -
6.2万円
-
-
1K
東京都荒川区東日暮里1丁目 -
8.0万円
80,000円
1.0ヶ月
1DK
東京都荒川区南千住1丁目 -
6.3万円
63,000円
1.0ヶ月
1K
東京都荒川区東日暮里6丁目 -
7.0万円
70,000円
1.0ヶ月
1K
東京都荒川区町屋2丁目 -
6.8万円
68,000円
-
1K
東京都荒川区町屋8丁目
店舗情報
お電話での物件問い合わせは無料通話で!(直営店のみ)
0001-S000110741-0001
- 北千住店
-
この物件で来店予約- 来店予約フォーム -
-
無料通話番号を表示
- 東京メトロ千代田線 北千住駅(徒歩5分)
- Tel: 03-5244-2232
- 店舗詳細情報
このお部屋にお問い合わせ
あわせて店舗への来店を希望のお客様は、上の希望店舗の来店予約フォームをご利用ください(直営店舗のみ)
Sorry,Japanese & English only. 日本語・英語のみ対応しております。ご了承ください。
- ※取扱形態は媒介(先物)です。 / お部屋の情報は随時更新です / 各種情報と現況に差異がある場合は、現況優先となります。 / 保証会社の審査があります。 / 契約一時金は、契約時に借主より貸主に支払われ返還されない金銭です。

この物件のかんたんお問合せフォーム
お電話でお問合せ(無料)











東京都荒川区町屋6丁目