PREMIUM CUBE 王子神谷 物件詳細情報
| 沿線・駅 所在地 |
賃料 共益費(管理費) |
敷金 礼金 |
間取り 専有面積 |
種別 建築年月日 |
|
|---|---|---|---|---|---|
|
東京メトロ南北線 王子神谷駅(徒歩14分)
東京都北区豊島6丁目 |
200,000円 20,000円 |
- - |
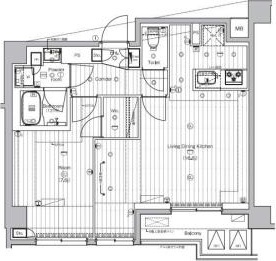
1LDK 55.80m2 |
マンション 2025年10月 |
|
ミニミニの仲介手数料は家賃の55%(税込)です。※直営店は全店対象。但し、駐車場・店舗・事務所・業者仲介及び紹介契約は対象外。※FC店舗は対象外ですので、各店にお問い合わせください。
この物件のお問い合わせ番号 0001-S000106855-0005
短期解約違約金有(1年未満の解約で総賃料2ヶ月分、1年以上2年未満の解約で総賃料1ヶ月分)。ペット飼育1匹の場合共益費+3500円追加、2匹の場合共益費+3500円追加及び敷金1ヶ月追加(償却)※犬・猫いずれか2匹(成長時体長50cm以下、10kg以下)

- 北豊島三郵便局
設備
| 部屋設備 | 下駄箱 / フローリング / ベランダ / バルコニー / シャワー / 浴室テレビ / 追焚き / 室内洗濯機置場 / バストイレ別 / コンロ(コンロ(3口)) / シャワー付トイレ / システムキッチン / オンライン内見 / オンライン接客 / IT重説 |
|---|---|
| 建物設備 | エレベータ / オートロック / 駐輪場 / 宅配ボックス / ペット可(犬・猫可) / BSアンテナ / CSアンテナ / ネット利用料無料 |
物件詳細
| 交通機関 | ・東京メトロ南北線 王子神谷駅(徒歩14分) | ||||
|---|---|---|---|---|---|
| 構造 | RC造 | 方位 | 西 | 階数/総階数 | 6階/6階建て |
| 総戸数 | - | 駐車場 | - | 入居日 | 即入居可 |
| 環境 | 北豊島三郵便局 (688m) / 北区立豊島図書館 (953m) / 王子警察署 (1,427m) / 足立区立新田さくら公園 (565m) / 東京ほくと医療生活協同組合王子生協病院 (910m) / 東京シティ信用金庫東王子支店 (721m) / ベルク足立新田店 (773m) / セブンイレブン北区豊島6丁目店 (395m) / P’パルコ (5,476m) / ココカラファインハートアイランド店 (640m) / ビバホーム豊島5丁目店 (951m) / 私立東京福祉大学王子キャンパス (1,909m) / サイゼリヤ足立新田店 (647m) / ユニクロ王子神谷店 (1,025m) | ||||
| 内装代 | - | 償却 | 0円 | 保険 | 損保要 |
| 更新料 | - | 水道料金等預かり金 | - | 特記事項 | - |
| 飲用水 | 公営 | ガス | 都市 | 排水 | 公共下水 |
| 給湯方式 | - | ||||
その他の費用
| 毎月 | 入居中サポート:1,500円 |
|---|---|
| 一時 | 鍵費用:25,300円 |
| 他 | 家賃保証会社 初回保証料50% 保証更新料10,000円 |
この物件のお問い合わせ番号 0001-S000106855-0005
類似物件一覧
-
15.5万円
155,000円
1.0ヶ月
-
17.0万円
170,000円
-
1LDK
東京都北区滝野川6丁目 -
15.4万円
154,000円
-
2K
東京都北区王子1丁目 -
15.5万円
-
-
1DK
東京都北区十条仲原2丁目 -
14.9万円
-
-
1DK
東京都北区田端新町1丁目 -
16.5万円
165,000円
1.0ヶ月
1LDK
東京都北区西ケ原4丁目 -
23.8万円
238,000円
-
1LDK
東京都北区志茂1丁目 -
17.6万円
176,000円
1.0ヶ月
1LDK
東京都北区十条仲原2丁目 -
16.2万円
-
-
1LDK
東京都北区十条仲原2丁目 -
17.6万円
176,000円
-
1LDK
東京都北区西ケ原4丁目 -
16.5万円
-
-
1LDK
東京都北区十条仲原2丁目 -
18.7万円
187,000円
-
1LDK
東京都北区西ケ原1丁目
店舗情報
お電話での物件問い合わせは無料通話で!(直営店のみ)
0001-S000106855-0005
- 赤羽店
-
この物件で来店予約- 来店予約フォーム -
-
無料通話番号を表示
- 埼京線 赤羽駅(徒歩1分)
- Tel: 03-5249-0032
- 店舗詳細情報
このお部屋にお問い合わせ
あわせて店舗への来店を希望のお客様は、上の希望店舗の来店予約フォームをご利用ください(直営店舗のみ)
Sorry,Japanese & English only. 日本語・英語のみ対応しております。ご了承ください。
- ※取扱形態は媒介(先物)です。 / お部屋の情報は随時更新です / 各種情報と現況に差異がある場合は、現況優先となります。 / 保証会社の審査があります。 / 契約一時金は、契約時に借主より貸主に支払われ返還されない金銭です。

この物件のかんたんお問合せフォーム
お電話でお問合せ(無料)
外観・間取り図


















東京都北区滝野川7丁目