KEIAI RESIDENCE 狭山ヶ丘 物件詳細情報
| 沿線・駅 所在地 |
賃料 共益費(管理費) |
敷金 礼金 |
間取り 専有面積 |
種別 建築年月日 |
|
|---|---|---|---|---|---|
|
西武池袋・豊島線 狭山ヶ丘駅(徒歩6分)
埼玉県所沢市和ケ原1丁目 |
66,000円 3,500円 |
- 66,000円 |
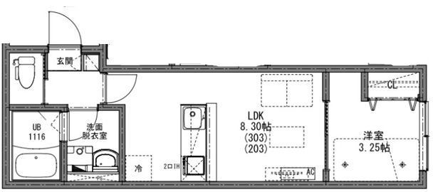
1LDK 27.12m2 |
アパート 2026年2月 |
|
ミニミニの仲介手数料は家賃の55%(税込)です。※直営店は全店対象。但し、駐車場・店舗・事務所・業者仲介及び紹介契約は対象外。※FC店舗は対象外ですので、各店にお問い合わせください。
この物件のお問い合わせ番号 0001-S000105588-0007
外観・間取り図
情報登録日:2025/12/06 情報更新日:2025/12/09 次回更新予定日:2025/12/16
設備
| 部屋設備 | ガス給湯 / 浴室給湯あり / キッチン給湯あり / 洗面所給湯あり / 下駄箱 / ガスコンロ(コンロ(2口)) / エアコン / フローリング / 洋式トイレ / シャワー / 浴室乾燥機 / 洗髪洗面化粧台 / 洗面化粧台 / 室内洗濯機置場 / バストイレ別 / 保証人不要 / 角部屋 / シャワー付トイレ / クロゼット / 全居室収納 / 洗面所独立 / システムキッチン / オンライン内見 / オンライン接客 / IT重説 |
|---|---|
| 建物設備 | オートロック / 宅配ボックス / CATV / ネット利用料無料 / 敷地内ゴミ置き場 |
物件詳細
| 交通機関 | ・西武池袋・豊島線 狭山ヶ丘駅(徒歩6分) ・西武池袋・豊島線 武蔵藤沢駅(徒歩21分) ・西武池袋・豊島線 小手指駅(徒歩35分) | ||||
|---|---|---|---|---|---|
| 構造 | 木造 | 方位 | 北東 | 階数/総階数 | 2階/3階建て |
| 総戸数 | 9戸 | 駐車場 | - | 入居日 | 2026年2月中旬 |
| 環境 | 所沢若狭郵便局 (422m) / 西武信用金庫狭山ヶ丘支店 (436m) / TAIRAYA狭山ヶ丘店 (307m) / マミーマート狭山ヶ丘店 (609m) / セブンイレブン所沢狭山ヶ丘2丁目店 (531m) / 丸広百貨店入間店 (4,624m) / セイジョー狭山ヶ丘店 (410m) / Olympic所沢西店 (1,253m) | ||||
| 内装代 | - | 償却 | 0円 | 保険 | 損保要 |
| 更新料 | 66,000円 | 水道料金等預かり金 | - | 特記事項 | - |
| 飲用水 | 公営 | ガス | 都市 | 排水 | 公共下水 |
| 給湯方式 | ガス給湯(浴室給湯あり・キッチン給湯あり・洗面所給湯あり) | ||||
その他の費用
| 毎月 | KEIAI CLUB:2,750円 |
|---|---|
| 一時 | 鍵交発行手数料:27,500円/契約事務手数料:16,500円/退去時清掃費用:55,000円 |
| 他 | 家賃保証会社 初回保証料50% 毎月賃料等請求金額の合計900円 |
この物件のお問い合わせ番号 0001-S000105588-0007
類似物件一覧
-
7.2万円
-
-
-
8.2万円
-
80,000円
1LDK
埼玉県所沢市緑町4丁目 -
5.8万円
58,000円
-
1DK
埼玉県所沢市美原町2丁目 -
8.1万円
-
80,000円
1LDK
埼玉県所沢市緑町4丁目 -
8.0万円
-
80,000円
1LDK
埼玉県所沢市緑町4丁目 -
4.9万円
49,000円
-
2K
埼玉県所沢市大字山口 -
8.1万円
-
80,000円
1LDK
埼玉県所沢市緑町4丁目 -
5.2万円
52,000円
1.0ヶ月
2K
埼玉県所沢市東町 -
7.4万円
-
1.0ヶ月
1DK
埼玉県所沢市大字山口 -
8.0万円
-
1.0ヶ月
1LDK
埼玉県所沢市小手指町4丁目 -
6.9万円
-
-
1DK
埼玉県所沢市小手指台 -
8.3万円
-
80,000円
1LDK
埼玉県所沢市緑町4丁目
店舗情報
お電話での物件問い合わせは無料通話で!(直営店のみ)
0001-S000105588-0007
- 所沢店
-
この物件で来店予約- 来店予約フォーム -
-
無料通話番号を表示
- 西武池袋・豊島線 所沢駅(徒歩2分)
- Tel: 04-2922-6868
- 店舗詳細情報
このお部屋にお問い合わせ
あわせて店舗への来店を希望のお客様は、上の希望店舗の来店予約フォームをご利用ください(直営店舗のみ)
Sorry,Japanese & English only. 日本語・英語のみ対応しております。ご了承ください。
- ※取扱形態は媒介(先物)です。 / お部屋の情報は随時更新です / 各種情報と現況に差異がある場合は、現況優先となります。 / 保証会社の審査があります。 / 契約一時金は、契約時に借主より貸主に支払われ返還されない金銭です。

この物件のかんたんお問合せフォーム
お電話でお問合せ(無料)









埼玉県所沢市小手指台