コンフォリア・リヴ千住 物件詳細情報
| 沿線・駅 所在地 |
賃料 共益費(管理費) |
敷金 礼金 |
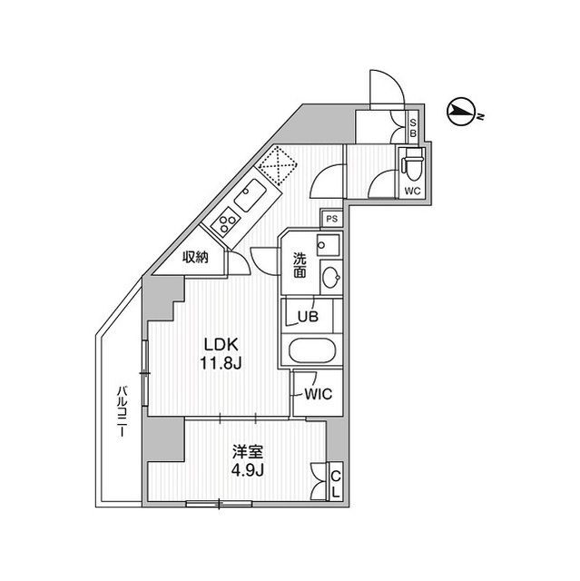
間取り 専有面積 |
種別 建築年月日 |
|
|---|---|---|---|---|---|
|
京成電鉄本線 千住大橋駅(徒歩1分)
東京都足立区千住河原町 |
158,000円 10,000円 |
158,000円 - |
1LDK 42.60m2 |
マンション 2024年1月 |
|
ミニミニの仲介手数料は家賃の55%(税込)です。※直営店は全店対象。但し、駐車場・店舗・事務所・業者仲介及び紹介契約は対象外。※FC店舗は対象外ですので、各店にお問い合わせください。
この物件のお問い合わせ番号 0001-S000090612-0009
遠隔地のお客様や、忙しく店舗まで足を運ぶのが難しいお客様にも安心のオンラインシステム。弊社は来店不要で契約が可能です。オンライン接客・内見・IT重要事項説明等のご要望がございましたらご相談下さい。

- 千住大橋駅前郵便局
設備
| 部屋設備 | TV付モニターホン / 下駄箱 / エアコン / フローリング / 照明器具 / 防音サッシ / 浴室乾燥機 / 洗面化粧台 / 追焚き / 室内洗濯機置場 / バストイレ別 / 角部屋 / シャワー付トイレ / クロゼット / 洗面所独立 / システムキッチン / オンライン内見 / オンライン接客 / IT重説 |
|---|---|
| 建物設備 | エレベータ / オートロック / 駐輪場 / 宅配ボックス / BSアンテナ / CSアンテナ / ネット利用料無料 / 敷地内ゴミ置き場 / 防犯カメラ |
物件詳細
| 交通機関 | ・京成電鉄本線 千住大橋駅(徒歩1分) ・常磐線 北千住駅(徒歩13分) ・東京メトロ千代田線 北千住駅(徒歩13分) | ||||
|---|---|---|---|---|---|
| 構造 | RC造 | 方位 | 南東 | 階数/総階数 | 4階/13階建て |
| 総戸数 | 77戸 | 駐車場 | - | 入居日 | 2026年5月上旬 |
| 環境 | 荒川区役所 (2,289m) / 千住大橋駅前郵便局 (392m) / 荒川区立南千住図書館 (829m) / 千住警察署 (904m) / 千住スポーツ公園 (407m) / 民政会愛里病院 (1,025m) / 千葉銀行千住支店 (692m) / まいばすけっと千住大橋駅北店 (114m) / セブンイレブン千住大橋駅店 (137m) / ルミネ北千住店 (1,339m) / マツモトキヨシポンテポルタ千住店 (283m) / ノジマ千住大橋店 (302m) / 東京芸術大学千住キャンパス (840m) / ゲオ鶯谷店 (3,271m) / 中華食堂日高屋千住大橋店 (156m) / 西松屋ポンテポルタ千住店 (286m) | ||||
| 内装代 | - | 償却 | 0円 | 保険 | 損保要 |
| 更新料 | 158,000円 | 水道料金等預かり金 | - | 特記事項 | - |
| 飲用水 | 公営 | ガス | 都市 | 排水 | 公共下水 |
| 給湯方式 | - | ||||
その他の費用
| 一時 | 鍵交換代:33,000円 |
|---|---|
| 他 | 家賃保証会社 初回保証料50% 毎月賃料等請求金額の合計1% |
この物件のお問い合わせ番号 0001-S000090612-0009
類似物件一覧
-
15.2万円
-
-
-
14.9万円
-
-
1LDK
東京都足立区西新井7丁目 -
13.8万円
-
-
1LDK
東京都足立区西新井7丁目 -
15.2万円
152,000円
1.0ヶ月
1LDK
東京都足立区千住寿町 -
15.2万円
-
-
1LDK
東京都足立区千住中居町 -
18.3万円
183,000円
-
1LDK
東京都足立区綾瀬2丁目 -
15.7万円
157,000円
-
1DK
東京都足立区千住中居町 -
16.2万円
162,000円
-
1LDK
東京都足立区西新井栄町1丁目 -
15.6万円
156,000円
-
1LDK
東京都足立区梅島2丁目 -
15.1万円
-
-
1LDK
東京都足立区西新井7丁目 -
15.9万円
-
-
1LDK
東京都足立区綾瀬1丁目 -
13.9万円
-
-
1LDK
東京都足立区西新井7丁目
店舗情報
お電話での物件問い合わせは無料通話で!(直営店のみ)
0001-S000090612-0009
- 北千住店
-
この物件で来店予約- 来店予約フォーム -
-
無料通話番号を表示
- 東京メトロ千代田線 北千住駅(徒歩5分)
- Tel: 03-5244-2232
- 店舗詳細情報
このお部屋にお問い合わせ
あわせて店舗への来店を希望のお客様は、上の希望店舗の来店予約フォームをご利用ください(直営店舗のみ)
Sorry,Japanese & English only. 日本語・英語のみ対応しております。ご了承ください。
- ※取扱形態は媒介(先物)です。 / お部屋の情報は随時更新です / 各種情報と現況に差異がある場合は、現況優先となります。 / 保証会社の審査があります。 / 契約一時金は、契約時に借主より貸主に支払われ返還されない金銭です。

この物件のかんたんお問合せフォーム
お電話でお問合せ(無料)
外観・間取り図


















東京都足立区西新井7丁目