ロイヤルパークス赤羽サウス 物件詳細情報
| 沿線・駅 所在地 |
賃料 共益費(管理費) |
敷金 礼金 |
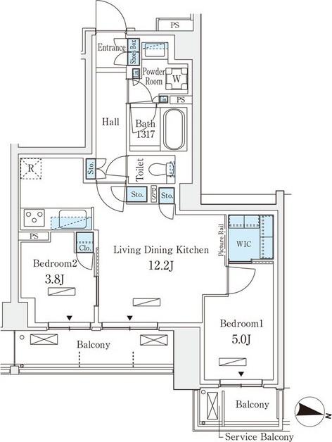
間取り 専有面積 |
種別 建築年月日 |
|
|---|---|---|---|---|---|
|
東京メトロ南北線 志茂駅(徒歩10分)
東京都北区神谷3丁目 |
252,000円 20,000円 |
- - |
2LDK 53.07m2 |
マンション 2025年2月 |
|
ミニミニの仲介手数料は家賃の55%(税込)です。※直営店は全店対象。但し、駐車場・店舗・事務所・業者仲介及び紹介契約は対象外。※FC店舗は対象外ですので、各店にお問い合わせください。
この物件のお問い合わせ番号 0001-S000089408-0020
遠隔地のお客様や、忙しく店舗まで足を運ぶのが難しいお客様にも安心のオンラインシステム。弊社は来店不要で契約が可能です。オンライン接客・内見・IT重要事項説明等のご要望がございましたらご相談下さい。ミニミニではLINEのやり取りでお部屋探しが可能です。

- 北神谷郵便局
設備
| 部屋設備 | エアコン / フローリング / ウォークインクロゼット / ベランダ / バルコニー / 浴室乾燥機 / 追焚き / 室内洗濯機置場 / バストイレ別 / システムキッチン / オンライン内見 / オンライン接客 / IT重説 |
|---|---|
| 建物設備 | エレベータ / オートロック / 宅配ボックス / ペット可 / BSアンテナ / CSアンテナ / 敷地内ゴミ置き場 |
物件詳細
| 交通機関 | ・東京メトロ南北線 志茂駅(徒歩10分) ・埼京線 赤羽駅(徒歩17分) ・京浜東北・根岸線 東十条駅(徒歩14分) | ||||
|---|---|---|---|---|---|
| 構造 | RC造 | 方位 | 東 | 階数/総階数 | 7階/7階建て |
| 総戸数 | 46戸 | 駐車場 | - | 入居日 | 即入居可 |
| 環境 | 北区役所 (2,665m) / 北神谷郵便局 (405m) / 北区立神谷図書館 (226m) / 赤羽警察署 (429m) / 神谷堀緑地 (1,052m) / 医療法人社団田島厚生会神谷病院 (753m) / 瀧野川信用金庫東十条支店 (661m) / まいばすけっと神谷2丁目店 (344m) / セブンイレブン北区神谷3丁目店 (375m) / P’パルコ (5,848m) / サンドラッグ東十条店 (724m) / ヤマダデンキテックランドイオンスタイル赤羽店 (363m) / 丸亀製麺イオンスタイル赤羽店 (365m) / イオンスタイル赤羽 (365m) | ||||
| 内装代 | - | 償却 | 0円 | 保険 | 損保要 |
| 更新料 | 252,000円 | 水道料金等預かり金 | - | 特記事項 | - |
| 飲用水 | 公営 | ガス | 都市 | 排水 | 公共下水 |
| 給湯方式 | - | ||||
その他の費用
| 一時 | 退去清掃料:81,727円/鍵交換費用:44,000円 |
|---|---|
| 他 | 家賃保証会社 初回保証料50% 2年目以降10,000円 |
この物件のお問い合わせ番号 0001-S000089408-0020
類似物件一覧
-
24.5万円
245,000円
-
-
23.0万円
230,000円
-
2LDK
東京都北区赤羽台3丁目 -
21.0万円
210,000円
1.0ヶ月
3K
東京都北区赤羽西2丁目 -
21.1万円
211,000円
-
2LDK
東京都北区王子2丁目 -
22.7万円
-
-
2LDK
東京都北区上十条3丁目 -
22.9万円
-
1.0ヶ月
2LDK
東京都北区赤羽3丁目 -
23.1万円
231,000円
-
2LDK
東京都北区田端新町2丁目 -
22.9万円
-
1.0ヶ月
2LDK
東京都北区赤羽3丁目 -
23.0万円
-
-
2LDK
東京都北区上十条3丁目 -
23.9万円
239,000円
1.0ヶ月
2LDK
東京都北区東十条3丁目 -
26.5万円
265,000円
1.0ヶ月
2LDK
東京都北区田端2丁目 -
21.5万円
215,000円
-
2DK
東京都北区中里1丁目
店舗情報
お電話での物件問い合わせは無料通話で!(直営店のみ)
0001-S000089408-0020
- 赤羽店
-
この物件で来店予約- 来店予約フォーム -
-
無料通話番号を表示
- 埼京線 赤羽駅(徒歩1分)
- Tel: 03-5249-0032
- 店舗詳細情報
このお部屋にお問い合わせ
あわせて店舗への来店を希望のお客様は、上の希望店舗の来店予約フォームをご利用ください(直営店舗のみ)
Sorry,Japanese & English only. 日本語・英語のみ対応しております。ご了承ください。
- ※取扱形態は媒介(先物)です。 / お部屋の情報は随時更新です / 各種情報と現況に差異がある場合は、現況優先となります。 / 保証会社の審査があります。 / 契約一時金は、契約時に借主より貸主に支払われ返還されない金銭です。

この物件のかんたんお問合せフォーム
お電話でお問合せ(無料)
外観・間取り図




東京都北区赤羽台3丁目