PREMIUM CUBE G 後楽園 物件詳細情報
| 沿線・駅 所在地 |
賃料 共益費(管理費) |
敷金 礼金 |
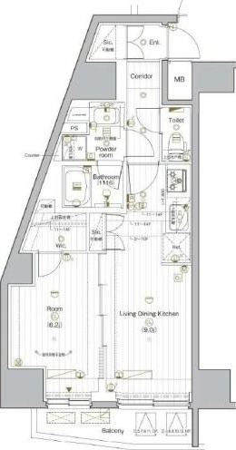
間取り 専有面積 |
種別 建築年月日 |
|
|---|---|---|---|---|---|
|
東京メトロ丸ノ内線 後楽園駅(徒歩12分)
東京都文京区小石川4丁目 |
194,000円 20,000円 |
- - |
1LDK 41.26m2 |
マンション 2023年2月 |
|
ミニミニの仲介手数料は家賃の55%(税込)です。※直営店は全店対象。但し、駐車場・店舗・事務所・業者仲介及び紹介契約は対象外。※FC店舗は対象外ですので、各店にお問い合わせください。
この物件のお問い合わせ番号 0001-S000087115-0013
インターネット無料!1LDK角部屋、ペット2匹飼育可能!ペット飼育1匹の場合共益費+3500円追加、2匹の場合共益費+3500円追加及び敷金1ヶ月追加(償却)

- 小石川郵便局
設備
| 部屋設備 | TV付モニターホン / 下駄箱 / エアコン / フローリング / 照明器具 / ベランダ / バルコニー / 洋式トイレ / シャワー / 浴室乾燥機 / 洗面化粧台 / 追焚き / 室内洗濯機置場 / バストイレ別 / コンロ(コンロ(2口)) / 角部屋 / 2人入居 / シャワー付トイレ / クロゼット / 洗面所独立 / システムキッチン / オンライン内見 / オンライン接客 / IT重説 |
|---|---|
| 建物設備 | エレベータ / オートロック / 駐輪場 / 宅配ボックス / ペット可(犬・猫可) / デザイナーズマンション / BSアンテナ / CSアンテナ / バイク置き場 / ネット利用料無料 |
物件詳細
| 交通機関 | ・東京メトロ丸ノ内線 後楽園駅(徒歩12分) ・都営地下鉄三田線 春日駅(徒歩12分) ・東京メトロ丸ノ内線 茗荷谷駅(徒歩11分) | ||||
|---|---|---|---|---|---|
| 構造 | RC造 | 方位 | 南西 | 階数/総階数 | 6階/15階建て |
| 総戸数 | - | 駐車場 | - | 入居日 | 即入居可 |
| 環境 | 文京区役所 (1,038m) / 小石川郵便局 (243m) / 国際仏教学大学院大学附属図書館 (567m) / 富坂警察署 (351m) / 播磨坂さくら並木 (759m) / 独立行政法人地域医療機能推進機構JCHO東京新宿メディカルセンター (1,379m) / ゆうちょ銀行小石川店 (243m) / まいばすけっと春日2丁目店 (254m) / セブンイレブン文京小石川4丁目店 (192m) / 松坂屋上野店 (2,902m) / スギ薬局茗荷谷店 (741m) / Olympic白山店 (1,119m) / 松屋春日店 (1,064m) / 紳士服コナカ文京白山店 (1,064m) | ||||
| 内装代 | - | 償却 | 0円 | 保険 | 損保要 |
| 更新料 | 291,000円 | 水道料金等預かり金 | - | 特記事項 | - |
| 飲用水 | 公営 | ガス | 都市 | 排水 | 公共下水 |
| 給湯方式 | - | ||||
その他の費用
| 一時 | 鍵交換手数料:25,300円/契約事務手数料:11,000円/室内抗菌処理代:17,600円/入居中サポート:21,450円/クリーニング費用:77,000円 |
|---|---|
| 他 | 初回保証料緊連50% 連保35% |
この物件のお問い合わせ番号 0001-S000087115-0013
類似物件一覧
-
24.5万円
-
-
-
20.0万円
200,000円
1.0ヶ月
1LDK
東京都文京区千石2丁目 -
15.0万円
150,000円
-
1DK
東京都文京区小石川2丁目 -
14.0万円
-
-
1DK
東京都文京区千駄木3丁目 -
18.0万円
180,000円
1.0ヶ月
1DK
東京都文京区小石川1丁目 -
14.5万円
-
-
1DK
東京都文京区千駄木3丁目 -
19.8万円
-
1.0ヶ月
1LDK
東京都文京区本駒込5丁目 -
19.5万円
195,000円
-
1LDK
東京都文京区音羽1丁目 -
24.4万円
-
-
1LDK
東京都文京区白山3丁目 -
14.4万円
-
-
1DK
東京都文京区千駄木3丁目 -
22.9万円
-
-
1LDK
東京都文京区音羽1丁目 -
14.6万円
146,000円
-
1LDK
東京都文京区大塚4丁目
店舗情報
お電話での物件問い合わせは無料通話で!(直営店のみ)
0001-S000087115-0013
- 茗荷谷店
-
この物件で来店予約- 来店予約フォーム -
-
無料通話番号を表示
- 東京メトロ丸ノ内線 茗荷谷駅(徒歩1分)
- Tel: 03-5940-0132
- 店舗詳細情報
このお部屋にお問い合わせ
あわせて店舗への来店を希望のお客様は、上の希望店舗の来店予約フォームをご利用ください(直営店舗のみ)
Sorry,Japanese & English only. 日本語・英語のみ対応しております。ご了承ください。
- ※取扱形態は媒介(先物)です。 / お部屋の情報は随時更新です / 各種情報と現況に差異がある場合は、現況優先となります。 / 保証会社の審査があります。 / 契約一時金は、契約時に借主より貸主に支払われ返還されない金銭です。

この物件のかんたんお問合せフォーム
お電話でお問合せ(無料)
外観・間取り図


















東京都文京区白山3丁目