ザ・パークハビオ川口 物件詳細情報
| 沿線・駅 所在地 |
賃料 共益費(管理費) |
敷金 礼金 |
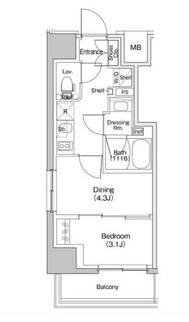
間取り 専有面積 |
種別 建築年月日 |
|
|---|---|---|---|---|---|
|
京浜東北・根岸線 川口駅(徒歩4分)
埼玉県川口市本町4丁目 |
109,000円 15,000円 |
109,000円 - |
1DK 27.96m2 |
マンション 2023年9月 |
|
ミニミニの仲介手数料は家賃の55%(税込)です。※直営店は全店対象。但し、駐車場・店舗・事務所・業者仲介及び紹介契約は対象外。※FC店舗は対象外ですので、各店にお問い合わせください。
この物件のお問い合わせ番号 0001-S000066321-0015

- 川口駅前郵便局
設備
| 部屋設備 | ガス給湯 / 浴室給湯あり / キッチン給湯あり / インターホン / 下駄箱 / ガスコンロ(コンロ(2口)) / エアコン / フローリング / バルコニー / 洋式トイレ / 浴室乾燥機 / 洗面化粧台 / 室内洗濯機置場 / バストイレ別 / 保証人不要 / 角部屋 / シャワー付トイレ / クロゼット / 洗面所独立 / システムキッチン / オンライン内見 / オンライン接客 / IT重説 |
|---|---|
| 建物設備 | エレベータ / オートロック / 駐輪場 / 宅配ボックス / ペット可 / BSアンテナ / CSアンテナ / ネット利用料無料 / 敷地内ゴミ置き場 / 防犯カメラ |
物件詳細
| 交通機関 | ・京浜東北・根岸線 川口駅(徒歩4分) ・埼玉高速鉄道 川口元郷駅(徒歩14分) ・京浜東北・根岸線 西川口駅(徒歩29分) | ||||
|---|---|---|---|---|---|
| 構造 | RC造 | 方位 | 南西 | 階数/総階数 | 6階/10階建て |
| 総戸数 | 90戸 | 駐車場 | 27,500円 | 入居日 | 2026年4月中旬 |
| 環境 | 川口市役所 (945m) / 川口駅前郵便局 (110m) / 医療法人新青会川口工業総合病院 (1,278m) / みずほ銀行川口支店 (383m) / 業務スーパー川口駅前店 (165m) / まいばすけっと川口栄町3丁目店 (155m) / ゲオ川口駅前店 (166m) | ||||
| 内装代 | - | 償却 | 0円 | 保険 | 損保要 |
| 更新料 | 109,000円 | 水道料金等預かり金 | - | 特記事項 | - |
| 飲用水 | 公営 | ガス | 都市 | 排水 | 公共下水 |
| 給湯方式 | ガス給湯(浴室給湯あり・キッチン給湯あり) | ||||
その他の費用
| 毎月 | 駐輪場:220円 |
|---|---|
| 一時 | 駆付けサポート24:16,500円/鍵交換費用:33,000円 |
| 他 | 家賃保証会社 初回保証料40% 2年目以降8,000円 |
この物件のお問い合わせ番号 0001-S000066321-0015
類似物件一覧
-
8.1万円
-
-
-
9.4万円
-
-
1K
埼玉県川口市栄町3丁目 -
9.6万円
96,000円
-
1K
埼玉県川口市元郷1丁目 -
7.8万円
-
-
1K
埼玉県川口市並木1丁目 -
9.8万円
98,000円
1.0ヶ月
1K
埼玉県川口市栄町3丁目 -
9.4万円
94,000円
1.0ヶ月
1LDK
埼玉県川口市幸町3丁目 -
7.9万円
-
-
1K
埼玉県川口市並木1丁目 -
9.0万円
90,000円
1.0ヶ月
1K
埼玉県川口市芝新町 -
8.6万円
-
1.0ヶ月
1K
埼玉県川口市川口4丁目 -
14.1万円
141,000円
-
1LDK
埼玉県川口市飯塚4丁目 -
14.1万円
-
-
1LDK
埼玉県川口市中青木1丁目 -
13.2万円
-
-
1SLDK
埼玉県川口市芝3丁目
店舗情報
お電話での物件問い合わせは無料通話で!(直営店のみ)
0001-S000066321-0015
- 川口店
-
この物件で来店予約- 来店予約フォーム -
-
無料通話番号を表示
- 京浜東北・根岸線 川口駅(徒歩2分)
- Tel: 048-257-3232
- 店舗詳細情報
このお部屋にお問い合わせ
あわせて店舗への来店を希望のお客様は、上の希望店舗の来店予約フォームをご利用ください(直営店舗のみ)
Sorry,Japanese & English only. 日本語・英語のみ対応しております。ご了承ください。
- ※取扱形態は媒介(先物)です。 / お部屋の情報は随時更新です / 各種情報と現況に差異がある場合は、現況優先となります。 / 保証会社の審査があります。 / 契約一時金は、契約時に借主より貸主に支払われ返還されない金銭です。

この物件のかんたんお問合せフォーム
お電話でお問合せ(無料)
外観・間取り図
















埼玉県川口市南鳩ヶ谷6丁目