ハーモニーレジデンスグローバルキャピタル 物件詳細情報
| 沿線・駅 所在地 |
賃料 共益費(管理費) |
敷金 礼金 |
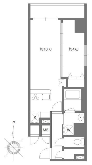
間取り 専有面積 |
種別 建築年月日 |
|
|---|---|---|---|---|---|
|
東京メトロ日比谷線 入谷駅(徒歩5分)
東京都台東区竜泉1丁目 |
168,000円 20,000円 |
- - |
1LDK 40.48m2 |
分譲賃貸 2023年11月 |
|
ミニミニの仲介手数料は家賃の55%(税込)です。※直営店は全店対象。但し、駐車場・店舗・事務所・業者仲介及び紹介契約は対象外。※FC店舗は対象外ですので、各店にお問い合わせください。
この物件のお問い合わせ番号 0001-S000062119-0060
外観・間取り図
情報登録日:2026/03/24 情報更新日:2026/03/29 次回更新予定日:2026/04/05
遠隔地のお客様や、忙しく店舗まで足を運ぶのが難しいお客様にも安心のオンラインシステム。弊社は来店不要で契約が可能です。オンライン接客・内見・IT重要事項説明等のご要望がございましたらご相談下さい。
設備
| 部屋設備 | ガス給湯 / 浴室給湯あり / キッチン給湯あり / 洗面所給湯あり / TV付モニターホン / インターホン / 下駄箱 / ガスコンロ(コンロ(2口)) / エアコン / 冷房 / 暖房 / フローリング / ベランダ / バルコニー / 洋式トイレ / トイレ電源有 / シャワー / 浴室乾燥機 / 洗面化粧台 / 室内洗濯機置場 / バストイレ別 / 角部屋 / 2人入居 / シャワー付トイレ / クロゼット / 全居室収納 / 洗面所独立 / カウンターキッチン / システムキッチン / オンライン内見 / オンライン接客 / IT重説 |
|---|---|
| 建物設備 | エレベータ / オートロック / エントランス / 駐輪場 / 宅配ボックス / ペット可(犬・猫可) / バイク置き場 / ネット利用料無料 / 敷地内ゴミ置き場 / 防犯カメラ |
物件詳細
| 交通機関 | ・東京メトロ日比谷線 入谷駅(徒歩5分) ・東京メトロ日比谷線 三ノ輪駅(徒歩9分) ・山手線 鶯谷駅(徒歩15分) | ||||
|---|---|---|---|---|---|
| 構造 | RC造 | 方位 | 北 | 階数/総階数 | 8階/14階建て |
| 総戸数 | 75戸 | 駐車場 | - | 入居日 | 相談 |
| 環境 | 台東区西部区民事務所 (493m) / 台東竜泉郵便局 (503m) / 台東区立根岸図書館 (868m) / 下谷警察署 (364m) / 荒川公園 (1,717m) / 公益社団法人地域医療振興協会台東区立台東病院 (570m) / 東京東信用金庫入谷支店 (299m) / まいばすけっと竜泉1丁目店 (269m) / ミニストップ入谷2丁目店 (182m) / 松屋浅草 (2,023m) / どらっぐぱぱす入谷店 (508m) / ニトリデコホーム浅草ロックス・3G店 (1,584m) / ガスト台東根岸店(から好し取扱店) (472m) / ユニクロ浅草店 (1,551m) | ||||
| 内装代 | - | 償却 | 0円 | 保険 | 損保要 |
| 更新料 | 252,000円 | 水道料金等預かり金 | - | 特記事項 | - |
| 飲用水 | 公営 | ガス | プロパン | 排水 | 公共下水 |
| 給湯方式 | ガス給湯(浴室給湯あり・キッチン給湯あり・洗面所給湯あり) | ||||
その他の費用
| 毎月 | 引き落とし手数料:660円 |
|---|---|
| 一時 | プレミアデスク2年:22,000円/清掃代:107,140円 |
| 他 | 家賃保証会社 初回保証料50% |
この物件のお問い合わせ番号 0001-S000062119-0060

類似物件一覧
-
16.8万円
168,000円
-
-
15.3万円
153,000円
1.0ヶ月
1LDK
東京都台東区根岸3丁目 -
12.8万円
128,000円
1.0ヶ月
1DK
東京都台東区下谷1丁目 -
19.0万円
-
-
1LDK
東京都台東区三ノ輪1丁目 -
17.4万円
174,000円
1.0ヶ月
1LDK
東京都台東区下谷3丁目 -
12.2万円
122,000円
1.0ヶ月
1DK
東京都台東区根岸2丁目 -
17.3万円
-
-
1LDK
東京都台東区三ノ輪1丁目 -
16.8万円
168,000円
-
1LDK
東京都台東区竜泉3丁目 -
12.0万円
120,000円
1.0ヶ月
1LDK
東京都台東区根岸3丁目 -
19.2万円
192,000円
-
1LDK
東京都台東区根岸3丁目 -
16.7万円
167,000円
-
1LDK
東京都台東区竜泉3丁目 -
12.7万円
127,000円
-
1DK
東京都台東区根岸3丁目
店舗情報
お電話での物件問い合わせは無料通話で!(直営店のみ)
0001-S000062119-0060
- 日暮里店
-
この物件で来店予約- 来店予約フォーム -
-
無料通話番号を表示
- 山手線 日暮里駅(徒歩2分)
- Tel: 03-3802-1132
- 店舗詳細情報
このお部屋にお問い合わせ
あわせて店舗への来店を希望のお客様は、上の希望店舗の来店予約フォームをご利用ください(直営店舗のみ)
Sorry,Japanese & English only. 日本語・英語のみ対応しております。ご了承ください。
- ※取扱形態は媒介(先物)です。 / お部屋の情報は随時更新です / 各種情報と現況に差異がある場合は、現況優先となります。 / 保証会社の審査があります。 / 契約一時金は、契約時に借主より貸主に支払われ返還されない金銭です。

この物件のかんたんお問合せフォーム
お電話でお問合せ(無料)




















東京都台東区竜泉3丁目