モダンアパートメント文京音羽 物件詳細情報
| 沿線・駅 所在地 |
賃料 共益費(管理費) |
敷金 礼金 |
間取り 専有面積 |
種別 建築年月日 |
|
|---|---|---|---|---|---|
|
東京メトロ有楽町線 江戸川橋駅(徒歩7分)
東京都文京区音羽1丁目 |
120,000円 12,000円 |
120,000円 240,000円 |
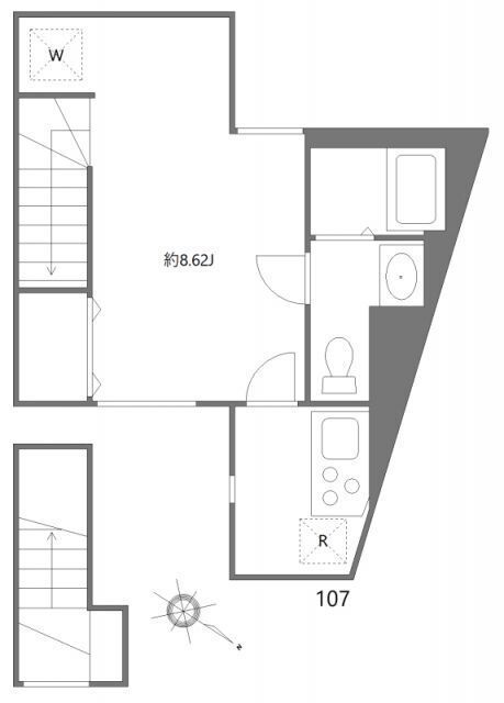
1K 25.16m2 |
マンション 2018年7月 |
|
ミニミニの仲介手数料は家賃の55%(税込)です。※直営店は全店対象。但し、駐車場・店舗・事務所・業者仲介及び紹介契約は対象外。※FC店舗は対象外ですので、各店にお問い合わせください。
この物件のお問い合わせ番号 0001-S000055306-0004
外観・間取り図
情報登録日:2026/04/04 情報更新日:2026/04/05 次回更新予定日:2026/04/12
対面が苦手な方もリモートのやりとりで気楽なIT重説対応、更にコンロやシンクがセットされたシステムキッチン付です。一人暮らしに最適なワンルーム。実際の空間をご自身で体感ください。
設備
| 部屋設備 | TV付モニターホン / 下駄箱 / ガスコンロ(コンロ(2口)) / エアコン / フローリング / シャワー / 室内洗濯機置場 / バストイレ別 / 角部屋 / シャワー付トイレ / システムキッチン / オンライン内見 / オンライン接客 / IT重説 |
|---|---|
| 建物設備 | デザイナーズマンション / ネット利用料無料 / 防犯カメラ |
物件詳細
| 交通機関 | ・東京メトロ有楽町線 江戸川橋駅(徒歩7分) ・東京メトロ有楽町線 護国寺駅(徒歩10分) ・東京メトロ丸ノ内線 茗荷谷駅(徒歩13分) | ||||
|---|---|---|---|---|---|
| 構造 | 木造 | 方位 | 北東 | 階数/総階数 | 1階/2階建て |
| 総戸数 | - | 駐車場 | - | 入居日 | 相談 |
| 環境 | 文京区役所 (2,434m) / 文京関口一郵便局 (473m) / 拓殖大学茗荷谷図書館 (962m) / 大塚警察署 (661m) / 小日向公園 (802m) / 公益財団法人神経研究所附属晴和病院 (1,599m) / みずほ銀行江戸川橋支店 (480m) / リコス音羽1丁目店 (177m) / ナチュラルローソン音羽一丁目店 (257m) / 西武池袋本店 (3,060m) / ユニバーサルドラッグ江戸川橋店 (516m) / Olympic白山店 (2,499m) / 松屋江戸川橋店 (508m) / ハニーズ飯田橋ラムラ店 (2,100m) | ||||
| 内装代 | - | 償却 | 0円 | 保険 | 損保要 |
| 更新料 | 180,000円 | 水道料金等預かり金 | - | 特記事項 | 定期建物賃貸借物件 |
| 飲用水 | 公営 | ガス | 都市 | 排水 | 公共下水 |
| 給湯方式 | - | ||||
その他の費用
| 一時 | 鍵交換費用:27,500円/プレミアデスク:22,000円 |
|---|---|
| 他 | 家賃保証会社 初回保証料70% |
この物件のお問い合わせ番号 0001-S000055306-0004
類似物件一覧
-
11.0万円
-
1.0ヶ月
-
9.0万円
90,000円
1.0ヶ月
1K
東京都文京区大塚5丁目 -
10.1万円
101,000円
-
1K
東京都文京区小石川5丁目 -
14.8万円
-
-
1K
東京都文京区白山3丁目 -
14.0万円
-
-
1DK
東京都文京区千駄木3丁目 -
14.5万円
-
-
1DK
東京都文京区千駄木3丁目 -
11.9万円
-
1.0ヶ月
1R
東京都文京区白山5丁目 -
11.1万円
-
-
1K
東京都文京区小石川3丁目 -
13.9万円
139,000円
-
1DK
東京都文京区本駒込1丁目 -
15.1万円
-
-
1K
東京都文京区音羽1丁目 -
11.8万円
-
1.0ヶ月
1K
東京都文京区音羽2丁目 -
12.0万円
-
1.0ヶ月
1K
東京都文京区大塚3丁目
店舗情報
お電話での物件問い合わせは無料通話で!(直営店のみ)
0001-S000055306-0004
- 茗荷谷店
-
この物件で来店予約- 来店予約フォーム -
-
無料通話番号を表示
- 東京メトロ丸ノ内線 茗荷谷駅(徒歩1分)
- Tel: 03-5940-0132
- 店舗詳細情報
このお部屋にお問い合わせ
あわせて店舗への来店を希望のお客様は、上の希望店舗の来店予約フォームをご利用ください(直営店舗のみ)
Sorry,Japanese & English only. 日本語・英語のみ対応しております。ご了承ください。
- ※取扱形態は媒介(先物)です。 / お部屋の情報は随時更新です / 各種情報と現況に差異がある場合は、現況優先となります。 / 保証会社の審査があります。 / 契約一時金は、契約時に借主より貸主に支払われ返還されない金銭です。

この物件のかんたんお問合せフォーム
お電話でお問合せ(無料)















東京都文京区小日向2丁目