リヴシティ浦和常盤壱番館 物件詳細情報
| 沿線・駅 所在地 |
賃料 共益費(管理費) |
敷金 礼金 |
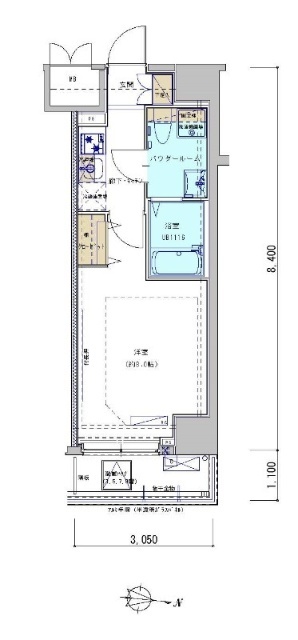
間取り 専有面積 |
種別 建築年月日 |
|
|---|---|---|---|---|---|
|
京浜東北・根岸線 北浦和駅(徒歩9分)
埼玉県さいたま市浦和区常盤5丁目 |
84,000円 10,000円 |
78,000円 84,000円 |
1K 25.62m2 |
分譲賃貸 2022年3月 |
|
ミニミニの仲介手数料は家賃の55%(税込)です。※直営店は全店対象。但し、駐車場・店舗・事務所・業者仲介及び紹介契約は対象外。※FC店舗は対象外ですので、各店にお問い合わせください。
この物件のお問い合わせ番号 0001-S000041297-0004
外観・間取り図
情報登録日:2026/04/06 情報更新日:2026/04/11 次回更新予定日:2026/04/18
設備
| 部屋設備 | TV付モニターホン / エアコン / バルコニー / シャワー / 浴室乾燥機 / バストイレ別 / コンロ(コンロ(2口)) / 角部屋 / 2人入居 / シャワー付トイレ / 洗面所独立 / システムキッチン |
|---|---|
| 建物設備 | エレベータ / オートロック / 宅配ボックス / ペット可 / 敷地内ゴミ置き場 / 防犯カメラ |
物件詳細
| 交通機関 | ・京浜東北・根岸線 北浦和駅(徒歩9分) ・京浜東北・根岸線 浦和駅(徒歩19分) ・埼京線 南与野駅(徒歩21分) | ||||
|---|---|---|---|---|---|
| 構造 | RC造 | 方位 | 階数/総階数 | 4階/9階建て | |
| 総戸数 | 40戸 | 駐車場 | - | 入居日 | 2026年4月下旬 |
| 環境 | さいたま市役所 (659m) / 独立行政法人地域医療機能推進機構埼玉メディカルセンター (967m) / 埼玉りそな銀行さいたま営業部 (251m) / いなげや浦和ときわ店 (601m) / セブンイレブン浦和常盤5丁目店 (230m) | ||||
| 内装代 | - | 償却 | 0円 | 保険 | 損保要 |
| 更新料 | 126,000円 | 水道料金等預かり金 | - | 特記事項 | - |
| 飲用水 | 公営 | ガス | 都市 | 排水 | 公共下水 |
| 給湯方式 | - | ||||
その他の費用
| 毎月 | にじいろサポート:2,200円 |
|---|---|
| 一時 | 鍵交換費用:38,500円 |
この物件のお問い合わせ番号 0001-S000041297-0004
類似物件一覧
-
6.5万円
130,000円
1.0ヶ月
-
6.7万円
67,000円
-
1DK
埼玉県さいたま市浦和区上木崎4丁目 -
8.0万円
80,000円
1.0ヶ月
1K
埼玉県さいたま市浦和区仲町1丁目 -
8.3万円
-
1.0ヶ月
1K
埼玉県さいたま市浦和区常盤2丁目 -
7.3万円
73,000円
1.0ヶ月
1DK
埼玉県さいたま市浦和区本太2丁目 -
5.9万円
59,000円
-
1R
埼玉県さいたま市浦和区常盤8丁目 -
6.3万円
63,000円
1.0ヶ月
1DK
埼玉県さいたま市浦和区岸町4丁目 -
9.7万円
-
1.0ヶ月
1DK
埼玉県さいたま市浦和区常盤2丁目 -
7.6万円
-
1.0ヶ月
1K
埼玉県さいたま市浦和区岸町3丁目 -
7.7万円
-
2.0ヶ月
1R
埼玉県さいたま市浦和区仲町2丁目 -
7.6万円
76,000円
-
1DK
埼玉県さいたま市浦和区本太1丁目
店舗情報
お電話での物件問い合わせは無料通話で!(直営店のみ)
0001-S000041297-0004
- 浦和店
-
この物件で来店予約- 来店予約フォーム -
-
無料通話番号を表示
- 京浜東北・根岸線 浦和駅(徒歩2分)
- Tel: 048-832-3221
- 店舗詳細情報
このお部屋にお問い合わせ
あわせて店舗への来店を希望のお客様は、上の希望店舗の来店予約フォームをご利用ください(直営店舗のみ)
Sorry,Japanese & English only. 日本語・英語のみ対応しております。ご了承ください。
- ※取扱形態は媒介(先物)です。 / お部屋の情報は随時更新です / 各種情報と現況に差異がある場合は、現況優先となります。 / 保証会社の審査があります。 / 契約一時金は、契約時に借主より貸主に支払われ返還されない金銭です。

この物件のかんたんお問合せフォーム
お電話でお問合せ(無料)




埼玉県さいたま市浦和区領家5丁目