DIPS上野NORTH 物件詳細情報
| 沿線・駅 所在地 |
賃料 共益費(管理費) |
敷金 礼金 |
間取り 専有面積 |
種別 建築年月日 |
|
|---|---|---|---|---|---|
|
東京メトロ日比谷線 入谷駅(徒歩2分)
東京都台東区下谷2丁目 |
180,000円 15,000円 |
- 180,000円 |
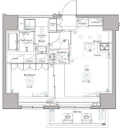
1LDK 40.80m2 |
マンション 2022年10月 |
|
ミニミニの仲介手数料は家賃の55%(税込)です。※直営店は全店対象。但し、駐車場・店舗・事務所・業者仲介及び紹介契約は対象外。※FC店舗は対象外ですので、各店にお問い合わせください。
この物件のお問い合わせ番号 0001-S000038577-0003
★東京メトロ日比谷線「入谷」徒歩2分★インターネット無料★

- 台東入谷郵便局
設備
| 部屋設備 | ガス給湯 / 浴室給湯あり / キッチン給湯あり / 洗面所給湯あり / TV付モニターホン / 下駄箱 / ガスコンロ(コンロ(3口)) / エアコン / フローリング / バルコニー / 洋式トイレ / トイレ電源有 / シャワー / 浴室乾燥機 / 洗髪洗面化粧台 / 洗面化粧台 / 追焚き / 室内洗濯機置場 / バストイレ別 / 保証人不要 / 角部屋 / 2人入居 / シャワー付トイレ / クロゼット / 洗面所独立 / カウンターキッチン / システムキッチン / オンライン内見 / オンライン接客 / IT重説 |
|---|---|
| 建物設備 | エレベータ / オートロック / エントランス / 駐輪場 / 宅配ボックス / ペット可(犬・猫可) / バイク置き場 / ネット利用料無料 / 敷地内ゴミ置き場 / 防犯カメラ |
物件詳細
| 交通機関 | ・東京メトロ日比谷線 入谷駅(徒歩2分) ・山手線 鶯谷駅(徒歩6分) ・山手線 上野駅(徒歩12分) | ||||
|---|---|---|---|---|---|
| 構造 | RC造 | 方位 | 南 | 階数/総階数 | 2階/13階建て |
| 総戸数 | 36戸 | 駐車場 | - | 入居日 | 相談 |
| 環境 | 台東入谷郵便局 (256m) / 東京都上野恩賜公園 (1,421m) / 城北信用金庫台東支店 (370m) / ココスナカムラ入谷店 (223m) / 業務スーパー上野公園店 (445m) / ファミリーマート入谷店 (128m) / 上野マルイ (1,530m) / ウエルシア台東入谷店 (195m) | ||||
| 内装代 | - | 償却 | 0円 | 保険 | 損保要 |
| 更新料 | 180,000円 | 水道料金等預かり金 | - | 特記事項 | - |
| 飲用水 | 公営 | ガス | 都市 | 排水 | 公共下水 |
| 給湯方式 | ガス給湯(浴室給湯あり・キッチン給湯あり・洗面所給湯あり) | ||||
その他の費用
| 毎月 | 24時間駆付けサポート:1,100円 |
|---|---|
| 一時 | (退去時)ハウスクリーニング代:105,000円/鍵交換費用:33,000円/消毒料:17,600円 |
| 他 | 家賃保証会社 初回保証料50% 保証料(更新時)12,000円 |
この物件のお問い合わせ番号 0001-S000038577-0003
類似物件一覧
-
14.5万円
-
-
-
14.5万円
-
-
1DK
東京都台東区谷中2丁目 -
14.4万円
-
-
1DK
東京都台東区谷中2丁目 -
18.5万円
-
-
1LDK
東京都台東区根岸3丁目 -
20.0万円
200,000円
1.0ヶ月
1LDK
東京都台東区池之端2丁目 -
14.8万円
-
-
1DK
東京都台東区谷中2丁目 -
14.8万円
148,000円
-
1DK
東京都台東区下谷1丁目 -
16.6万円
166,000円
-
1LDK
東京都台東区三ノ輪1丁目 -
17.4万円
174,000円
-
1LDK
東京都台東区下谷3丁目 -
12.8万円
128,000円
1.0ヶ月
1DK
東京都台東区三ノ輪1丁目 -
17.1万円
171,000円
1.0ヶ月
1LDK
東京都台東区竜泉1丁目 -
20.0万円
-
-
1LDK
東京都台東区三ノ輪1丁目
店舗情報
お電話での物件問い合わせは無料通話で!(直営店のみ)
0001-S000038577-0003
- 日暮里店
-
この物件で来店予約- 来店予約フォーム -
-
無料通話番号を表示
- 山手線 日暮里駅(徒歩2分)
- Tel: 03-3802-1132
- 店舗詳細情報
このお部屋にお問い合わせ
あわせて店舗への来店を希望のお客様は、上の希望店舗の来店予約フォームをご利用ください(直営店舗のみ)
Sorry,Japanese & English only. 日本語・英語のみ対応しております。ご了承ください。
- ※取扱形態は媒介(先物)です。 / お部屋の情報は随時更新です / 各種情報と現況に差異がある場合は、現況優先となります。 / 保証会社の審査があります。 / 契約一時金は、契約時に借主より貸主に支払われ返還されない金銭です。

この物件のかんたんお問合せフォーム
お電話でお問合せ(無料)
外観・間取り図




















東京都台東区谷中2丁目