フルハウス赤羽 物件詳細情報
| 沿線・駅 所在地 |
賃料 共益費(管理費) |
敷金 礼金 |
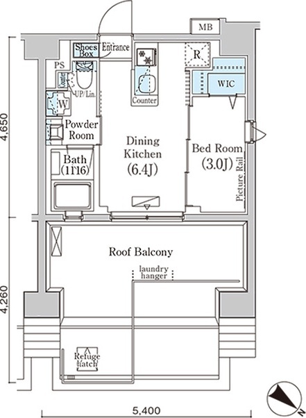
間取り 専有面積 |
種別 建築年月日 |
|
|---|---|---|---|---|---|
|
東京メトロ南北線 赤羽岩淵駅(徒歩3分)
東京都北区赤羽1丁目 |
150,000円 15,000円 |
150,000円 - |
1DK 25.43m2 |
マンション 2022年5月 |
|
ミニミニの仲介手数料は家賃の55%(税込)です。※直営店は全店対象。但し、駐車場・店舗・事務所・業者仲介及び紹介契約は対象外。※FC店舗は対象外ですので、各店にお問い合わせください。
この物件のお問い合わせ番号 0001-S000035311-0037
東京都北区・板橋区、埼玉県戸田市周辺の賃貸物件のご紹介はミニミニ赤羽店にお任せください!【お部屋探しはミニミニ赤羽店で】初期費用のお見積りもお気軽にご相談ください。

- 赤羽岩淵駅前郵便局
設備
| 部屋設備 | ガス給湯 / 浴室給湯あり / キッチン給湯あり / 洗面所給湯あり / TV付モニターホン / インターホン / 下駄箱 / ガスコンロ / エアコン / 電話機設置可 / フローリング / ウォークインクロゼット / ベランダ / バルコニー / 洋式トイレ / トイレ電源有 / シャワー / 浴室乾燥機 / 洗髪洗面化粧台 / 洗面化粧台 / 追焚き / 室内洗濯機置場 / バストイレ別 / 保証人不要 / 2人入居 / シャワー付トイレ / 洗面所独立 / カウンターキッチン / システムキッチン / オンライン内見 / オンライン接客 / IT重説 |
|---|---|
| 建物設備 | エレベータ / オートロック / エントランス / 駐輪場 / 宅配ボックス / ネット利用料無料 / ネット環境(光ファイバ対応) / BSアンテナ / CSアンテナ / 通勤管理 / 巡回管理 / 敷地内ゴミ置き場 |
物件詳細
| 交通機関 | ・東京メトロ南北線 赤羽岩淵駅(徒歩3分) ・東北本線 赤羽駅(徒歩7分) ・東京メトロ南北線 志茂駅(徒歩16分) | ||||
|---|---|---|---|---|---|
| 構造 | RC造 | 方位 | 北東 | 階数/総階数 | 12階/13階建て |
| 総戸数 | 59戸 | 駐車場 | - | 入居日 | 2026年4月下旬 |
| 環境 | 赤羽岩淵駅前郵便局 (193m) / 医療法人社団景星会赤羽赤羽東口病院 (245m) / みずほ銀行赤羽支店 (412m) / まいばすけっと赤羽岩淵駅前店 (257m) / ファミリーマート赤羽二丁目店 (169m) / トモズビーンズ赤羽店 (532m) / ビバホームビーンズ赤羽店 (533m) / 東洋大学赤羽台キャンパス (787m) / ビーンズ赤羽 (700m) | ||||
| 内装代 | - | 償却 | 0円 | 保険 | 損保要 |
| 更新料 | 150,000円 | 水道料金等預かり金 | - | 特記事項 | - |
| 飲用水 | 公営 | ガス | 都市 | 排水 | 公共下水 |
| 給湯方式 | ガス給湯(浴室給湯あり・キッチン給湯あり・洗面所給湯あり) | ||||
その他の費用
| 毎月 | 口座振替事務手数料(月額):220円 |
|---|---|
| 一時 | 鍵交換費用:22,000円/室内清掃費用:44,000円 |
| 他 | 家賃保証会社 初回保証料50% 2年目以降10,000円 |
この物件のお問い合わせ番号 0001-S000035311-0037
類似物件一覧
-
13.8万円
138,000円
1.0ヶ月
-
13.9万円
139,000円
1.0ヶ月
1K
東京都北区田端新町1丁目 -
11.8万円
118,000円
-
1K
東京都北区西ケ原1丁目 -
17.6万円
176,000円
1.0ヶ月
1LDK
東京都北区十条仲原2丁目 -
12.0万円
-
1.0ヶ月
1DK
東京都北区上十条3丁目 -
12.0万円
120,000円
1.0ヶ月
1R
東京都北区東田端1丁目 -
15.8万円
-
-
1DK
東京都北区十条仲原2丁目 -
15.1万円
151,000円
1.0ヶ月
1K
東京都北区滝野川6丁目 -
13.4万円
-
1.0ヶ月
1K
東京都北区志茂2丁目 -
13.3万円
-
-
1DK
東京都北区西ケ原1丁目 -
17.9万円
179,000円
1.0ヶ月
1LDK
東京都北区東十条2丁目 -
13.0万円
-
2.0ヶ月
1LDK
東京都北区堀船4丁目
店舗情報
お電話での物件問い合わせは無料通話で!(直営店のみ)
0001-S000035311-0037
- 赤羽店
-
この物件で来店予約- 来店予約フォーム -
-
無料通話番号を表示
- 埼京線 赤羽駅(徒歩1分)
- Tel: 03-5249-0032
- 店舗詳細情報
このお部屋にお問い合わせ
あわせて店舗への来店を希望のお客様は、上の希望店舗の来店予約フォームをご利用ください(直営店舗のみ)
Sorry,Japanese & English only. 日本語・英語のみ対応しております。ご了承ください。
- ※取扱形態は媒介(先物)です。 / お部屋の情報は随時更新です / 各種情報と現況に差異がある場合は、現況優先となります。 / 保証会社の審査があります。 / 契約一時金は、契約時に借主より貸主に支払われ返還されない金銭です。

この物件のかんたんお問合せフォーム
お電話でお問合せ(無料)
外観・間取り図








東京都北区豊島1丁目