グレイス鶴舞 物件詳細情報
| 沿線・駅 所在地 |
賃料 共益費(管理費) |
敷金 礼金 |
間取り 専有面積 |
種別 建築年月日 |
|
|---|---|---|---|---|---|
|
中央本線 鶴舞駅(徒歩8分)
愛知県名古屋市昭和区鶴舞3丁目 |
69,500円 4,000円 |
- 69,500円 |
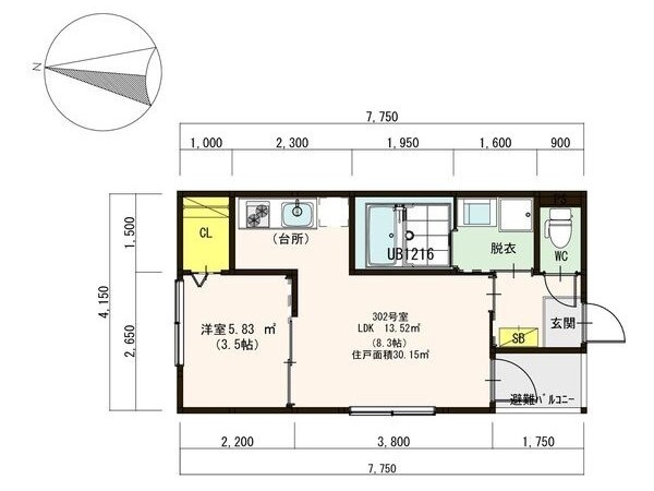
1LDK 30.15m2 |
アパート 2018年7月 |
|
ミニミニの仲介手数料は家賃の55%(税込)です。※直営店は全店対象。但し、駐車場・店舗・事務所・業者仲介及び紹介契約は対象外。※FC店舗は対象外ですので、各店にお問い合わせください。
この物件のお問い合わせ番号 0001-2310885891-0006
利便性と静穏を兼ね備えた鶴舞3丁目に佇む、全6戸のプライベート感あふれるデザイナーズアパートです。3階部分の角部屋で、1LDKの間取りはゆとりある暮らしを叶えます。オートロック完備でセキュリティも安心。都市生活の質を高める充実の設備と、洗練された空間があなたを待っています。
- 名古屋市立鶴舞小学校
- 名古屋市立北山中学校
- 鶴舞ちとせ保育園
パノラマ
設備
| 部屋設備 | ガス給湯 / 浴室給湯あり / キッチン給湯あり / 洗面所給湯あり / TV付モニターホン / 下駄箱 / ガスコンロ(コンロ(2口)) / エアコン / フローリング / 照明器具 / ベランダ / 洋式トイレ / シャワー / 浴室乾燥機 / 洗面化粧台 / 追焚き / 室内洗濯機置場 / バストイレ別 / 角部屋 / 上位階なし / シャワー付トイレ / クロゼット / 洗面所独立 / システムキッチン |
|---|---|
| 建物設備 | オートロック / ネット利用料無料 |
物件詳細
| 交通機関 | ・中央本線 鶴舞駅(徒歩8分) ・地下鉄鶴舞線 荒畑駅(徒歩8分) ・地下鉄鶴舞線 御器所駅(徒歩23分) | ||||
|---|---|---|---|---|---|
| 構造 | 木造 | 方位 | 南 | 階数/総階数 | 3階/3階建て |
| 総戸数 | 6戸 | 駐車場 | - | 入居日 | 2026年3月下旬 |
| 環境 | 名古屋市立鶴舞小学校 (620m) / 名古屋市立北山中学校 (338m) / 鶴舞ちとせ保育園 (75m) / 私立桜花学園高校 (1,049m) / 名古屋洲原郵便局 (264m) / 名古屋市鶴舞中央図書館 (619m) / 中警察署 (1,157m) / 鶴舞街園 (708m) / 医療法人聖真会横山記念病院 (689m) / 三菱UFJ銀行鶴舞支店 (770m) / ファミリーマート昭和鶴舞二丁目店 (306m) / ヘルスバンク鶴舞店 (856m) / DCM名古屋白金店 (1,421m) / 国立名古屋工業大学 (1,166m) | ||||
| 内装代 | - | 償却 | 0円 | 保険 | 損保要 |
| 更新料 | - | 水道料金等預かり金 | - | 特記事項 | - |
| 飲用水 | 公営 | ガス | プロパン | 排水 | 公共下水 |
| 給湯方式 | ガス給湯(浴室給湯あり・キッチン給湯あり・洗面所給湯あり) | ||||
その他の費用
| 毎月 | 町内会費/月:300円/シノサポ24:1,650円 |
|---|---|
| 一時 | とくとくCLUB:16,500円/クリーニング費用:55,000円/エアコンクリーニング費 解約時:13,200円/室内消毒料:19,800円/防災セット:14,400円/ファイテック消火剤:4,800円 |
| 他 | 家賃保証会社 初回保証料30% 更新保証料/年15,000円 |
この物件のお問い合わせ番号 0001-2310885891-0006
類似物件一覧
-
5.1万円
-
-
-
6.8万円
136,000円
-
1LDK
愛知県名古屋市昭和区緑町3丁目 -
7.0万円
-
1.0ヶ月
1LDK
愛知県名古屋市昭和区広路通6丁目 -
8.3万円
-
-
1LDK
愛知県名古屋市昭和区下構町2丁目 -
8.3万円
83,000円
1.0ヶ月
1LDK
愛知県名古屋市昭和区神村町2丁目 -
6.9万円
69,000円
-
1LDK
愛知県名古屋市昭和区駒方町4丁目 -
7.0万円
-
1.0ヶ月
1LDK
愛知県名古屋市昭和区五軒家町 -
8.0万円
80,000円
1.0ヶ月
1LDK
愛知県名古屋市昭和区山里町 -
7.4万円
74,000円
1.0ヶ月
1LDK
愛知県名古屋市昭和区塩付通4丁目 -
7.4万円
-
-
1LDK
愛知県名古屋市昭和区塩付通2丁目 -
5.3万円
53,000円
-
2K
愛知県名古屋市昭和区鶴羽町1丁目 -
5.6万円
-
-
2K
愛知県名古屋市昭和区安田通1丁目
店舗情報
お電話での物件問い合わせは無料通話で!(直営店のみ)
0001-2310885891-0006
- 鶴舞店
-
この物件で来店予約- 来店予約フォーム -
-
無料通話番号を表示
- 地下鉄鶴舞線 鶴舞駅(徒歩1分)
- Tel: 052-323-7833
- 店舗詳細情報
このお部屋にお問い合わせ
あわせて店舗への来店を希望のお客様は、上の希望店舗の来店予約フォームをご利用ください(直営店舗のみ)
Sorry,Japanese & English only. 日本語・英語のみ対応しております。ご了承ください。
- ※取扱形態は媒介(先物)です。 / お部屋の情報は随時更新です / 各種情報と現況に差異がある場合は、現況優先となります。 / 保証会社の審査があります。 / 契約一時金は、契約時に借主より貸主に支払われ返還されない金銭です。

この物件のかんたんお問合せフォーム
お電話でお問合せ(無料)
外観・間取り図




















愛知県名古屋市昭和区広路町字隼人