プレサンス池下トレス 物件詳細情報
| 沿線・駅 所在地 |
賃料 共益費(管理費) |
敷金 礼金 |
間取り 専有面積 |
種別 建築年月日 |
|
|---|---|---|---|---|---|
|
地下鉄東山線 今池駅(徒歩4分)
愛知県名古屋市千種区仲田2丁目 |
62,280円 9,720円 |
- 72,000円 |
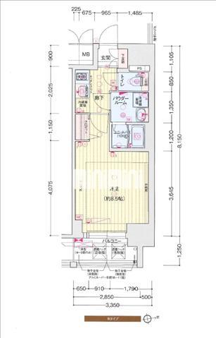
1K 26.76m2 |
分譲賃貸 2018年1月 |
|
ミニミニの仲介手数料は家賃の55%(税込)です。※直営店は全店対象。但し、駐車場・店舗・事務所・業者仲介及び紹介契約は対象外。※FC店舗は対象外ですので、各店にお問い合わせください。
この物件のお問い合わせ番号 0001-2310859906-0023

- 名古屋市立高見小学校

- 名古屋市立若水中学校

- 名古屋池下郵便局

- 千種警察署
設備
| 部屋設備 | ガス給湯 / 浴室給湯あり / キッチン給湯あり / 洗面所給湯あり / TV付モニターホン / 下駄箱 / ガスコンロ(コンロ(2口)) / エアコン / フローリング / 照明器具 / ベランダ / 洋式トイレ / トイレ電源有 / シャワー / 浴室乾燥機 / 洗髪洗面化粧台 / 室内洗濯機置場 / バストイレ別 / 角部屋 / シャワー付トイレ / クロゼット / 洗面所独立 / システムキッチン |
|---|---|
| 建物設備 | エレベータ / オートロック / エントランス / 駐輪場 / 宅配ボックス / ネット利用料無料 / ネット環境(光ファイバ対応) / BSアンテナ / CSアンテナ / バイク置き場 / 巡回管理 / 敷地内ゴミ置き場 / 防犯カメラ |
物件詳細
| 交通機関 | ・地下鉄東山線 今池駅(徒歩4分) ・地下鉄東山線 池下駅(徒歩5分) ・地下鉄東山線 千種駅(徒歩15分) | ||||
|---|---|---|---|---|---|
| 構造 | RC造 | 方位 | 西 | 階数/総階数 | 10階/13階建て |
| 総戸数 | 48戸 | 駐車場 | - | 入居日 | 相談 |
| 環境 | 名古屋市立高見小学校 (973m) / 名古屋市立若水中学校 (1,005m) / 名古屋池下郵便局 (310m) / 千種警察署 (806m) / 名古屋市立大学医学部附属東部医療センター (602m) / 瀬戸信用金庫今池支店 (322m) / 成城石井名古屋セントラルガーデン店 (433m) / デイリーヤマザキ名古屋池下店 (339m) / ドラッグスギヤマ仲田店 (416m) / デニーズ今池店 (244m) / デリスクエア (815m) | ||||
| 内装代 | - | 償却 | 0円 | 保険 | 損保要 |
| 更新料 | 11,000円 | 水道料金等預かり金 | - | 特記事項 | - |
| 飲用水 | 公営 | ガス | 都市 | 排水 | 公共下水 |
| 給湯方式 | ガス給湯(浴室給湯あり・キッチン給湯あり・洗面所給湯あり) | ||||
その他の費用
| 毎月 | プレサポ安心24 :990円 |
|---|---|
| 一時 | 消毒料:17,600円/鍵交換料:29,700円/防災セット:14,400円/ファイテック消火剤:4,800円 |
| 他 | 家賃保証会社 初回保証料50% 毎月賃料等請求金額の合計1.5% |
この物件のお問い合わせ番号 0001-2310859906-0023
類似物件一覧
-
4.5万円
-
-
-
6.5万円
65,000円
1.0ヶ月
1R
愛知県名古屋市千種区内山2丁目 -
6.0万円
120,000円
-
1K
愛知県名古屋市千種区千種通6丁目 -
4.5万円
-
-
1K
愛知県名古屋市千種区今池5丁目 -
5.0万円
-
1.0ヶ月
1K
愛知県名古屋市千種区今池4丁目 -
5.5万円
-
-
1K
愛知県名古屋市千種区松軒2丁目 -
5.0万円
50,000円
1.0ヶ月
1R
愛知県名古屋市千種区覚王山通8丁目 -
7.8万円
78,000円
1.0ヶ月
1K
愛知県名古屋市千種区仲田2丁目 -
5.0万円
-
-
1K
愛知県名古屋市千種区唐山町2丁目 -
4.5万円
-
-
1R
愛知県名古屋市千種区今池南 -
5.2万円
-
1.0ヶ月
1K
愛知県名古屋市千種区末盛通3丁目 -
5.7万円
57,000円
-
1K
愛知県名古屋市千種区千種3丁目
店舗情報
お電話での物件問い合わせは無料通話で!(直営店のみ)
0001-2310859906-0023
- 関東法人部
- 03-6206-3203
- 東京都千代田区丸の内1丁目8−3 丸の内トラストタワー本館4階
- 中部法人部
- 0800-888-3215
- 愛知県名古屋市中区錦3丁目16−27 栄パークサイドプレイス12F
このお部屋にお問い合わせ
あわせて店舗への来店を希望のお客様は、上の希望店舗の来店予約フォームをご利用ください(直営店舗のみ)
Sorry,Japanese & English only. 日本語・英語のみ対応しております。ご了承ください。
- ※取扱形態は媒介(先物)です。 / お部屋の情報は随時更新です / 各種情報と現況に差異がある場合は、現況優先となります。 / 保証会社の審査があります。 / 契約一時金は、契約時に借主より貸主に支払われ返還されない金銭です。

この物件のかんたんお問合せフォーム
お電話でお問合せ(法人用)
外観・間取り図















愛知県名古屋市千種区東山通1丁目