MottiV 物件詳細情報
| 沿線・駅 所在地 |
賃料 共益費(管理費) |
敷金 礼金 |
間取り 専有面積 |
種別 建築年月日 |
|
|---|---|---|---|---|---|
|
地下鉄東山線 一社駅(徒歩18分)
愛知県名古屋市名東区名東本通5丁目 |
103,000円 5,000円 |
206,000円 103,000円 |
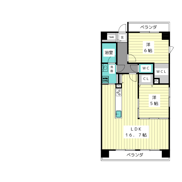
2LDK 61.20m2 |
マンション 2017年5月 |
|
ミニミニの仲介手数料は家賃の55%(税込)です。※直営店は全店対象。但し、駐車場・店舗・事務所・業者仲介及び紹介契約は対象外。※FC店舗は対象外ですので、各店にお問い合わせください。
この物件のお問い合わせ番号 0001-2310833688-0001
不審者の侵入に目を光らせる防犯カメラ完備!大きな荷物も収納できるウォークインクロゼット有!

- イオンメイトピア店

- 西友高針店

- セブンイレブン

- ドラッグスギヤマ

- 名東保育園

- 市立西山小学校

- 市立神丘中学校
設備
| 部屋設備 | ガス給湯 / 浴室給湯あり / キッチン給湯あり / 洗面所給湯あり / TV付モニターホン / 下駄箱 / ガスコンロ(コンロ(3口)) / フローリング / ウォークインクロゼット / ベランダ / バルコニー / 洋式トイレ / トイレ電源有 / シャワー / 浴室乾燥機 / 洗髪洗面化粧台 / 追焚き / 室内洗濯機置場 / バストイレ別 / 保証人不要 / 角部屋 / クロゼット / 全居室収納 / 洗面所独立 / カウンターキッチン / システムキッチン / オンライン内見 / オンライン接客 / IT重説 |
|---|---|
| 建物設備 | エレベータ / オートロック / エントランス / 駐輪場 / 巡回管理 / 防犯カメラ |
物件詳細
| 交通機関 | ・地下鉄東山線 一社駅(徒歩18分) ・地下鉄東山線 星ヶ丘駅(徒歩22分) ・地下鉄東山線 上社駅(徒歩25分) | ||||
|---|---|---|---|---|---|
| 構造 | RC造 | 方位 | 南 | 階数/総階数 | 1階/6階建て |
| 総戸数 | 23戸 | 駐車場 | 近隣 | 入居日 | 相談 |
| 環境 | イオンメイトピア店 (360m) / 西友高針店 (760m) / セブンイレブン (760m) / ドラッグスギヤマ (330m) / 高間郵便局 (660m) / 名東保育園 (200m) / 市立西山小学校 (1,100m) / 市立神丘中学校 (260m) | ||||
| 内装代 | - | 償却 | 0円 | 保険 | 損保要 |
| 更新料 | - | 水道料金等預かり金 | - | 特記事項 | - |
| 飲用水 | 公営 | ガス | 都市 | 排水 | 公共下水 |
| 給湯方式 | ガス給湯(浴室給湯あり・キッチン給湯あり・洗面所給湯あり) | ||||
その他の費用
| 毎月 | 賃貸保証料(月):1,800円 |
|---|---|
| 一時 | 駐車場紹介料:11,000円/鍵交換料:16,500円/消毒料:17,600円/入居安心サービス料:17,600円/防災セット:14,400円/ファイテック消火剤:4,800円/駐車場保証金:20,000円 |
| 他 | 家賃保証会社 初回保証料50% 毎月賃料等請求金額の合計1.5% |
この物件のお問い合わせ番号 0001-2310833688-0001
類似物件一覧
-
13.2万円
132,000円
1.0ヶ月
-
12.3万円
123,000円
-
2LDK
愛知県名古屋市名東区富が丘 -
7.5万円
37,500円
1.0ヶ月
2LDK
愛知県名古屋市名東区引山4丁目 -
7.8万円
78,000円
-
2LDK
愛知県名古屋市名東区高社1丁目 -
10.9万円
218,800円
-
2LDK
愛知県名古屋市名東区代万町3丁目 -
8.2万円
164,000円
-
2LDK
愛知県名古屋市名東区亀の井1丁目 -
12.7万円
127,000円
1.0ヶ月
2LDK
愛知県名古屋市名東区本郷3丁目 -
8.1万円
161,400円
-
2DK
愛知県名古屋市名東区代万町3丁目 -
8.0万円
160,000円
-
2LDK
愛知県名古屋市名東区亀の井2丁目 -
13.3万円
133,000円
1.0ヶ月
2LDK
愛知県名古屋市名東区本郷3丁目 -
10.8万円
108,000円
-
2LDK
愛知県名古屋市名東区富が丘 -
12.7万円
127,000円
1.0ヶ月
2LDK
愛知県名古屋市名東区本郷3丁目
店舗情報
お電話での物件問い合わせは無料通話で!(直営店のみ)
0001-2310833688-0001
- 三重法人部
- 059-356-8041
- 三重県四日市市鵜の森1丁目1-19太平洋鵜の森ビル5階
このお部屋にお問い合わせ
あわせて店舗への来店を希望のお客様は、上の希望店舗の来店予約フォームをご利用ください(直営店舗のみ)
Sorry,Japanese & English only. 日本語・英語のみ対応しております。ご了承ください。
- ※取扱形態は媒介(先物)です。 / お部屋の情報は随時更新です / 各種情報と現況に差異がある場合は、現況優先となります。 / 保証会社の審査があります。 / 契約一時金は、契約時に借主より貸主に支払われ返還されない金銭です。

この物件のかんたんお問合せフォーム
お電話でお問合せ(法人用)
外観・間取り図
























愛知県名古屋市名東区本郷3丁目