セントポーリア 物件詳細情報
| 沿線・駅 所在地 |
賃料 共益費(管理費) |
敷金 礼金 |
間取り 専有面積 |
種別 建築年月日 |
|
|---|---|---|---|---|---|
|
東海道本線 東刈谷駅(徒歩19分)
愛知県刈谷市野田町馬池 |
45,000円 3,000円 |
45,000円 - |
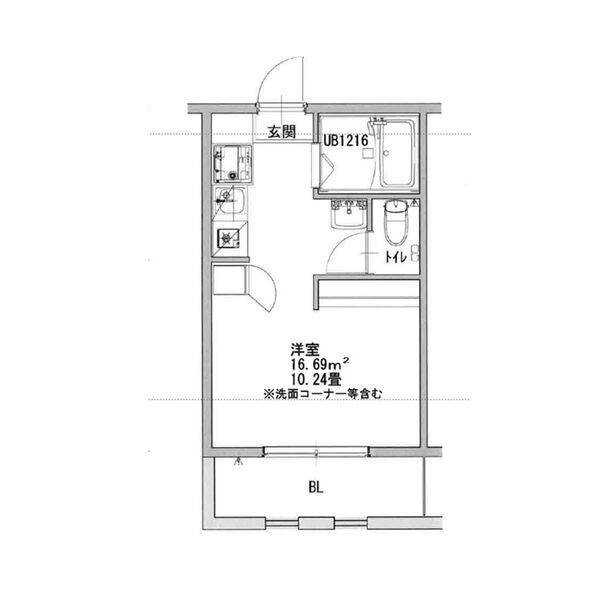
1R 21.60m2 |
マンション 1989年4月 |
|
ミニミニの仲介手数料は家賃の55%(税込)です。※直営店は全店対象。但し、駐車場・店舗・事務所・業者仲介及び紹介契約は対象外。※FC店舗は対象外ですので、各店にお問い合わせください。
この物件のお問い合わせ番号 0001-2300080561-5
外観・間取り図
情報登録日:2026/03/28 情報更新日:2026/03/29 次回更新予定日:2026/04/05
らくらく1階!荷物の搬入がラクです!リノベーションのお部屋! バス・トイレ別、2口コンロ付キッチン、10帖のワンルーム! 温水洗浄便座、エアコン付、初めての一人暮らしにオススメです スーパー、ドラッグストア近くお買い物が便利!生活しやすい!
設備
| 部屋設備 | ガス給湯 / 浴室給湯あり / キッチン給湯あり / 洗面所給湯あり / ガスコンロ(コンロ(2口)) / エアコン / フローリング / ベランダ / バルコニー / 洋式トイレ / トイレ電源有 / シャワー / バストイレ別 / シャワー付トイレ / クロゼット / 洗面所独立 / ミニキッチン / オンライン内見 / オンライン接客 / IT重説 |
|---|---|
| 建物設備 | 駐輪場 / ネット環境(光ファイバ対応) / 敷地内ゴミ置き場 |
物件詳細
| 交通機関 | ・東海道本線 東刈谷駅(徒歩19分) ・東海道本線 野田新町駅(徒歩20分) ・東海道・山陽新幹線 三河安城駅(徒歩35分) | ||||
|---|---|---|---|---|---|
| 構造 | 鉄骨造 | 方位 | 南 | 階数/総階数 | 1階/2階建て |
| 総戸数 | 18戸 | 駐車場 | 4,400円 | 入居日 | 即入居可 |
| 環境 | 刈谷市立東刈谷小学校 (705m) / 刈谷市立朝日中学校 (1,040m) / 刈谷市立東刈谷幼児園 (628m) / 刈谷市中央図書館 (3,647m) / ピアゴ東刈谷店 (899m) / セブンイレブン刈谷野田町店 (371m) / スギドラッグ野田店 (442m) / ニトリドン・キホーテ刈谷店 (959m) / びっくりドンキー東刈谷店 (745m) / ピアゴ東刈谷店 (899m) | ||||
| 内装代 | - | 償却 | 0円 | 保険 | 損保要 |
| 更新料 | - | 水道料金等預かり金 | - | 特記事項 | - |
| 飲用水 | 公営 | ガス | プロパン | 排水 | 浄化槽 |
| 給湯方式 | ガス給湯(浴室給湯あり・キッチン給湯あり・洗面所給湯あり) | ||||
その他の費用
| 毎月 | 町内会費:250円/サポート料:800円 |
|---|---|
| 一時 | 駐車場紹介料:4,400円/防災セット:14,400円/ファイテック消火剤:4,800円/消毒料:17,600円/鍵交換費:11,000円 |
| 他 | 家賃保証会社 初回保証料50% 1年更新保証料10,000円 |
この物件のお問い合わせ番号 0001-2300080561-5
類似物件一覧
-
5.5万円
-
-
-
5.1万円
-
-
1K
愛知県刈谷市一ツ木町2丁目 -
4.9万円
-
1.0ヶ月
1K
愛知県刈谷市一里山町伐払 -
3.8万円
-
-
1R
愛知県刈谷市新富町2丁目 -
4.2万円
-
-
1K
愛知県刈谷市末広町1丁目 -
5.0万円
-
-
1K
愛知県刈谷市井ケ谷町川瀬山 -
5.3万円
-
-
1K
愛知県刈谷市一ツ木町4丁目 -
4.2万円
-
-
1K
愛知県刈谷市築地町5丁目 -
4.2万円
-
-
1K
愛知県刈谷市泉田町城前 -
5.0万円
-
-
1K
愛知県刈谷市井ケ谷町川瀬山 -
4.9万円
-
-
1DK
愛知県刈谷市小垣江町本郷下 -
4.2万円
-
-
1K
愛知県刈谷市築地町5丁目
店舗情報
お電話での物件問い合わせは無料通話で!(直営店のみ)
0001-2300080561-5
- 三重法人部
- 059-356-8041
- 三重県四日市市鵜の森1丁目1-19太平洋鵜の森ビル5階
このお部屋にお問い合わせ
あわせて店舗への来店を希望のお客様は、上の希望店舗の来店予約フォームをご利用ください(直営店舗のみ)
Sorry,Japanese & English only. 日本語・英語のみ対応しております。ご了承ください。
- ※取扱形態は媒介(先物)です。 / お部屋の情報は随時更新です / 各種情報と現況に差異がある場合は、現況優先となります。 / 保証会社の審査があります。 / 契約一時金は、契約時に借主より貸主に支払われ返還されない金銭です。

この物件のかんたんお問合せフォーム
お電話でお問合せ(法人用)











愛知県刈谷市新富町4丁目