シャトー春山 物件詳細情報
このお部屋は募集を終了しました
ただいまこのお部屋は入居募集を終了しており、募集時の情報となっております。お部屋探しの参考としてご利用ください。募集が再度開始しましたら、こちらのページで詳細情報を掲載の上募集開始致します。情報掲載日:2025/12/05
| 沿線・駅 所在地 |
間取り 専有面積 |
種別 建築年月日 |
|
|---|---|---|---|
|
地下鉄名城線 総合リハビリセンター駅(徒歩6分)
愛知県名古屋市瑞穂区春山町 |
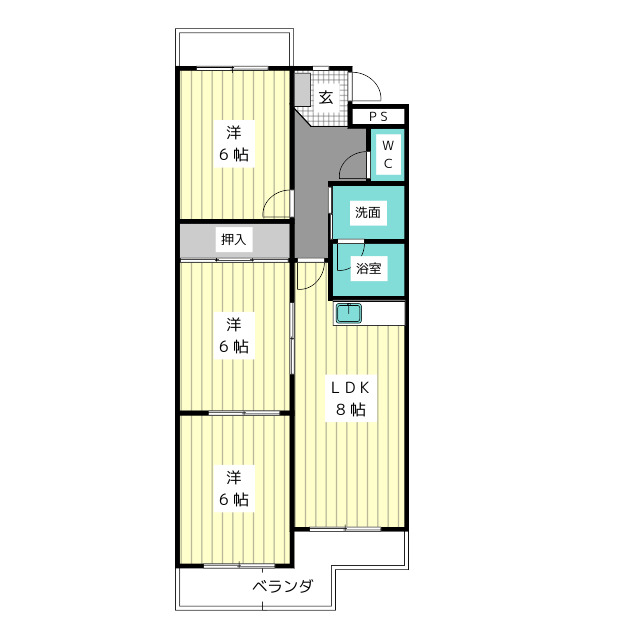
3LDK 62.56m2 |
マンション 1983年9月 |
|
ミニミニの仲介手数料は家賃の55%(税込)です。※直営店は全店対象。但し、駐車場・店舗・事務所・業者仲介及び紹介契約は対象外。※FC店舗は対象外ですので、各店にお問い合わせください。
この物件のお問い合わせ番号 0001-2300001270-17
設備
| 部屋設備 | ガス給湯 / 浴室給湯あり / キッチン給湯あり / 洗面所給湯あり / TV付モニターホン / 下駄箱 / ガスコンロ(コンロ(2口)) / エアコン / ベランダ / 洋式トイレ / トイレ電源有 / シャワー / 洗髪洗面化粧台 / 室内洗濯機置場 / バストイレ別 / 洗面所独立 / オンライン内見 / オンライン接客 / IT重説 |
|---|---|
| 建物設備 | 駐輪場 / 宅配ボックス / ペット可(犬・猫可) / ネット環境(光ファイバ対応) |
物件詳細
| 交通機関 | ・地下鉄名城線 総合リハビリセンター駅(徒歩6分) ・地下鉄鶴舞線 八事駅(徒歩19分) ・地下鉄鶴舞線 いりなか駅(徒歩20分) | ||||
|---|---|---|---|---|---|
| 構造 | RC造 | 総階数 | 3階建て | ||
| 総戸数 | 24戸 | 入居日 | 入居不可(募集終了) | ||
| 飲用水 | 公営 | ガス | 都市 | 排水 | 公共下水 |
| 給湯方式 | ガス給湯(浴室給湯あり・キッチン給湯あり・洗面所給湯あり) | ||||
この物件のお問い合わせ番号 0001-2300001270-17
類似物件一覧
-
7.0万円
70,000円
-
-
7.2万円
72,000円
-
3DK
愛知県名古屋市瑞穂区八勝通3丁目 -
7.9万円
154,000円
-
3LDK
愛知県名古屋市瑞穂区密柑山町1丁目 -
8.8万円
-
-
3LDK
愛知県名古屋市瑞穂区山下通5丁目 -
7.3万円
146,000円
-
3LDK
愛知県名古屋市瑞穂区下山町1丁目 -
7.8万円
-
-
3LDK
愛知県名古屋市瑞穂区白砂町1丁目 -
7.0万円
140,000円
-
3DK
愛知県名古屋市瑞穂区十六町2丁目 -
6.0万円
120,000円
-
3LDK
愛知県名古屋市瑞穂区松月町3丁目 -
8.7万円
261,000円
-
3LDK
愛知県名古屋市瑞穂区密柑山町2丁目 -
7.1万円
142,000円
-
3DK
愛知県名古屋市瑞穂区彌富通2丁目 -
8.8万円
88,000円
-
3LDK
愛知県名古屋市瑞穂区田辺通6丁目 -
6.3万円
189,000円
-
3LDK
愛知県名古屋市瑞穂区彌富町字上山
店舗情報
お電話での物件問い合わせは無料通話で!(直営店のみ)
0001-2300001270-17
- いりなか店
-
この物件で来店予約- 来店予約フォーム -
-
無料通話番号を表示
- 地下鉄鶴舞線 いりなか駅(徒歩1分)
- Tel: 052-836-1332
- 店舗詳細情報
- 八事店
-
この物件で来店予約- 来店予約フォーム -
-
無料通話番号を表示
- 地下鉄鶴舞線 八事駅(徒歩1分)
- Tel: 052-835-3232
- 店舗詳細情報
- 新瑞店
-
この物件で来店予約- 来店予約フォーム -
-
無料通話番号を表示
- 地下鉄桜通線 新瑞橋駅(徒歩1分)
- Tel: 052-851-3232
- 店舗詳細情報
このお部屋に似ている物件を問い合わせる
あわせて店舗への来店を希望のお客様は、上の希望店舗の来店予約フォームをご利用ください(直営店舗のみ)
Sorry,Japanese & English only. 日本語・英語のみ対応しております。ご了承ください。
- ※各種情報と現況に差異がある場合は、現況優先となります。

似た物件を問い合わせる
お電話でお問合せ(無料)
間取り図

愛知県名古屋市瑞穂区密柑山町1丁目